查看完整案例

收藏

下载
Spiritual Design, Poetic Expression.
我不想踏遍天涯,
也不羡慕诗和远方,
我只想留在家里,
安静的享受岁月静好!
独居能有多美好?看看她的家就知道!
屋主目前一个人居住,家人偶尔来留宿。她不想要千篇一律的狭窄格子间,只想要开阔舒适的居住空间;不想要沉闷冷漠的颜色,只想要活泼跳跃的氛围。于是,我们用突破常规的设计语言,呈现出精致的生活态度。
大刀阔斧的砸掉三面墙之后,空间拥有了明亮开阔的视觉;注入鲜活的绿色、明媚的粉色、温润柔和的原木色,让空间保持创造力和生命力,为这个家带来乐观积极的生活情绪!
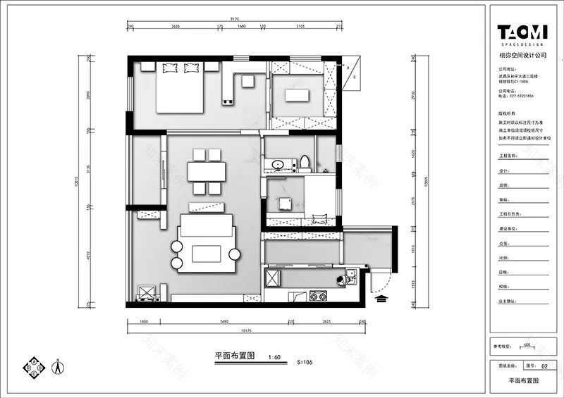
人信武胜里106㎡
左右滑动查看平面图
1、
原厨房较为狭窄,玄关走道光线昏暗。扩宽厨房长度,增长操作台面。并改变厨房入门方向,打造两扇大的玻璃移门,让走道变得更明亮。
2、
打开次卧,改为餐厅,并去掉客厅阳台门,让客餐厅公共空间更加宽敞。将主卧的墙面改为玻璃隔断,全面提升空间的开阔视觉。
3、
将主卧改为大套间,一旁的小卧室变为衣帽间,原主卫改为开放式书房空间,充分满足屋主的收纳、办公需求。
E
NTRY
▲入户花园拥有充足的采光,于是我们大胆的选用黑色墙面、黑白拼色地砖,配上金色镜子、壁灯,时髦又CHIC!
L
IVING ROOM
▲
从客厅看入户玄关,挑空式鞋柜、深色地砖,实用易打理。
“砸掉”三面墙后,客餐厅更加开阔大气。一整面撞色木饰面板,配合洗手间、次卧的隐形门,提升空间的艺术感和创造力。
▲现场打造
的
简约电视柜,充分满足收纳和展示需求。温润的木质、粗犷的红砖,碰撞深邃的绿色,既时髦又
富有鲜活的生命力。
▲柔软的绿色沙发,搭配热带风情的抱枕,突显了柔和的居住氛围,又不会过于甜腻。
▲
软装推荐
沙发:MINIMORE
茶几:所在家居
花瓶:HAY
地毯:IKEA
单人椅:IKEA
矮凳:UNITE STRANGERS
D
INNING ROOM
▲卧室采用一整面细框玻璃隔断,全面提升空间的采光。白色窗帘保护了隐私,还让空间仙气十足,当微风拂过,满屋子都是柔和放松的韵味。
▲
餐厅选用细腿餐桌餐椅,配合设计感十足的吊灯,中和了粉色的甜腻,精致又不做作。
▲
软装推荐
餐桌:SQRAE ROOTS
餐椅:SEVEN CHAIR
水壶:NORMANN
B
E
DROOM
▲主卧采用热带风情十足的墙纸,配合绿色丝绒床品、粉色窗帘,颇有几分Artdeco的韵味。现场制作木质床头,更加简洁易打理,也提升了品质感。
▲原洗手间改为开放式书房,用木质包裹梁柱,并打造了半高柜子,两个空间隔而不断、非常实用。
▲现场打造书桌,统一的木质带来柔和的温润感。让人就着窗外柔和光线,开启悠闲的阅读时光。这里也是猫星人最钟爱的地方!
▲工作区旁的玻璃门打开,则是屋主心心念念的大衣帽间,整整两面衣柜,足以储存心爱的衣物、包包,另一侧的抽屉则可以存放丝巾、内衣、首饰用品。统一的白色柜子、简约把手,让视觉更统一!
▲
软装推荐
书房花瓶:造作
书房单椅:IKEA
B
ATHROOM
▲墨绿色墙砖、黑白棋盘地砖,让卫浴空间复古腔调十足!洗手台、镜柜充分考虑收纳需求,让卫浴空间更为实用。
王尔德写过一句话,
“诗像水晶球,使生活美丽而不真实”。
这样充满诗意和创造力的家,
让生活变超越现实,更富想象力!
精致美好的人,家就应当是这种style!
🔗暗黑空间+“野蛮”水泥元素,高级感溢出屏幕!
🔗
轻奢风House颜值出众、功能实用!随手一拍都时髦!
🔗
她把家装成暗黑童话,一不小心跌进爱丽丝兔子洞!
客服
消息
收藏
下载
最近

























