查看完整案例

收藏

下载
-
品質當道 創新不滅
-
YUE
PAN DESIGN STUDIO
腾讯视频 《就匠变新家》第三季第九集,
本集听说“哈妮克孜”在节目中分享了自己在北京的家!
据说跟想象中的很不一样哦!小仙女的家是什么样子呢?
少女心、日式居室、秋千…
这大概是每位少女的梦想小窝了吧~
面对哥哥的高难度要求
本事务所将会设计出怎样惊艳的改造方案呢?
请大家搜索腾讯视频独播,
SMG第三季《就匠变新家》第九集设计改造节目
《”小仙女“哈妮克孜晒家装,喜剧演员给妹妹装修超贴心》
视频链接
/SHANGHAI, CHINA/
项目作品名称 | Project name:
阿球的宠妹套餐(起居室改造)
创意设计师 | Creative designer:潘悦
主案设计师 | Main case designer:杨杨
深化设计师 | eepening designer:洪玉洁
软装设计师 | upholsterer:郭晶晶
项目地址 | The project address:上海市曹杨二村65号506室
面积 | area:24㎡
户型| Apartment:一居室
起居室改造
项目设计实施 | Project implementation:上海潘悦建筑设计事务所
这个家的故事:
委托人:
29岁,
演员、编剧、《今夜百乐门》常驻嘉宾
改造故事:
阿球是一名演员,山东人,年轻时就来了上海打拼,啊球有一个表妹。24岁,性格内向酷爱画画,现在在上海做平面设计工作,工作状态是画插画,妹妹自己更爱画油画和速写。哥哥马上就要去北漂了,想将自己的房子偷偷改造成一间画室+起居室当做礼物送给妹妹。
▼
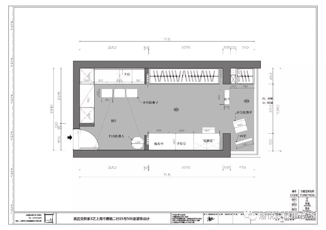
平面图,PLAN
(原始平面图)
改造述求:
1.增加画画空间
2.增加一个秋千以及可以荡秋千的地方
3.增加有落地大镜子的衣帽间区域
4.增加存酒和喝酒的聚会区域
5.增加工作区域
(收起模式平面方案)
(展开模式平面方案)
▼概念方案
,Conceptual plan
▼
效果图,Design sketch
(收起模式)
进门厅的区域(酒吧区,影视厅,瑜伽室)
1.一进门左边做了一整排柜子。门口的柜子下方放了红酒柜。上方做衣柜,方便挂近两天穿的衣服。中间做伸缩餐桌,收起来时当茶水台。放出来时当桌子方便与朋友聚会喝酒。
2. 上方做了一排卡座,卡座下方放置网框收纳旧杂志。
3. 收起餐桌可以在卡座这边看电影。多功能凳子当脚踏。
4. 下面做了一整排镜子。当餐桌多功能凳子全部收起的时候可以在这个空间练瑜伽。
5. 角落的地方放置扫地机器人,当所有东西收起来时整个空地方便扫地机器人打扫卫生。
(展开模式)
卧室区域兼具工作区绘画区
1. 整个上方做一整排柜子,床为翻板床。床收起时候整个一排看起来都是柜子。床的上方做衣柜。
2. 整个下方做了2.8米长的工作台。分别是80CM的梳妆台.100CM的手绘工作台。120CM的电脑插画工作台。椅子为带轮子的椅子。方便在长的工作台区域活动。
3. 阳台角落处放置画架和椅子,做了一个小的油画区域。
4. 油画区域的椅子为多功能椅子。可以变为一个小梯子。方便拿取比较高处柜子的物体。
5. 在卧室与阳台中间处挂了一个秋千。在休闲之余可以沐浴阳光。
(夜间模式)
▼
实景图,Real picture
▲施工过程
考虑到安全,我们取消了升降床的设计
▼
现场拍摄,Scene shooting
▲潘老师说
:
感谢业主的信任和支持选择了我们的方案。
YUE PAN DESIGN STUDIO
-
品質當道 創新不滅
-
今日头条
创意设计地址:
上海市徐汇区建国西路506弄懿园18号
创意热线:+8613764451191
上海潘悅建筑設計事務所
客服
消息
收藏
下载
最近














































