查看完整案例

收藏

下载
在这个快节奏的时代里
总有人心中藏着一片未被驯服的荒原
哪怕在满是钢筋混凝土的框架里
总有向上的生命力
在喧嚣中找到宁静 在束缚里觅得自我
本案地处繁华之中,却又不失宁静之美
"生活在城市中,难免丝竹乱耳,不如遁入蝉鸣晚风中,得一份闹中享静和融于自然的悠闲”。
为了满足业主对于商务接待及人文居住双重需求的独特愿景,设计师精心挑选了一系列贴近自然而又不失现代感的材料:洞石、岩石板以及带有细腻木纹装饰的木质表面……这
些元素共同构建出一个既符合都市节奏又蕴含自然韵味的空间氛围,完美契合了企业家们追求高品质生活与工作相结合的生活方式。
项目地点 ︱ 浙江永康
项目名称 ︱ 大地之光
项目类型 ︱ 私宅项目
全案设计 ︱ 星想设计
施工单位 ︱ 星皓工程
设计构思
Design concept
本案
建筑本体已有
15年,
房子原本的格局比较传统,
建筑规整,窗型封闭,
空间感比较差,也显得单调,没有生活感。我们
通过改造窗型,扩大见光面,使空间在最大程度上开阔视线、引进外部光源,
在拆除了全部墙体后,根据屋主一家的生活习惯和需求,重新规划了格局
地处商业化较为浓厚的地域,常有居家商务之需,我们利用了洞石、岩石板、木纹木饰面等自然的色彩和材质,去打造了一个都市感的空间,营造偏商务型的居家体验,利于业主更好的运用空间去提升企业主形象与气质。
“
于高山之巅,方见大河奔涌;
于群峰之上,便觉长风浩荡“
"At the summit of a high mountain,
one can see the great river surging forward. Standing on top of a group of mountains, one can feel the mighty breeze sweeping across
"
大地之光
——————
FUSION·AND·ALTOGETHER·LIFE
慢煮时岁,细烹雪月,或追字逐句,或浸润百茶,松弛且惬意
在这个快节奏的社会里,人们内心深处总藏着一份对山水之间那份纯粹美好的向往。
当屋主向我们提出希望能够将“
商务会客
”与“
亲近自然
”两大看似矛盾的概念融为一体时,我们选择了灰空间作为连接点——这是一种介于室内外之间的过渡区域,在这里,“山”、“石”、“水”、“墨”等传统中国画中的经典意象被赋予了新的生命。
通过胡桃木色的温润、灰色大理石纹理的细腻、不锈钢材质带来的冷峻质感以及大地色系瓷砖所散发出来的温暖气息,再加上特别定制的岩石PU板作为点缀,整个空间仿佛被赋予了灵魂般生动起来。
不同材质间相互映衬,形成了一种和谐而富有层次感的视觉效果;同时,流畅线条与几何形状巧妙结合,则进一步增强了空间的整体性和延展性。
相比浓墨重彩地强调,这个空间更倾向于轻盈地表达。从布局到陈列,让家成为滋养精神的场域,感受尺与度的奢阔。溯光阅境,容纳时间的叙写。生活感的浪漫温馨是特有的空间秩序,自然之意于纯粹简蕴的空间中畅游无阻,以温和的手法巧妙“重构”空间纵横与高下的合宜尺度,达成与自由共生的认识。
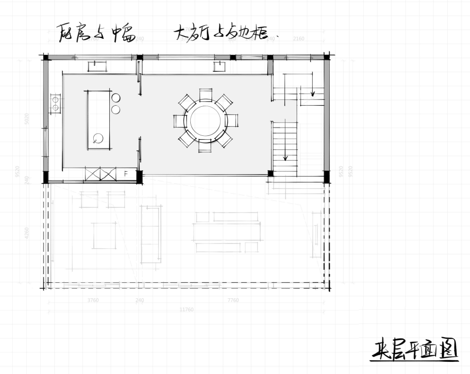
平面布置图
Floor plan
—落地故事 —
从手稿设计聊到方案深化,把空间想象转化为所见即所得,需要团队人员共同专研、奉献,爱护作品,才能获得成就感与荣誉感,无愧于心
.
From the manuscript design to the deepening of the plan, the spatial imagination is transformed into what you see is what you get, which requires team members to specialize, dedicate and care for the work in order to gain a sense of achievement and honor, and be worthy of your heart
—设计师简介—
左二 蒋昊宇
星皓设计 创始人
亚洲艺术十堂课 设计大使
右二
应欣潼
星皓设计 设计总监
星想设计 创始人
左一 李童莉
星皓设计 设计总监
星想设计 合伙人
右一 朱翔
星皓设计 设计总监
—项目荣誉—
XingHao Design
X
浙江·高川花苑-高端私宅
2023 France GPDP AWARD International Design Award - Residential Space - International Innovative Design Award
—公司简介—
WHO WE ARE
XINGHAO DESIGN
星皓设计
是一家集创意、室内空间规划、美学输出为一体的设计管理公司,设计力量分布全国,在金华、深圳、沈阳、成都设有设计分支机构。
星皓设计标语为“皓臻至美、星之所向”,力求将多元化创意的设计带给被服务对象,实现品牌价值。
我们通过多网络体系,实现多平台嫁接合作与落地项目,以团队力量进行设计深化,设计范围有:私人住宅建筑、企业办公、餐厅、会所、展厅、地产、民宿及酒店等。
More in weixin
|预约设计师
Company Address
金华公司:浙江省永康市园周江南艺术馆
用心設計 . 情境自然
星皓设计
荣誉
(可滑动哦)
CBDA中国建筑装饰协会专业会员
CIDA中国室内装饰协会专业会员
IFI国际室内建筑设计专业会员
APDF亚太设计联盟专业会员
APHDA亚太酒店集训营会员
HBI集团展厅合作设计师
中国范仲淹研究会理事
永康市青年联合会会员
永康市室内装饰协会会员
永康市创业青年联合会会员
2016年度中国装饰100强新锐设计师
2017年度中国装饰50强杰出设计师
2018年度中国装饰设计年度人物青年精英设计师
2018年度中国建筑装饰华鼎奖银奖
2018年度中国建筑装饰金鹰奖银奖
2018年度中国建筑装饰艾舍奖金奖
2019年度APSDA设计大赛十大豪宅设计师
2019年度M+中国高端室内设计大赛浙江省TOP30
2019年度青年室内设计大赛年度青年人物
2019年度装饰行业杰出室内设计师
2019年度IAI国际设计大赛室内空间奖
2020年度设计周Design Focus住宅空间设计大奖
2021年度40under40中国设计杰出青年
2023年度意大利IIDA最具国际影响力设计机构
2023年度法国双面神专业奖国际创新设计大奖
2023年度设计年鉴项目入选
2024年度亚洲艺术十堂课浙江区教育会长
客服
消息
收藏
下载
最近


![星皓[XINGHAO]新作 | 高川花苑:大地之光-0](https://image.linggan.znzmo.com/case/img/1c3102bb5e234ad6e22293747eab8bce47c09716.gif)
![星皓[XINGHAO]新作 | 高川花苑:大地之光-8](https://image.linggan.znzmo.com/case/img/f3b7cc822497d8f8d05a80271348348253663c15.jpg?x-oss-process=image/auto-orient,1/watermark,text_55-l5pyr5qGI5L6L,size_20,rotate_45,fill_1,t_5,x_200,y_200/resize,m_mfit,w_880,h_497,limit_0)
![星皓[XINGHAO]新作 | 高川花苑:大地之光-11](https://image.linggan.znzmo.com/case/img/25043bb206a3d1a6a401d741f37ca33103b8771b.jpg?x-oss-process=image/auto-orient,1/watermark,text_55-l5pyr5qGI5L6L,size_20,rotate_45,fill_1,t_5,x_200,y_200/resize,m_mfit,w_880,h_1319,limit_0)
![星皓[XINGHAO]新作 | 高川花苑:大地之光-12](https://image.linggan.znzmo.com/case/img/a661568b7bdc5f59f1f576b0687d4648aa659d8e.jpg?x-oss-process=image/auto-orient,1/watermark,text_55-l5pyr5qGI5L6L,size_20,rotate_45,fill_1,t_5,x_200,y_200/resize,m_mfit,w_880,h_1319,limit_0)
![星皓[XINGHAO]新作 | 高川花苑:大地之光-13](https://image.linggan.znzmo.com/case/img/70662baa001dc68b23dfc8fdef74d3da51f38361.jpg?x-oss-process=image/auto-orient,1/watermark,text_55-l5pyr5qGI5L6L,size_20,rotate_45,fill_1,t_5,x_200,y_200/resize,m_mfit,w_880,h_1319,limit_0)
![星皓[XINGHAO]新作 | 高川花苑:大地之光-14](https://image.linggan.znzmo.com/case/img/9d96e12db9b4e1cdcdc28378ba28731deeacc293.jpg?x-oss-process=image/auto-orient,1/watermark,text_55-l5pyr5qGI5L6L,size_20,rotate_45,fill_1,t_5,x_200,y_200/resize,m_mfit,w_880,h_1319,limit_0)
![星皓[XINGHAO]新作 | 高川花苑:大地之光-30](https://image.linggan.znzmo.com/case/img/fa36fe378e8fdc9b1516a59938e36dcae9176a62.jpg?x-oss-process=image/auto-orient,1/watermark,text_55-l5pyr5qGI5L6L,size_20,rotate_45,fill_1,t_5,x_200,y_200/resize,m_mfit,w_880,h_488,limit_0)
![星皓[XINGHAO]新作 | 高川花苑:大地之光-31](https://image.linggan.znzmo.com/case/img/227f1e1af4982108faaa8e654212b5fa2923d225.jpg?x-oss-process=image/auto-orient,1/watermark,text_55-l5pyr5qGI5L6L,size_20,rotate_45,fill_1,t_5,x_200,y_200/resize,m_mfit,w_880,h_488,limit_0)
![星皓[XINGHAO]新作 | 高川花苑:大地之光-32](https://image.linggan.znzmo.com/case/img/e731557f7701886b83d037a142e8e1ac037bb870.jpg?x-oss-process=image/auto-orient,1/watermark,text_55-l5pyr5qGI5L6L,size_20,rotate_45,fill_1,t_5,x_200,y_200/resize,m_mfit,w_880,h_488,limit_0)
![星皓[XINGHAO]新作 | 高川花苑:大地之光-33](https://image.linggan.znzmo.com/case/img/6e642573a3be5666b555f1545f8c012cc6653204.jpg?x-oss-process=image/auto-orient,1/watermark,text_55-l5pyr5qGI5L6L,size_20,rotate_45,fill_1,t_5,x_200,y_200/resize,m_mfit,w_880,h_488,limit_0)
![星皓[XINGHAO]新作 | 高川花苑:大地之光-34](https://image.linggan.znzmo.com/case/img/f780ef6738d9150275b6ac37a4094a702d4ed471.jpg?x-oss-process=image/auto-orient,1/watermark,text_55-l5pyr5qGI5L6L,size_20,rotate_45,fill_1,t_5,x_200,y_200/resize,m_mfit,w_880,h_488,limit_0)
![星皓[XINGHAO]新作 | 高川花苑:大地之光-36](https://image.linggan.znzmo.com/case/img/e2aa282a523f4ab4ecaa253a5f1098463758e866.png?x-oss-process=image/auto-orient,1/watermark,text_55-l5pyr5qGI5L6L,size_20,rotate_45,fill_1,t_5,x_200,y_200/resize,m_mfit,w_880,h_480,limit_0)
![星皓[XINGHAO]新作 | 高川花苑:大地之光-37](https://image.linggan.znzmo.com/case/img/23a6f5a40bd0db3e62df39181f301398d55ee695.png?x-oss-process=image/auto-orient,1/watermark,text_55-l5pyr5qGI5L6L,size_20,rotate_45,fill_1,t_5,x_200,y_200/resize,m_mfit,w_880,h_479,limit_0)
![星皓[XINGHAO]新作 | 高川花苑:大地之光-38](https://image.linggan.znzmo.com/case/img/9735f813f7f9177a2a4838335cfc67c95c05e522.png?x-oss-process=image/auto-orient,1/watermark,text_55-l5pyr5qGI5L6L,size_20,rotate_45,fill_1,t_5,x_200,y_200/resize,m_mfit,w_880,h_440,limit_0)
![星皓[XINGHAO]新作 | 高川花苑:大地之光-39](https://image.linggan.znzmo.com/case/img/a571ce9533da49051eefd921eb4b0fc6797c535d.png?x-oss-process=image/auto-orient,1/watermark,text_55-l5pyr5qGI5L6L,size_20,rotate_45,fill_1,t_5,x_200,y_200/resize,m_mfit,w_880,h_415,limit_0)
![星皓[XINGHAO]新作 | 高川花苑:大地之光-50](https://image.linggan.znzmo.com/case/img/705bf6c6dc00c93e1d0e48fd80dff0c342759419.jpg?x-oss-process=image/auto-orient,1/watermark,text_55-l5pyr5qGI5L6L,size_20,rotate_45,fill_1,t_5,x_200,y_200/resize,m_mfit,w_880,h_880,limit_0)
![星皓[XINGHAO]新作 | 高川花苑:大地之光-51](https://image.linggan.znzmo.com/case/img/eb7bb28ac724c3cd2d664eb02174fd91c4471ce9.jpg?x-oss-process=image/auto-orient,1/watermark,text_55-l5pyr5qGI5L6L,size_20,rotate_45,fill_1,t_5,x_200,y_200/resize,m_mfit,w_880,h_554,limit_0)
![星皓[XINGHAO]新作 | 高川花苑:大地之光-52](https://image.linggan.znzmo.com/case/img/104a1a6e416fd8065d0f195d5c5e09a11fd337ae.jpg?x-oss-process=image/auto-orient,1/watermark,text_55-l5pyr5qGI5L6L,size_20,rotate_45,fill_1,t_5,x_200,y_200/resize,m_mfit,w_880,h_543,limit_0)
![星皓[XINGHAO]新作 | 高川花苑:大地之光-53](https://image.linggan.znzmo.com/case/img/137ea096b270df1d353e090715fcb59a008bb51c.jpg?x-oss-process=image/auto-orient,1/watermark,text_55-l5pyr5qGI5L6L,size_20,rotate_45,fill_1,t_5,x_200,y_200/resize,m_mfit,w_880,h_1319,limit_0)
![星皓[XINGHAO]新作 | 高川花苑:大地之光-60](https://image.linggan.znzmo.com/case/img/158d3c444c84c6b5d012b81ec0bc8d52a5312cf7.jpg?x-oss-process=image/auto-orient,1/watermark,text_55-l5pyr5qGI5L6L,size_20,rotate_45,fill_1,t_5,x_200,y_200/resize,m_mfit,w_880,h_586,limit_0)
![星皓[XINGHAO]新作 | 高川花苑:大地之光-61](https://image.linggan.znzmo.com/case/img/5e6191bcdaae012a14554041e1afa81e280cc206.jpg?x-oss-process=image/auto-orient,1/watermark,text_55-l5pyr5qGI5L6L,size_20,rotate_45,fill_1,t_5,x_200,y_200/resize,m_mfit,w_880,h_1319,limit_0)
![星皓[XINGHAO]新作 | 高川花苑:大地之光-62](https://image.linggan.znzmo.com/case/img/56e452a7df69f8b6594b621f6db66435f8022947.jpg?x-oss-process=image/auto-orient,1/watermark,text_55-l5pyr5qGI5L6L,size_20,rotate_45,fill_1,t_5,x_200,y_200/resize,m_mfit,w_880,h_1319,limit_0)
![星皓[XINGHAO]新作 | 高川花苑:大地之光-63](https://image.linggan.znzmo.com/case/img/acb6b1765f391e110bae4b486030dc0565f49149.jpg?x-oss-process=image/auto-orient,1/watermark,text_55-l5pyr5qGI5L6L,size_20,rotate_45,fill_1,t_5,x_200,y_200/resize,m_mfit,w_880,h_1319,limit_0)
![星皓[XINGHAO]新作 | 高川花苑:大地之光-64](https://image.linggan.znzmo.com/case/img/bbe2f71598258f12c782c3e26c770849df6689de.jpg?x-oss-process=image/auto-orient,1/watermark,text_55-l5pyr5qGI5L6L,size_20,rotate_45,fill_1,t_5,x_200,y_200/resize,m_mfit,w_880,h_480,limit_0)
![星皓[XINGHAO]新作 | 高川花苑:大地之光-67](https://image.linggan.znzmo.com/case/img/95425eaaee5f91ec6ac288b9f132f3a350368b8a.jpg?x-oss-process=image/auto-orient,1/watermark,text_55-l5pyr5qGI5L6L,size_20,rotate_45,fill_1,t_5,x_200,y_200/resize,m_mfit,w_880,h_1319,limit_0)
![星皓[XINGHAO]新作 | 高川花苑:大地之光-68](https://image.linggan.znzmo.com/case/img/5835d09353ae5b5d477b1ef4337c76716e7ac107.jpg?x-oss-process=image/auto-orient,1/watermark,text_55-l5pyr5qGI5L6L,size_20,rotate_45,fill_1,t_5,x_200,y_200/resize,m_mfit,w_880,h_586,limit_0)
![星皓[XINGHAO]新作 | 高川花苑:大地之光-69](https://image.linggan.znzmo.com/case/img/9d1b3f823d66580f7aa3958afb7d4c35d9a9259c.jpg?x-oss-process=image/auto-orient,1/watermark,text_55-l5pyr5qGI5L6L,size_20,rotate_45,fill_1,t_5,x_200,y_200/resize,m_mfit,w_880,h_1319,limit_0)
![星皓[XINGHAO]新作 | 高川花苑:大地之光-70](https://image.linggan.znzmo.com/case/img/173507a0a4a1e80d15670cf738a5bf26a10251c6.jpg?x-oss-process=image/auto-orient,1/watermark,text_55-l5pyr5qGI5L6L,size_20,rotate_45,fill_1,t_5,x_200,y_200/resize,m_mfit,w_880,h_1124,limit_0)
![星皓[XINGHAO]新作 | 高川花苑:大地之光-71](https://image.linggan.znzmo.com/case/img/4a0ac90e6be7464e2e13f3835c1a8553fcdc9688.jpg?x-oss-process=image/auto-orient,1/watermark,text_55-l5pyr5qGI5L6L,size_20,rotate_45,fill_1,t_5,x_200,y_200/resize,m_mfit,w_880,h_1319,limit_0)
![星皓[XINGHAO]新作 | 高川花苑:大地之光-72](https://image.linggan.znzmo.com/case/img/0e6a62d4e77aeebe656a0bbd59ecb13d57670031.jpg?x-oss-process=image/auto-orient,1/watermark,text_55-l5pyr5qGI5L6L,size_20,rotate_45,fill_1,t_5,x_200,y_200/resize,m_mfit,w_880,h_619,limit_0)
![星皓[XINGHAO]新作 | 高川花苑:大地之光-74](https://image.linggan.znzmo.com/case/img/eb008454e6e1239ed59cc5864c5501fddb2d1266.jpg?x-oss-process=image/auto-orient,1/watermark,text_55-l5pyr5qGI5L6L,size_20,rotate_45,fill_1,t_5,x_200,y_200/resize,m_mfit,w_880,h_569,limit_0)
![星皓[XINGHAO]新作 | 高川花苑:大地之光-75](https://image.linggan.znzmo.com/case/img/a871dfd4f67296afee488a27c0e4cff69cb9a11f.jpg?x-oss-process=image/auto-orient,1/watermark,text_55-l5pyr5qGI5L6L,size_20,rotate_45,fill_1,t_5,x_200,y_200/resize,m_mfit,w_880,h_586,limit_0)
![星皓[XINGHAO]新作 | 高川花苑:大地之光-76](https://image.linggan.znzmo.com/case/img/0057f7aaecd3fda92bf12c836a06b7871fd7eb8d.jpg?x-oss-process=image/auto-orient,1/watermark,text_55-l5pyr5qGI5L6L,size_20,rotate_45,fill_1,t_5,x_200,y_200/resize,m_mfit,w_880,h_378,limit_0)
![星皓[XINGHAO]新作 | 高川花苑:大地之光-79](https://image.linggan.znzmo.com/case/img/52bc96a5ec00cbfd43588f47d558e1ea84c7bb9a.jpg?x-oss-process=image/auto-orient,1/watermark,text_55-l5pyr5qGI5L6L,size_20,rotate_45,fill_1,t_5,x_200,y_200/resize,m_mfit,w_880,h_622,limit_0)
![星皓[XINGHAO]新作 | 高川花苑:大地之光-80](https://image.linggan.znzmo.com/case/img/e70632ee394b019d13bc5e8070ce5a8fbaaeea0e.png?x-oss-process=image/auto-orient,1/watermark,text_55-l5pyr5qGI5L6L,size_20,rotate_45,fill_1,t_5,x_200,y_200/resize,m_mfit,w_880,h_700,limit_0)
![星皓[XINGHAO]新作 | 高川花苑:大地之光-81](https://image.linggan.znzmo.com/case/img/921e7ca888c2dd1f01580eb3e1bab62b4d8440b0.png?x-oss-process=image/auto-orient,1/watermark,text_55-l5pyr5qGI5L6L,size_20,rotate_45,fill_1,t_5,x_200,y_200/resize,m_mfit,w_880,h_699,limit_0)
![星皓[XINGHAO]新作 | 高川花苑:大地之光-82](https://image.linggan.znzmo.com/case/img/6fea02f3ebe18965b4ecdebef3e378bbb0ab58ef.png?x-oss-process=image/auto-orient,1/watermark,text_55-l5pyr5qGI5L6L,size_20,rotate_45,fill_1,t_5,x_200,y_200/resize,m_mfit,w_880,h_649,limit_0)
![星皓[XINGHAO]新作 | 高川花苑:大地之光-83](https://image.linggan.znzmo.com/case/img/36a7969de96e1b840282731adcc49535144892de.png?x-oss-process=image/auto-orient,1/watermark,text_55-l5pyr5qGI5L6L,size_20,rotate_45,fill_1,t_5,x_200,y_200/resize,m_mfit,w_880,h_657,limit_0)
![星皓[XINGHAO]新作 | 高川花苑:大地之光-89](https://image.linggan.znzmo.com/case/img/21f792fbfcb5cc02cb12a7cfe554e72fdf2f37e2.jpg?x-oss-process=image/auto-orient,1/watermark,text_55-l5pyr5qGI5L6L,size_20,rotate_45,fill_1,t_5,x_200,y_200/resize,m_mfit,w_880,h_1125,limit_0)
![星皓[XINGHAO]新作 | 高川花苑:大地之光-90](https://image.linggan.znzmo.com/case/img/68cc2e4f5af3d25a9544c23fd3326357c56d129d.jpg?x-oss-process=image/auto-orient,1/watermark,text_55-l5pyr5qGI5L6L,size_20,rotate_45,fill_1,t_5,x_200,y_200/resize,m_mfit,w_880,h_1123,limit_0)
![星皓[XINGHAO]新作 | 高川花苑:大地之光-91](https://image.linggan.znzmo.com/case/img/d734a985d3d932f716f6a6cd611e2aafaac2d7dd.jpg?x-oss-process=image/auto-orient,1/watermark,text_55-l5pyr5qGI5L6L,size_20,rotate_45,fill_1,t_5,x_200,y_200/resize,m_mfit,w_880,h_1120,limit_0)
![星皓[XINGHAO]新作 | 高川花苑:大地之光-92](https://image.linggan.znzmo.com/case/img/e08482c15f36b4320ed50ea4c7676c30c5517a7d.jpg?x-oss-process=image/auto-orient,1/watermark,text_55-l5pyr5qGI5L6L,size_20,rotate_45,fill_1,t_5,x_200,y_200/resize,m_mfit,w_880,h_1152,limit_0)
![星皓[XINGHAO]新作 | 高川花苑:大地之光-110](https://image.linggan.znzmo.com/case/img/728839a4a40b23b8c2f1e033f476d11a3916c66b.png?x-oss-process=image/auto-orient,1/watermark,text_55-l5pyr5qGI5L6L,size_20,rotate_45,fill_1,t_5,x_200,y_200/resize,m_mfit,w_736,h_577,limit_0)
![星皓[XINGHAO]新作 | 高川花苑:大地之光-123](https://image.linggan.znzmo.com/case/img/ae52d3cd60f76b824ac7a85e3443c05f4474c0fc.jpg?x-oss-process=image/auto-orient,1/watermark,text_55-l5pyr5qGI5L6L,size_20,rotate_45,fill_1,t_5,x_200,y_200/resize,m_mfit,w_880,h_156,limit_0)
![星皓[XINGHAO]新作 | 高川花苑:大地之光-154](https://image.linggan.znzmo.com/case/img/8bc782165c861e9b543b6d0e58561488319754eb.png?x-oss-process=image/auto-orient,1/watermark,text_55-l5pyr5qGI5L6L,size_20,rotate_45,fill_1,t_5,x_200,y_200/resize,m_mfit,w_790,h_1119,limit_0)
