查看完整案例

收藏

下载
F
OR DESIGN
Home &house
“精筑奶油小居,漫享精致生活”
Create a creamy small home, enjoy an exquisite life.
设计理念:
在90㎡的有限维度里,我们以"现代奶油美学"为设计母语重构空间,柔软色调与弧形线条消弭边界压迫感,模块化设计与嵌入式收纳创造弹性生活场景。天然肌理与漫射光影交织,让有限面积承载无限治愈感,诠释“精筑”与“漫享”的共生哲学。
▼
设计亮点:
空间的巧妙魔法
▷ 半开放式采光妙笔:厨房摒弃传统封闭格局,采用半开放式设计。拆除墙面换上玻璃墙与玻璃移门,如同为厨房打开一扇光明之窗,让自然光得以长驱直入,大幅提升厨房光照,使其告别昏暗,充满明亮与活力。
▷ 吊顶灯带灵动巧思:独具匠心地将灯带融入吊顶设计,灯带仿若灵动的线条,贯穿空间。不仅巧妙增强了各个区域的整体连贯性,更以视觉错觉,缩短了过道的冗长感,让原本可能压抑的狭长空间,瞬间变得开阔且富有层次。
▷ 功能柜体一体美学:电视背景墙与鞋柜、餐边柜、冰箱柜实现一体化创新设计。各功能区域无缝对接,在满足日常生活实用需求的同时,营造出和谐统一的视觉美感,为居住环境增添一份精致与优雅。
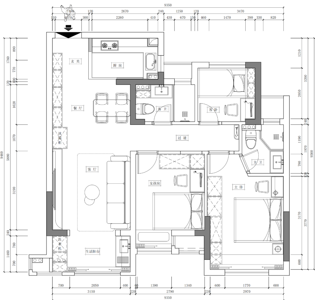
原始结构图
平面布置图
▋▋▋
客 厅 &餐厅
DRAWING ROOM & DINING HALL.
通透敞亮的温馨主场
踏入家门,客厅与餐厅的通透格局即刻映入眼帘,客厅 - 餐厅 - 阳台一线相连,毫无阻隔。整个空间以纯净白色为底色,营造出明亮开阔的视觉感受。
客厅采用纯白的背光电视机背景墙简约大气,成为视觉焦点。圆形茶几搭配透明茶色的圆形高几,一实一透,错落有致。柔软的驼色沙发上,铺上白底黑方格的沙发毯,为空间增添一份闲适与俏皮。沙发背后那盏极具设计感的几何长条形灯,宛如一件艺术珍品,散发着独特的魅力,为整个空间注入艺术氛围。
移步餐厅区域,暖白色柜面搭配咖色柜体,深浅交织,尽显温馨质感。旋转可伸缩的白色餐桌,实用且时尚,搭配驼色坐垫与白色椅背的餐椅,舒适与美观并存。置于两厅之间的白色嵌入式冰箱,不仅是生活的便利之选,更成为空间过渡的自然衔接点。
厨 房
KITCHEN.
小巧空间的极致利用
厨房位于入户处,通过拆除原有墙面,替换为玻璃墙与玻璃移门,实现了空间的通透与采光的优化。两面玻璃墙宛如明亮的画布,将自然光引入厨房的每一个角落。玻璃移门巧妙设计,可完全嵌入墙面,有效节省空间。在这个不大的空间里,布局紧凑合理,充分利用每一寸空间,实现了功能性与美观性的完美平衡,让烹饪成为一种愉悦的享受。
卧 室
BEDROOM .
宁静与舒适的港湾
主卧延续暖白色调,营造出温馨宁静的氛围。驼色床背宛如温柔的依靠,给予人安心的感觉。床的一侧,一盏黑色圆形床头灯静静伫立,散发着柔和的光晕,为睡前阅读提供温馨光源;另一侧,上方悬挂的吊灯造型独特,为空间增添一份别样的浪漫。
两个床头柜均采用白色柜体搭配驼色台面,简洁而不失优雅。床头一侧的高柜,驼色柜体搭配白色柜面,不仅提供了充足的收纳空间,还与整体风格相得益彰。另一侧,床头柜与飘窗巧妙融合,极大节省空间。飘窗上精心布置白色与驼色垫子,搭配浅驼色窗帘,当阳光透过窗帘洒下,整个空间都沉浸在一片柔和的光影之中,打造出舒适惬意的休憩港湾。两间卧室之间的走廊,通过一条灯带与设计感十足的高低台,巧妙地转化为一处精致的景观,为空间增添了独特的趣味性。
女儿卧室将空间利用发挥到极致。白色柜面使整个空间显得明亮洁净,胡桃纹柜体不仅展现出自然质感,还巧妙地延伸出一体书桌,满足学习与收纳双重需求。柜体靠墙一侧延伸形成背发光的床靠,独特新颖,既保证了睡眠的舒适,又增添了一份梦幻氛围。床头悬挂的月亮型灯,造型俏皮可爱,散发着温馨光芒,为女儿打造出一个充满少女心的梦幻小天地,让她在这个空间里尽情发挥想象,快乐成长。
▋▋▋
项目地址 | Address:杭州·福滨沁苑
项目面积 | Project Area:90㎡
设计风格 | Design Style:现代奶油风
空间配置 | Space configuration:2室2厅1厨2卫
设计团队 | Design Team:中博美家
客服
消息
收藏
下载
最近






















