查看完整案例

收藏

下载
PROJECT BY
:
TREE LAB DESIGN
LOCATION
:
Beijing,China
建筑和汉字的表达方式有异曲同工之妙,即“用凝练的几个字表达广阔的含义”,那么“一笔能解决的问题,为什么要费两笔呢?”于我而言,设计不是做加法,而是做减法。该项目遵循环保理念,空间内部装饰材料以微水泥和实木板材为主,回归生活本质,体现禅的精神。
Landscape Design
01
Sense of boundary
材质的变化既保证了对方正空间的感知,又丰富了空间内部的限定感受
HALL
玄关选用了浅色木饰面做背景墙,丰富了肌理感的同时,色彩增添的层次感赋予强烈的视觉感受,突出了玄关的独立性,同时也强化了界限感。动线继续向内,则需要弱化这种边界从而让视觉延伸进去,弧形的墙面刚好起到这一作用。
02
Axial field
空间中不同的轴场方向带来不同的视觉感受
LIVINGROOM
顶地界面的深浅用色不同,区分了主要空间和次要空间。主要空间的顶地都采用木纹,从而带来重力视觉感受 ,视觉限定感较强;而次要空间整体则用浅色微水泥,主次划分清晰。虽然各个空间边界模糊化处理,但空间中轴场关系密不可分。
03
Shadow
光与影的变化以及材料的配合
DININGROOM
无论在这个结构内部再怎么丰富细节,只要保证色彩、材质、造型和肌理感受不要超过这个结构特征,这种秩序感就不会被打破。除了空间感和轴向关系,光影的变化也至关重要,优秀的园林设计加上蓝天白云的衬托,室内呈现出生机盎然、自然禅意的平静感。
04
Visual tension
利用色彩和材质的变化丰富空间内部的限定感受
△家庭室
△西厨
空间中放置靛蓝色的沙发,视觉感受超越了空间中素色的对比,张力就此产生。同时,空间的主要轴场倾向发生了改变,变成了斜向,而横纵倾向则相对变得次要,这样改变张力和重力的方式起到了吸引的作用,色彩运用得当则会带人给极致的舒适体验。
△茶室
△茶室
△家庭室
△茶室
05
PLAN
二维是三维的基础,即平面是三维建模的核心,所以布局规划的合理性至关重要。
Plane planning
△负一原始结构图
△规划后平面布置图
原地下采光很差,改造后在南面增加了一排天窗、空间尽可能开放为增加整体通透性,这样阳光可以由上至下照进来,让光做纽带连接每个房间,明暗之间,光影浮动,让空间内部流动的气韵和实体在室内交融,即使是地下室也不感到压抑,反而多了一丝静谧和美好。
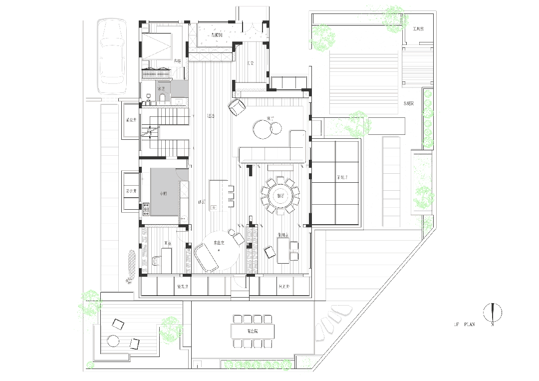
△一层原始结构图
△规划后平面布置图
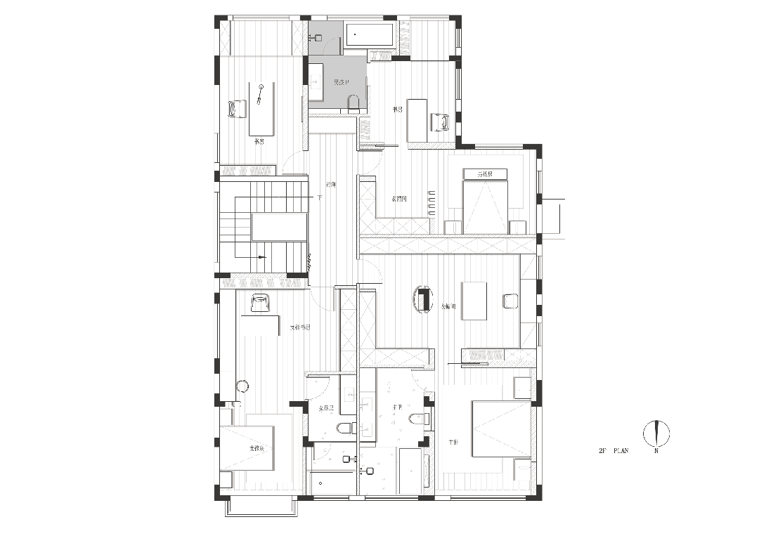
△二层原始结构图
△规划后平面布置图
通过改变原有结构,让内部空间功能更加完善。设计的初衷是为了提升生活质量和便利性,而不仅仅只是为了观赏。
客服
消息
收藏
下载
最近








































