查看完整案例

收藏

下载
设计 / 恒合立创
序幕
一个房间最动人所在
即当光线从这房间的窗棂穿过
并成为这房间的一部分
太阳从不知道自己有多伟大
直到它照到建筑物
—— 路易·康
-
本案位于福建南平,由两套平层打通,打破、重组,在建构,将空间化繁为简,元素之间和谐而宁静,恰到好的的设计语言简约而不简单,极致的细节体验,诠释最纯粹的美感与力量
重塑秩序
灵感与细节交融
艺术是美的内核,是空间浓缩的本质,任其自然发酵产生新的秩序,收获意想不到的美;寻找光,寻找本质印象,追求自由,永无止境。空间的纵横与开合,在光影的配合下,有序、丰富且层次分明。在空间中游走,自然光透过百叶窗进入室内,光线或近或远,忽明忽暗,既温柔又炽烈。天地无界,光影跳动。
打开原始封闭房间架构,协调建筑体块与室内陈设,布局以开放式书房。梳理平面动线,明确高开放度的公区,休闲区,客厅与餐厨彼此相通。感受空间最大限度交融,目之所及处关注彼此的生活动态。
流动空间
共鸣与自在的呼吸
“在自己喜欢的时间里,按照自己喜欢的方式,去做自己喜欢做的事,对我而言这便是自由。”
—— 村上春树
抛却冗余的装饰陈设,追求简素设计语言,让空间成为装载情感与温度的容器,在不同时间容纳业主的各种生活方式,阅读、烹饪、办公、休闲……
极致细节
是极简也是人间烟火
形式融入功能,体块间自由组合,呈现几何美学的艺术气息。整体的系统家居贯穿空间美学,开放自由的收纳空间,预留未来让业主自由装饰的更多可能性
空间的一致性,是设计细致入微的考量。一体化岩板吧台、包豪斯风格家具,金属质感与婉约木色碰撞,极简设计让空间氛围更加纯净。
静谧栖居,质感营造
舒适自由的视觉,源于设计对细节的敏锐洞察与悉心刻画。通过设计手法的把控、材料工艺的建造,精心呈现如艺术品般一体质感的生活场景。
相较公区的灵动,卧室更加静谧。窗外广阔自由的松山湖景观,如画框般映入室内,流动勃勃生机。纯净之余,舒心依靠窗畔,在与自然的交互中,舒缓情绪。
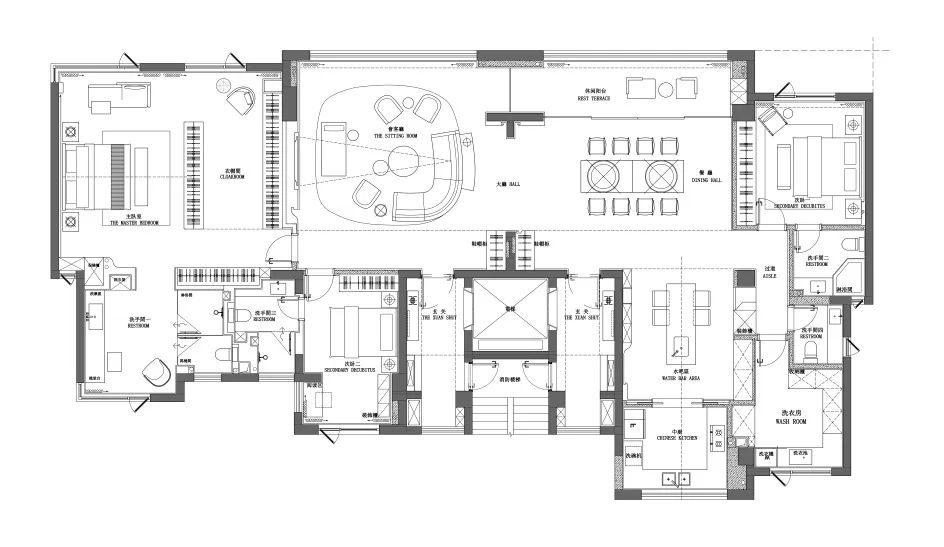
分析图
项目信息
项目名称:极简私宅:逐光踏影,心之所往
项目地址:福建·南平
项目面积:300㎡
空间设计:福建HHD恒合立创设计机构
主创设计:潘自立 林祥棋
设计团队:张弓 杨洋 陈榕 陈明强 王俊杰 潘宏伟
设计时间:2022.05
完工时间:2023.12
主要材料:艺术涂料 天然木皮 岩板
施工单位:吴勇军
项目摄影:徐义稳
HHD-恒合立创是一个正在成长和壮大中的团队,有着前瞻性设计思维的设计事务所。恒合立创,一个融合“恒心、合作、立基、创新”四大核心价值的品牌。恒合立创,是恒心与合力的完美结合,我们深谙“持之以恒,执行合一”之道。我们坚守初心,追求卓越,用心打造每一个项目,确保完美呈现。我们不仅是设计者,更是理念的践行者,致力于为客户创造真正的价值。在建筑设计、室内设计、景观设计、产品设计等领域开拓深耕,坚持以探究性的态度来实践空间创作过程中人与环境、人与人的交互关系,深入挖掘空间的真实需求。其作品囊括诸多国内外权威赛事殊荣。
客服
消息
收藏
下载
最近





































