查看完整案例

收藏

下载
房屋位置:兰州逸品华府
建筑面积:120㎡
装修属性:毛坯房新装
装修风格:现代法式风
HEYHOUSE × 甜蜜夫妻
房子的女主人是互相加了很久的好友,虽然几乎没怎么聊过天,但当她找到我,聊起对房子喜好的时候她竟能拿出我们很久前的作品,细数着她对这些作品的喜爱。她说她默默关注了我们很久,喜欢了我们很久。每次遇到这样的客户都令我心生感动,这也是我们继续走下去莫大的动力。
米饭哥哥,房子的女主人,喜欢复古的法式风和绚丽的色彩,需要大量的衣物收纳,想要一个有着浴缸的复古风浴室;
Boogie,男主人,喜欢街舞、拳击、游戏和烹饪,需要给这些爱好留有足够的空间
,喜欢社交型餐厨的形式并且非常喜欢鱼骨拼原木色木地板。
在风格上我们一拍即合之后,很快就敲定了方案。
Design
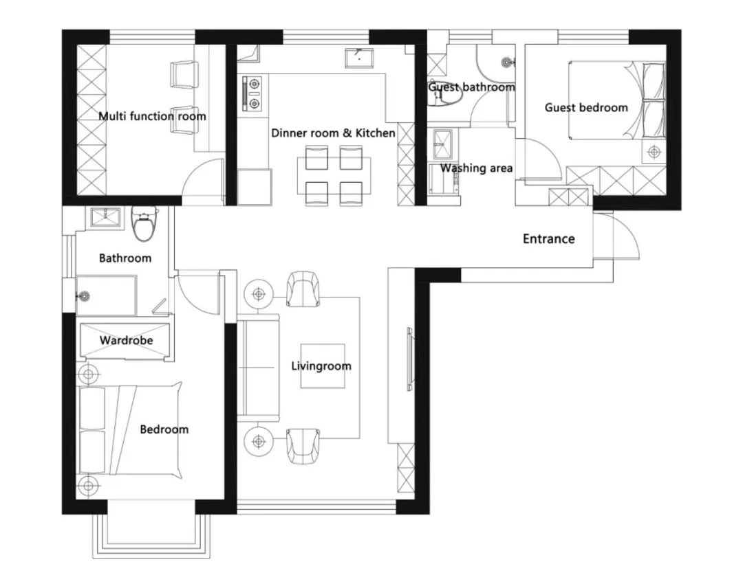
我们在原本的户型上做了三处调整
1.将厨房与餐厅进行了合并,呈现了社交型餐厨区。
2.移动了原本客卧的墙体,使得玄关处有了鞋柜的位置。
3.主卧利用
新砌薄墙做了步入式衣橱。
△(结构变更)
△(改造后平面图)
Details
使用大量色彩区分功能区:
女主人性格活泼,喜欢五彩缤纷的颜色,仿佛每一种色彩都能带给她许多的快乐。于是我们大胆的尝试,用不同的颜色去区分每个功能区——日常起居的客厅我们选择了薄荷+白色;一年四季、一日三餐的地方我们用了豆沙+灰蓝绿+黑胡桃;慵懒而甜蜜的卧室则选择了复古蓝+蜜桃粉。想要呈现每进入一个空间都能给人一种耳目一新的感觉。
很多有趣的拱形门洞
:
拱形也是女主人非常喜爱的元素之一,我们将家里所有的垭口都做成了拱形,同时给每个门洞都刷上了色彩,整个家里的氛围突然就变得柔软又有趣起来。
很喜欢他们知道自己喜欢什么、不喜欢什么;很喜欢他们能替自己的婚房做决定,就像对自己的人生负责那样;很喜欢他们朝着同一目标一起努力的样子。
酸甜色系的客厅:
房子的户型属于阳台内置,我们想要在视觉上让它与客厅有一个区分,所以阳台的墙面、顶面都选择了薄荷色,同时我们也选择了定制烤漆工艺的门板,做了和墙顶面同色的阳台储物柜。这样整个阳台的区域都是清清爽爽的薄荷色。
(值得一提的是,为了将门板颜色与墙面色漆调至非常接近,PPG大师漆和我们的全屋定制工厂都很努力的反复做了尝试,呈现了最后近乎一致的颜色效果)。
想让整个空间看起来纯净又温暖
,于是客厅整体选择了白色
;同时将阳台的薄荷色延伸至客厅,让它们拥有统一的元素。
“我一定要买一个LAZY BOY!”米饭哥哥跟我说,她说拥有一个LAZY BOY的椅子是她上学时候看老友记就有的梦想,挑挑选选最后我们选择了千鸟格款,加上清新的碎花地毯,酸甜又清爽的客厅就呈现了出来。
复古色系的餐厨区:
清晨浓浓的咖啡香和黑胡桃色最配了,所以我们决定用黑胡桃覆盖整个用餐区,这是耐用又耐看的选择。
橱柜选择了和客厅同样低饱和度的豆沙色和灰蓝绿,搭配奶油色的墙砖,一个莫兰迪色系的厨房,谁不想一日三餐呢?
最喜欢厨房的窗向外望去,院子里刚栽种的小树也在陪着他们慢慢长大,突然就想起万青的歌儿“是谁来自山川湖海,却囿于昼夜,厨房与爱......”。
暗色系甜蜜卧室:
最开始想尝试这种大胆撞色的时候很担心他们会拒绝,尝试性的拿了一些意向图片给他们看,没想到他们非常的喜欢,于是我们毫不犹豫的选择了复古蓝+蜜桃粉,加上法式特有的虎头线条,甜蜜的法式摩登风拉满!
氛围感卫生间:
非常非常喜欢这个摩登感十足的卫生间,谁说卫生间就必须白砖灰地呢?用了红棕色的小花砖搭配复古蓝色,IMOLA的XENO系列做了腰线是点睛之笔,非常的耐看且有趣。点一支蜡烛,泡在浴缸里的时候,仿佛置身地中海一样。
书房、衣帽间与很多欢乐:
另一间客卧我们起初的设计是书房和衣帽间共存的多功能室。整面墙带镜面的衣柜,既能储物、随心所欲的照镜子,还能视觉上扩大房子的空间感。
本来是花心思最少的房间,却给了我莫大的惊喜感。因为他们赋予了这个房间一个新功能——boxing!
Boogie跟我说
拳击是最好的有氧运动,我说拳击是增进感情最好的糖果。那天的黄昏,我们拍下了他们最甜的画面~
一开始给房子拍摄的时候我跟BOOK商量,想要拍一组居家风的婚纱照,不用租借华服与外景,穿着最日常的家居服,
也不必浓妆
艳
抹,带着烟火
气与生活琐碎的照片才是真正的爱情吧。
(高甜预警!接下来你们将看到一组来自BOOK老师拍摄的居家风婚纱照~)
房子的拍摄其实在西瓜味的夏天就已经完成了,本想在房子主人婚礼当天作为礼物发出,来祝福他们即将开始的幸福生活。不料疫情反复,让这对小夫妻的婚礼一再延期,思来想去,决定择日不如撞日,就在圣诞节的今天送出这个祝福。
“你身上有好闻的烟火气,我也因此爱上了你”
“每个清晨醒来,你和阳光都在,只觉人间美好,万物可爱”
这些形容爱情的句子似乎每一句都在形容他俩的爱情
请一定一定要幸福哦~
又是一年圣诞节,感谢一直以来陪伴喜室看风景的小伙伴们,祝大家圣诞快乐~
我们2023年的预约已经开始,欢迎咨询哦~
客服
消息
收藏
下载
最近




























