查看完整案例

收藏

下载
中式元素贯穿了整个家居空间,
是对东方特有美感的传承与启发。
本项目的使用者为四口之家,
这对文化底蕴深厚的父母,
选择了更为年轻一代接受的简约东方风格,
不回避传统元素,不回避当下审美,慕古而不复古,
在意象上追述,在韵味上靠近。
东方文化的最高追求不是美,是雅。
黄杨木直纹木纹饰面,
配合上简约素雅的岩板面,纯白石座,
电视背景墙在有意无意的现代极简与传统中式的对碰中,
运用了不同比例的调和,
灵动精致,富有层次感;
左侧上方的月球灯聚焦视线,
将角落处点亮,灯光映射在木饰面上温暖舒适;
点亮的灯光,
也引向了通往由阳台改造的,可饱览一线江景的茶室空间。
客厅空间
简体中式的表达,
是独特、干净、简约,但又不乏细节,
令人有不断发现的惊喜。
客厅及过道空间
入门即见过道,
房间门前的一侧作为端景位置,
搭配绿化,使室内空间顿时绿意盎然,充满生机。
入户玄关及过道空间
与客厅相接的是就餐区及厨房位置,
雅致的水墨画墙布,
转角压背屏风,
中式韵味的餐椅和大理石金属质感的餐桌,
搭配那一抹绿意盎然,
让整个餐厅充满了生活气息,
却又不乏高雅与舒适。
餐厅空间
设计师回到文化审美的初衷,
把清雅的水墨禅韵的东方意境融入空间,
传达出人与空间,人与人之间的美好关系,
让身处其中,即可找回内心的宁静。
通过走道,便可进入各个家庭成员的的隐私空间。
走廊的尽头,是主人家的卧室,
水墨画床头背景传承了中式文化在主卧中的诠释。
主卧及主卫空间
小孩房及书房延续了各个空间的韵味,
木色与白色的交融,
被去掉具象的元素,抽象成了构图与气质,
浓浓地贯穿于每个空间,干净,整洁,
放松而舒适,
却依然保证了储物空间的充足。
小孩房及书房空间
本案的设计方式,
设计师希望
呈现给业主一种隐约而有内涵的东方印象,
现代与传统文化互相穿插,互相交融,描绘出一幅当代水墨。
效果图方案
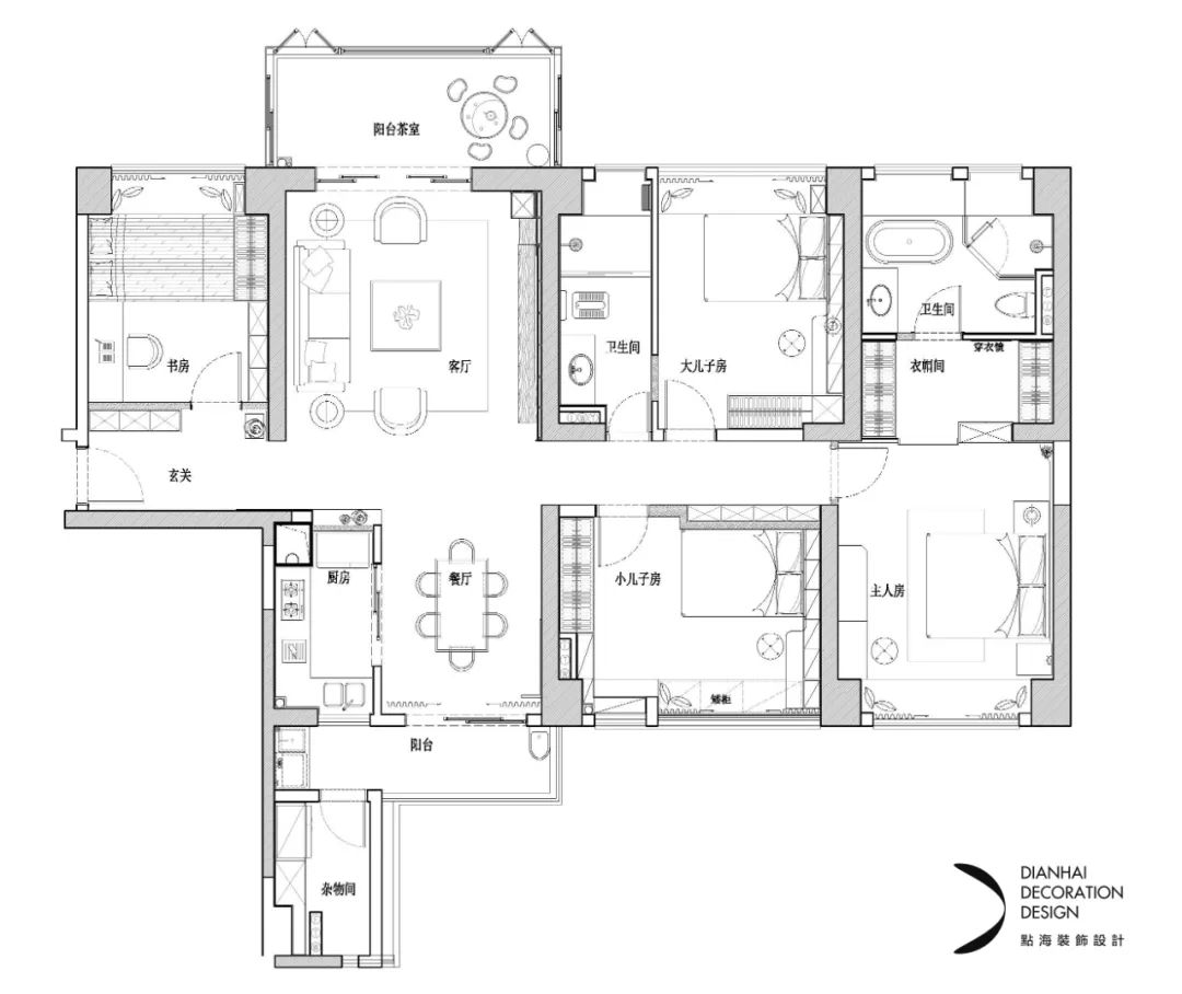
平面图
项目地址:
佛山市顺德区泰禾红郡府佛山院子
项目面积:200㎡
完工时间:2021.9
设计团队:佛山点海设计
软装设计:采虹空间
项目摄影:一千度视觉
施工单位:佛山市点海装饰设计工程有限公司
主材品牌:科定涂装板、HBI瓷砖、梵素灯光、乐家卫浴、板博士板材、书香门地木地板、里斯蒂诺墙布、大金空调、玛格定制
核心团队
关于点海
佛山市点海装饰设计工程有限公司创建于2009年,是集室内设计,环境设计,软装设计等一体化的综合性专业设计公司,主要从事办公空间,酒店民宿会所空间、高端居住空间、商业空间等设计项目。通过十多年来多样化设计项目的经验与累积,公司拥有资深的服务团队,其获得多项国内外设计大奖。公司对设计风格及设计素质要求严谨,以专业团队的努力协作,从空间、材料、家具、软装,各个环节紧密把关,确保为客户提供至高水准的个性化定制服务。
公司荣誉
--------------------------------------------
2021年
照明应用设计大赛(祝融奖)
全国铜奖
2021年第四届中国室内设计企业百强城市榜 TOP10;
2020金尺杯国际设计大奖赛 办公空间 铜奖;
2020晶鲲鹏国际设计大奖赛 创意办公空间 铜奖;
2020中国照明应用设计大赛 办公空间 佳作奖;
第32届中国 佛山陶博会广东室内设计50强;
A963设计网2017-2018年度佛山地区 年度优秀设计团队;
广东省用户满意服务明星企业;
第九届中国照明应用设计大赛 广州赛区家居空间 一等奖;
第九届中国照明应用设计大赛全国总决赛家居空间 铜奖 最佳人气奖;
2017台湾设计周|IDS国际设计先锋榜 住宅空间优胜奖;
2016-2017年度国际环艺创新设计作品大赛(华鼎奖)别墅豪宅空间类金奖;
第二届中美国际设计交流展专业奖 商业空间类 铜奖;
2016享受家空间陈设设计大赛 展示空间 银奖;
第三届中国建筑装饰设计艺术作品展 CBDA设计奖展示空间铜奖;
第三届中国建筑装饰设计艺术作品展 CBDA设计奖娱乐空间优秀奖;
第十一届中国国际室内设计双年展 酒店空间 优秀奖;
第四届中国建筑装饰设计艺术作品展 CBDA设计奖办公空间铜奖;
第四届中国建筑装饰设计艺术作品展 CBDA设计奖酒店空间铜奖;
第八届中国照明应用设计大赛(祝融奖)佳作奖;
佛山市2013-2014年度优秀工程勘察、优秀工程设计项目(剧院)二等奖;
地址:佛山市顺德区乐从镇裕和路金海创意中心1904
客服
消息
收藏
下载
最近















































