查看完整案例

收藏

下载
东易日盛
合景
映月台
未来科技城首席低密大盘
建筑大师密斯•凡得罗曾
说过,“建筑是凝固的音乐
,音乐是流动的建筑。
合景映月台便以建筑的韵律,奏响美妙的居住生活。
它踞未来科技城溪望路与文常路交叉口,
三个湿地相望,两弯河流环绕,
创新院落空间,多重私密花园,让城市生活风情万种。
1
东易日盛,诠释上市品质
东易日盛作为家装行业率先上市公司,以顶配资质
潜心研发
,
与昼夜同在,和数据为伍,
致敬合景映月台
最经典细节,
匠心雕琢悦享之居。
2
大咖领衔,演绎墅装美学
墅,是人类向往的居住理想。
在城市的霓虹灯光中,“墅”已成为越来越依稀的时代背影。
在东易日盛便有这样的一群人,
他们专做别墅设计
,代表着墅装设
计的美学巅峰
,他们就是—原创国际别墅设计中心的大咖设计师们。
▲
原创国际别墅设计中心设计师
他们作为合景映月台的核心设计团队,针对不同户型结构特点,着眼全局,精求细节,为生活带来更多可能。
3
至臻设计,雕琢千面生活
每一个户型都装着许多温馨有故事的家,而我们要做的,就是用顶尖的专业,
全方位定制居者对家的无限想象。
今天就为大家带来上市企业东易日盛的墅装设计师们,针对合景映月台的独家户型解析。
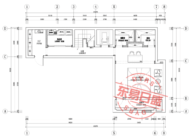
NO.1 /
170㎡户型-陈李作品
平面方案图>>
意向效果图>>
NO.2 /
225㎡户型-任周府作品
平面方案图>>
意向效果图>>
NO.3 /
170㎡户型-陈李作品
平面方案图>>
意向效果图>>
NO.4 /
225㎡户型-周小煜作品
平面方案图>>
意向效果图>>
▲
意向效果图1
▲
意向效果图2
NO.5 /
170㎡户型-任周府作品
平面方案图>>
意向效果图>>
或拨打免费咨询热线:400-0060-251 即可在线预约设计方案哦~
▽
想要更好的了解全案设计
当然是近距离全方位的感受最实际
这一次,机会来啦!!!
春日米兰,释放美力
温暖四月,约惠东易
邂逅米兰,引领潮流
超值钜惠,冰点折扣
家装盛会,即将启幕
活动亮点一:精美定制礼
活动当天,到场客户均可领取定制礼品一份。
活动亮点二:疯狂金蛋礼
1、签订协议客户均可参与欢乐砸金蛋活动,小米43寸液晶电视、小米空气净化器、碧然德净水器等价值数万元家电大礼百分百中奖,免费带回家!
2、前8户签单业主可免费参与米其林甜点大师课程。
活动亮点三:工地参观礼
4月为东易日盛二季度“工地大比武”专属月,每周均组织工地直通车活动,由资深项目经理讲解工艺及隐蔽工程,可直接点选金牌项目经理及提供免费验房服务。
活动亮点四:团购优惠礼
1、重点小区团购业主专属优惠(见团购优惠单)
2、现场找团友(2户成团),设计费立减500元+产品券500元+工程抵用券500元。(均折前使用,多一户单项均增加500元)
活动亮点五:达人分享礼
1、转发米兰活动推图且成功签单可免费苏泊尔榨汁机一台。
2、签单开工后朋友圈发装修日记三次以上,可免费获得价值500元绿植一份。
更多惊喜 到场揭晓
杭州会场
活动时间:4月13日全天
活动地点:杭州黄龙饭店一楼紫荆厅
萧山会场
活动时间:4月14日(13:00--18:00)
活动地点:萧山金马饭店三楼凤翔厅
预约热线:400-0060-251
❤
或拨打
400-0060-251
了解更多家装资讯
客服
消息
收藏
下载
最近



























