查看完整案例

收藏

下载
Project Name/项目名称:绿景虹湾壹号
Designer/设计师:
濮帅帅
Area/面积:202㎡
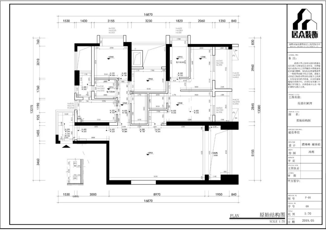
▲原始户型图
▲设计师平面布置图
3房-2厅
现代设计风格,半包造价30w
业主是位85后成功人士,从事金融行业,针对他的职业和性格,设计师团队将整体风格定为现代轻奢风格。
本案设计简洁明快,注重室内空间的使用功能,主张废弃繁琐的装饰,室内布置按功能区分的原则进行,家具布置与空间密切配合,色彩造型紧跟时尚潮流,以个性化、简单化装修方式打造舒适家居。
客厅空间设计采用了中性而又低奢的黑镜钢线条,材质一直伴随着主旋律而存在,现在千篇一律的高级灰空间效果会稍显缺乏生活气息,所以本案中设计师加入了不同的暖色来点缀,在拉开空间层次感的同时赋予了每个空间不同的灵魂。
客厅、餐厅采用一体化开放式布局,气氛利落贯通,视线一览无遗。
设计师用连贯的材质规划贯通空间,细腻缜密的木饰面作为背景过渡。
暖一分则俗,冷一分则素,明媚宁
静融合出空间的交互对话。
以爱马仕橙与米色为主色基调,以木质的温润为气氛内核,用光线和家具、陈设的点缀使其焕发出艺术生命力,时尚纤细而不显臃肿。
引入了自然光线,让内外建筑体可以互动穿插,屋内人在流淌的时光下舒缓闲逸,泡一壶清茶,执一缕墨香,温暖了身心的疲倦。
主卧空间色调清中有雅,色彩之间的浓淡搭配相宜。
现代设计的简约格调流淌于空间各处,打造静谧、舒适、轻奢、高雅的空间状态,彰显居者的精尚品位。
休闲椅的柔软,原木的温润,爱马仕橙的华贵,千鸟格的璀璨、香氛的甜美、音乐的共鸣…… 空间不仅是视觉的,更是人的五感可以感受和触摸的。
卧室设计融入当代生活的节奏与韵律,在不同中寻找相同的材质与形态元素,勾勒功能与美学相谐的设计风尚。
人是在环境中激发对美的认知的,在高级感的空间里更有利于对孩子的培养。
书房将沉稳的蓝与素净的米灰色融合在一起,营造视觉上的一种洁净感与平衡感,使整个空间洋溢出平静而舒适的气氛。
卫生间由于要用水,考虑到潮湿、防滑、清洁,以铺瓷砖为主,选择天然爱马仕灰色大理石通铺,在花纹、款式上做选择,材质搭配也是需要精心设计的。
设计师濮帅帅:
设计就好比生命,生命不断进化,设计也需要与时俱进,在这个快节奏的社会里,每时每刻都会出现新的潮流,跟上时代的脚步才能把最新的东西给客户。
【他的往期案例】
175㎡现代风格 | 简约而有格调,高级感!
135㎡现代港式 | 于繁华处觅得静谧,自归家时怀得心安!
160㎡简欧风格 | 诠释岁月静好,给你舒适安逸的生活!
142㎡现代风格 | 走心的设计,最令人无法抗拒!
180㎡现代风格 | 一扇家门,出可繁华,入可宁静!
180㎡轻奢北欧 | 一切皆源于心,用心去感悟空间!
180㎡轻奢法式 | 濮帅帅:
设计,是一条永无止境的路!
241㎡现代中式 | 濮帅帅:
设计如生命,需与时俱进!
本案例设计与施工均出自居众装饰,
”预约我们 尊享5项VIP服务
客服
消息
收藏
下载
最近













