查看完整案例

收藏

下载
TONG LI x 平层空间
实景案例分享
让丰富有趣的内心世界得以注入乏味日常中去。
这个空间位于贵阳市观山湖新区,站在他们的阳台,视野好到能将观山湖尽收眼底。这里将要成为未来很长一段时间里他们的小世界。
同样从事金融行业的夫妻俩,是这个家的主人。与深色西装、浅色衬衣形成强烈反差的是,玩音乐、收藏手办、看漫画、读小说,和好朋友们在家聚会玩耍,才是他们在生活里感到最舒服的真实状态。
面对诸多元素的汇集,我们期望实现的是:
让设计语言形成一股力量,让他们丰富有趣的内心世界能持续地注入乏味日常之中
。设计核心参考他们在空间里的活动习惯与私人化爱好,去创造出更具可能性的、开放性的使用路径。
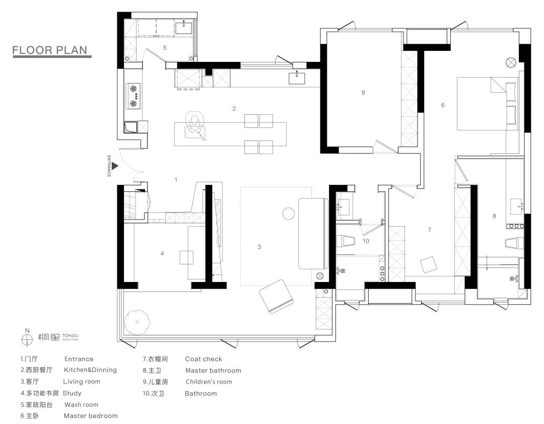
本案平面布局解析(可滑动查看)
-
·
入户 · 1㎡收纳与空间对话法则
人们常常调侃家居设计最好看的时候,是还没有搬进去的时候,越住越多的东西终究成了“破坏”美感的元凶。那么,为什么不在一开始就拥有称心如意的收纳空间呢?
我们将原本的入户做了较大程度的改动,一方面去掉了用于划清厨房与其它空间界限的墙体,另一面则是向多功能房“借了”几步,重新形成了格局更为开阔的玄关。并利用打开后的空间,依托墙面,打造了“
八百库
”,即:进深800mm,占地1㎡左右的步入式玄关收纳间。
· 位于入户门边的步入式储物间,方便之处在于:进出衣物的换取存放,
婴儿车、玩具车、购物车在进出时最短距离的存放拿取。
以及可以完全自定义的储物搁架的设定。
被打开后的空间,不仅使入户后的区域更为宽敞明亮,让气息得以流动起来。八百库与地台上高柜的组合,让服务于日常的琐碎杂物也有了得体的归属。
入户及餐厨区储物空间解析(可滑动查看)
-
餐厨区 · 不设限的惬意
得益于和父母家“一碗汤的距离”(同住一个小区),他们的餐厨区就可以做更为open的考虑。开放出来的灶台区,配合高功效的油烟机就能完美解决偶尔烹饪产生的污染。
·
台面材质为岩板,嵌入台盆,接入净水系统,下置收纳柜、洗碗机、置物架。
3800mm长,800mm宽的超大尺寸,可以满足烘焙、亲子、工作、用餐、吧台等超多种使用需求。
一块3.8米长、
无高度差
,可以应对多种使用场景的餐岛台,才是之于他们的契合“灵魂”配置。尽管按照他们的要求下置了洗碗机,导致整体高度升至900mm,但与顶面层次丰富的灯光布局配合起来,就像是在家里内置了一个酒吧。而它也像是一个“枢纽”,
连接
着客厅与其它空间。
客厅 · 得体又自在
我们对客厅做了装饰性吊顶(延展自餐厨区)、几何造型电视背景墙等技术处理。以体块与线条的构建出一个简单不呆板的客厅,从任何一个角度望去,都能因为光影投射出的不同块面,获得不一样的视觉体验。
·
他们家的阳台可以将贵阳市的观山湖尽收眼底,风景绝佳,因此我们除在阳台隐藏收纳空间,
还从长远考虑,将它考虑为第二餐厅,
完全可以摆放一张800mm直径的圆形餐桌。
阳台可变布局解析
-
书房 · 惬意副中心
由于玄关处的改动,我们将原先横亘于客厅阳台与其之间的隔断墙去掉,把它整个打开来,以地台整体抬高房间地面,最终呈现了一个:随性席地坐,可眺望远方,也可拨动琴弦的多功能书房。
主卧 · 以不必要换“想要”
原来的主卧大小是多少有点尴尬的,至少不足以实现她一直向往的、大大的衣帽间。于是,我们把对面几乎用不上的次卧利用起来,调整进出的路线,主卧套房就生成了。
· 衣帽间同时还复合了工作室的功能
。
儿童房 · 多变多用
在设计过程中他们的小宝宝还在她的肚子里,未来至少五年时间里小朋友主要的睡眠空间也会是和爸爸妈妈在一起。因此,对于儿童房的设计着重考虑可变性。它既能成为一个独立的游乐室,也能在父母偶尔过来照看小朋友时的成为临时卧房。再以后,他们也可以和小孩子一同去创造。
卫生间 · 为使用多考虑一点
把次卧变作衣帽间后,我们把主卫生间做了拓展。不仅以一块2米长的岩板用作盥洗区的台面,还增设计了大大的、带“
亲子属性
”的泡池。
· 主卫
· 如果遇上特殊情况,不能出门,这里就是小小朋友的专属泳池
。
· 次卫
这个家的设计有着大多数家庭看来反常规的设计,但是
绝对私人化的空间,又为什么一定要受到“常规”二字的束缚呢?
期待与你在下一个空间相见。
·
本案空间爆炸图
-
Thanks
· 做生活的理性旁观者,感性的表达者。
客服
消息
收藏
下载
最近














































