查看完整案例

收藏

下载
“
天 城 府 户 型 解 析
”
DESIGN BY 东易日盛
天城府,择址武林以东约3公里,近距杭城CBD武林广场商圈,近享钱江新城商圈、城东商圈等繁盛配套。
繁华中心,配套成熟,设施完善,天城府的业主们作为拥有奢适住宅的人群,对于家与生活,他们有着更高的要求。
▲
核心设计团队-旗舰国际设计中心
因此,东易日盛从生活出发,用对生活的热爱传达人居的理想,全方位定义“家”的无限想象。接下来,就为大家带来天城府六大户型的户型解析。
84㎡户型
✔结构分析:
原结构为三室两厅两卫设计,可以满足基本要求,整体结构较为规整。原始结构整体采光量相对充足,通风一般。原本的挑空也可利用。
✔户型分析:
本户型北面卧室区域较小,缺少储物空间,利用率不高,但主卧的可利用面积大,功能性较强。厨房区域较小,储物和使用功能受限,冰箱无合适位置摆放,餐厅与厨房动线不合理,使用上较为不便。
户型调整>>
客餐厅区域打通互换位置,动线更加合理,区域划分明显,储物空间充足,增加家人之间互动。开放式厨房增加使用面积,冰箱位置与吧台相结合,增加空间层次感。主卧增加隐形门,方便照看孩子。卫生间干湿分离布局合理,使空间得到了更好的利用。整套作品完美地体现了设计师的人性化设计,对业主的人文关怀。
平面方案图>>
意向效果图>>
85㎡B1户型
✔优点分析:
户型方正,功能分区明确。
✔
采光分析:
每个空间都有窗户,采光良好。
✔
通风分析:
南北通透,通风良好。
✔缺点分析:
Ⅰ
整体储物空间少,且空间利用不合理。
Ⅱ
进门直通阳台,没有遮挡。
Ⅲ
只有一个卫生间,人数使用比较拥挤。
户型调整>>
进门处扩大了鞋柜空间;阳台外扩,缩小洗衣阳台给客厅增加储物空间;卫生间设置干湿分区,方便多人同时使用卫生间;次卧房门移位,避免房门直对卫生间门;扩大主卧空间,增加大量衣柜储物空间;利用书房空间给餐厅增加了酒柜储物空间。
平面方案图>>
意向效果图>>
88㎡B2户型
✔户型结构分析:
原结构为两室两卫生基本户型,北阳台可扩充空间储物,厨房餐厅卫生间空间较小。
✔采光分析:
南北各房间都有相对舒适的采光,但客厅空间居中,被南阳台所阻挡。
✔通风分析:
原结构南北通透,通风相对畅通。
✔节能分析:
原结构南向窗适中,有利于冷热能源停留室内。
户型调整>>
1、将厨房改造为开放式和餐厅客厅联通,有效的加大空间感和多处采光,利用墙面设计足够的鞋帽柜储物以及将电视背景墙和餐厅餐边柜做结合,增加食物收纳空间,厨房台面的延申增加了足够的操作台面和各类电器的排布。
2、南面主卧和北面阳台打通做主卧套房,利用原本狭长采光差的走廊面积给主卧,南北互通,增加储物衣帽柜,另设计三类方案适用各种家庭需求,可以改造北阳台为榻榻米多功能房、书房或衣帽间。符合年轻夫妻,三口之家,五口之家的各种设定。
3、卫生间根据客户需求保留主次两个,或改造保留一客卫,将原本较小的主卫改造储物空间。
平面方案图>>
意向效果图>>
89㎡户型
✔优点分析:
Ⅰ
结构分析:原结构户型方正,功能区分割合理,整体规划规整。
Ⅱ
采光分析:原结构大面积飘窗,且主要功能区都有大面积窗户,采光良好。
Ⅲ
通风分析:原结构南北通透,通风通畅。
✔缺点分析:
Ⅰ
整体储物空间少,且空间利用不合理。
Ⅱ
进门处无遮挡,且无鞋柜,缺乏神秘感和期待感。
Ⅲ
厨房面积小。
户型调整>>
在进门处前方设计玄关遮挡,一给这个家披上了一层神秘的面纱,且增加了鞋
柜,顺便让出门携带的包、钥匙等也有了安身之地;将冰箱外移,增加厨房面积,增大厨房操作台面,且现冰箱位置完美去除卫生死角;将书房外扩,增加一排储物柜,增加储物空间;在就餐区增加一排餐边柜,进一步增加储物空间的同时也可以在其摆上男主人心爱的红酒,更彰显业主气质与品位;将次卧外扩,设计一个小书房,这样大人的工作和儿童的学习可以同时进行;同时保留两个卫生间,保护业主的隐私。
平面方案图>>
意向效果图>>
90㎡C1户型
✔优点分析:
户型方正。
✔采光分析:
原结构采光一般。
✔通风分析:
原结构通风良好。
✔缺点分析:
原户型入户有阳角导致空间不方正。厨房空间过小
户型调整>>
入户右侧砌墙,做成一个玄关。厨房空间过小,冰箱只能外移,一个酒柜和吊柜的结合完美隐藏了冰箱。一个大垭口形成一个过道,提升了户型空间的方正感。
平面方案图>>
意向效果图>>
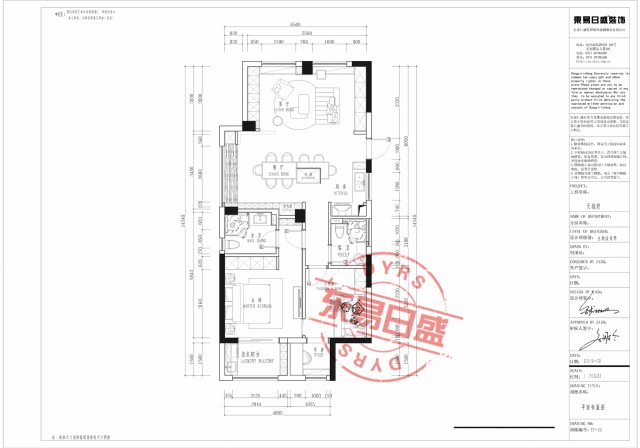
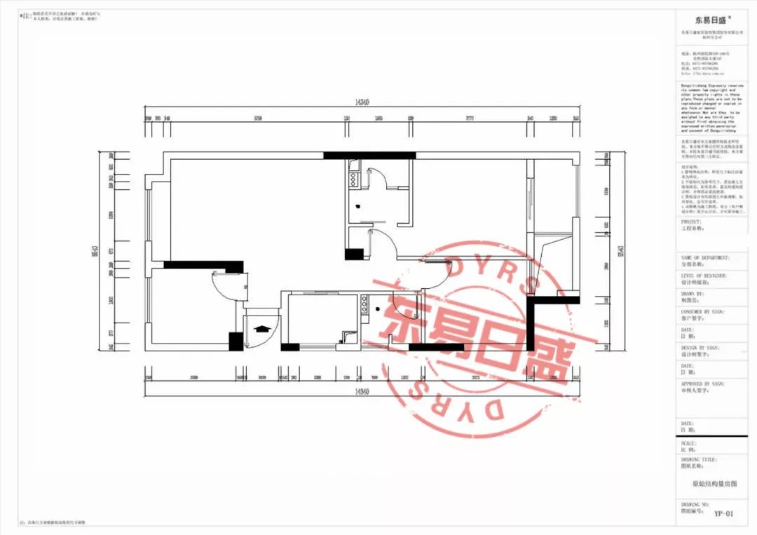
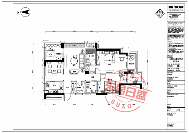
127㎡户型
✔优点分析:
原结构是四室两厅两卫,边套结构,整体南北通透,采光充足,通风顺畅,双卫是明卫,赠送空间多。阳台空间大。
✔缺点分析:
Ⅰ
进门没有玄关,整体缺少储物空间,主卧门对着主卫次卫门口。
Ⅱ
朝南主卧室和次卧不规则的室内阳角太多,北面书房和次卧室空间较小。
Ⅲ
厨房空间较小利用率低,阳台利用率低。
户型调整>>
本案保留原结构的采光通风,完善实用功能。保留两朝南卧室,书房和客房功能合一。增加玄关功能,功能完善。增加储物间,解决全家储物。U型厨房利用率更高。餐厅和厨房的互动性更方便,餐厅用伸缩餐桌,适应多人就餐,有储物柜适合放酒放装饰品。客厅空间够大空间规整。阳台一分为二,分功能阳台和景观阳台,实用性更好。主卧室进门口调整后,解决了门对门的问题,增加了主卧的储物空间,调整了阳角位置,弱化阳角在视觉上的冲突。
平面方案图>>
意向效果图>>
或拨打免费咨询热线:400-0060-251 即可在线预约设计方案哦~
17周年预售盛典定制礼
到场客户即送一周年精美定制礼一份,
前十名赠送天猫精灵一个
,拼手速的时候到咯!
17周年预售盛典设计礼
设计费XX折,享全年最低折扣。签单可以参与幸运抽奖,抽取免设计费名额。
17周年预售盛典嗨翻礼
活动当天,
签约即有机会获得4888元、3888元、2888元的王牌、钻石、黄金大礼包
!(名额有限,先到先得)
17周年预售盛典服务礼
免费验房服务、免费软装设计服务 、免费木作设计服务。
17周年预售盛典金蛋礼
华为P30pro、小米液晶电视、
小米空气净化器、碧然德净水器、SKG脉冲颈按摩器等
百万家电豪礼,100%中奖率。
17周年预售盛典服务礼
老客户推荐新客户,签约成功即送
3000元工程质量维修基金
。新客户可获得小米扫地机器人一台。
17周年预售盛典追加礼
活动期间所有签订设计协议的客户,
均可额外获得巴厘岛双人游。
17周年预售盛典缘分礼
到场参加活动的客户如果家里
门牌号、车牌号、身份证号含有17数字
,
设计费原有折扣基础上再减500元(折前)
。
17周年预售盛典转发礼
到场客户均可参与
抓金币游戏
,一个币抵10元现金,抓到多少就立减多少。自己转发1周年庆典推图,一个币抵10元现金,可抵用产品款(折前)
17周年预售盛典特别礼
到场签单的客户,身高170cm或者体重在170斤以上的客户,可以获得杭州锅内锅外餐饮券两张(仅限晚市使用)。
17年感恩有你,一路同行
17年我们坚持品质领先,初心不改
东易日盛装饰杭州分公司
17周年预售盛典
超强福利提前曝光
更多惊喜现场揭晓
活动时间:2019年6月2日全天
活动地点:杭州黄龙饭店一楼紫荆厅
VIP咨询热线:
400-0060-251
客服
消息
收藏
下载
最近




















































