查看完整案例

收藏

下载
Project
Xi'an
Nanhu Prospect
Design Team
S. T. Design
Area / 80 m²
Cost / 25 w
幽窗小记
宠辱不惊,
闲看庭前花开花落。
去留无意,
漫随天外云卷云舒。
设计从来不只是单一的视觉层面,更多的是对生活思考的过程。
本案设计从业主
最本质的需求出发,同时周遭的环境也为设计师带来些许灵感。楼下的树木露出一点点树梢,从屋内看去有一种“
闲看庭前花开花落”的意境,
这意境带来的灵感,也成为了全屋设计的核心。
客 厅 living room
客厅优雅与大气相融,兼具
感官享受与实用主义,整体的颜色搭配足以
消除一切沉闷的感觉,显得更有意境。
餐 厅 dinning room
“没有束缚,没有自由。”
餐厨区域设计师用一扇“窗"打开了厨房,保留了开放式厨房的时尚美观性,窗户的设计其实也增加了和客餐厅区域人员的互动性
。
卧 室 bedroom
设计师在卧室的地方使用玻璃做了一个长方形的隔断来打破空间的整体性,让空间更具有趣味性。保留了一部分原始顶面
,让空间更有层次感。
卫生间 bathroom
卫生间使用了开放式的洗手台,该区域做了一个回形路线设计。半高墙体给人一种既开放又私密的感觉,”窗“这一元素呼应了外面的空间。
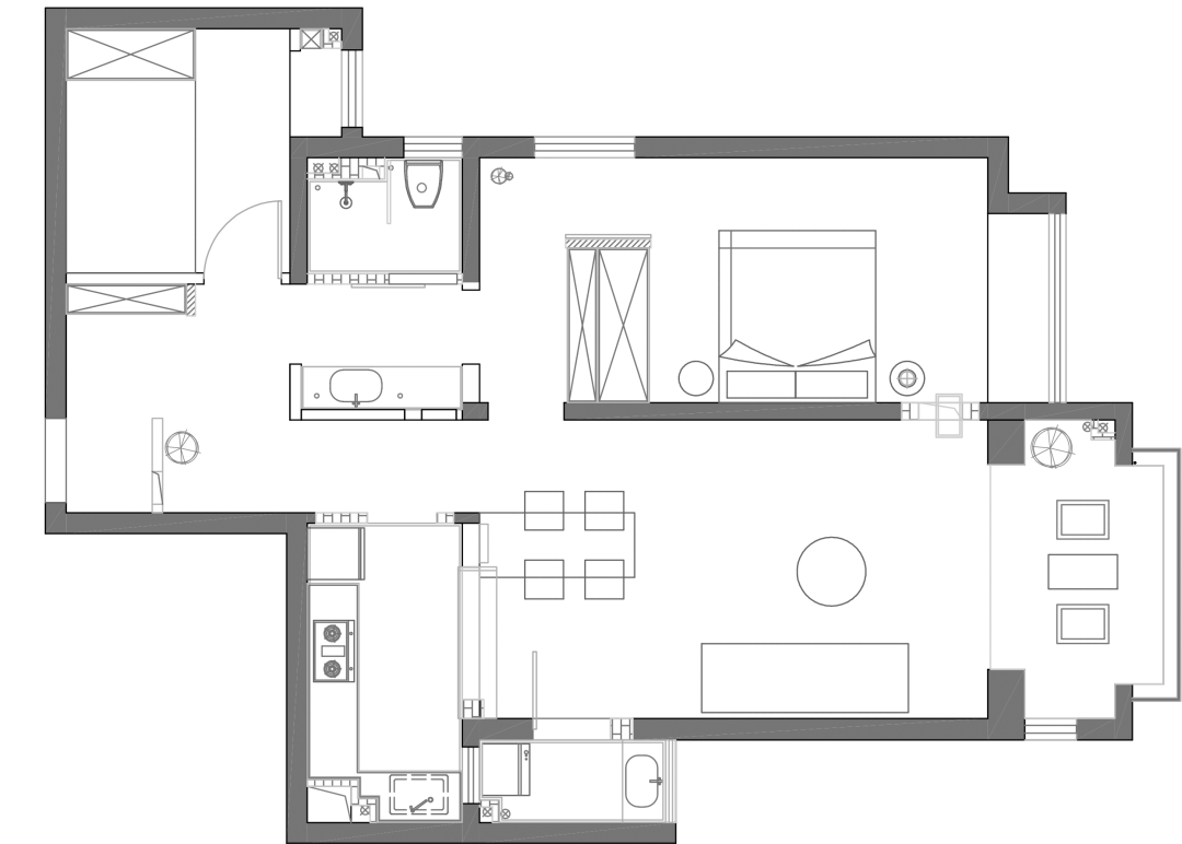
Before 户型
After 户型
客服
消息
收藏
下载
最近



















