查看完整案例

收藏

下载
在简约设计的家中,
生活也会变得简单点。
逸翠园御玺
开工地址:
西安市
高新区锦业二路10号
小区名称:
逸翠园▪御玺
设计理念
“家是放松和休息的地方”。本案空间采用简约的现代处理方法,点、线、面、流畅衔接,整体用色高雅和谐,空间自然优雅时尚。合理的构成工艺,尊重材料的性能,讲究材料自身的质地和软装配置效果,在细节处增添空间层次。
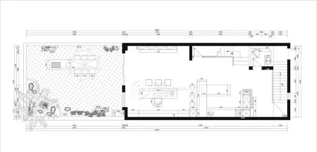
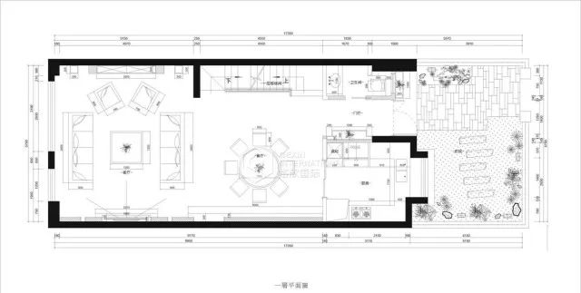
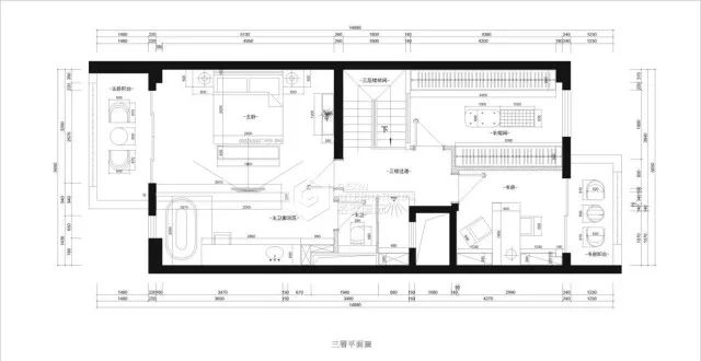
户型设计方案
施工现场展示
软装设计方案
本案的软装在材质上主要选择皮质家具,色泽选用浅灰和褐色系,穿插一点柠檬黄座椅作为跳跃色为空间赋予生机与活力。窗帘、床单等布艺家具选用冷色调,与整体风格融合统一。软装配饰使整体格调充满简约时尚感。
效果图展示
客厅设计,简洁,实用,美观兼具个性化的展现。每一个元素都渗透其中,将简洁的浪漫情怀与现代人的生活品质的细腻追求完美融合,带来惬意自由的享受。让心灵在这片空间中得到最纯粹的释放。
餐厅设计,选择软皮座椅,与客厅相互打通相连, 形成一整片活动休闲区域,让人可享有最自由的居家形态,增添生活中的趣味性。
主卧设计,重视功能性和空间的融合,追求简洁的结构及造型,富有朝气和时尚气息。大型落地窗采光极佳,浅灰色调与褐色地毯完美融洽,床头绿植的点缀为空间带来一丝生机。
儿童房设计,虽然延续了整体灰褐色系,但是背景墙上的图画、白蓝相间的床单和三角图案地毯,又使空间多了一丝活泼灵动韵味。
西厨设计,
空间格局广阔开放,底柜规划侧重表现精约个性,尽管方式看似简略,但每个抽屉内部都有较大的存储空间,干净明亮的清理台,也给主人供给了便利的操作空间。
茶室设计,华丽与舒适兼得。软背靠椅,长条方桌,简约休闲的风格,随性随意,也是业主与好友悠闲乐活的极佳场所。
设计详情
主案设计师
张培
软装设计师
卢冠辰
项目类型:别墅家装
项目面积:300㎡
设计风格:现代简约
主案设计师 :张培
软装设计师:卢冠辰
产品设计师:李航天
监理工程师:陈鹏
项目经理:奚荣平
项目造价:260万
生活可以丰富多彩,承载生活的容器未必是繁复,用空间简明的家来诉说生活的内涵也是另一种个性的表现。格欣国际,让简约的家,简单的生活走近你的身边。
客服
消息
收藏
下载
最近







































