查看完整案例

收藏

下载
凤凰,百鸟之王,自古便是中国文化的重要元素。凤栖院,滋养着中式古典艺术生活的闲雅意趣。若把其比作诗篇,一木一石、一砖一瓦,都是字句。
▼
“唯有牡丹真国色,花开时节动京城……”在历史的足迹中,牡丹于人们心中有着丰富的文化象征意义。
▼
▼
本案,设计师攫取了传统中式的设计理念,以“花中之王”牡丹为主题线索,将其以夹绢玻璃、吊灯、趟门等多种不同的“形”与空间融为一体,缀以“中国红”、古典黑等经典、热烈的中式色彩搭配,诉说古典美学精神,演绎清雅风韵、端庄丰华的东方大宅。
▼
▼
▼
空间以米白、浅金与灰色这三种优雅色彩为基调,并用“中国红”来提亮空间。
▼
▼
▼
植入传统中式空间“木”,搭配极富手感的丝绸织物与真皮布艺,并缀以“牡丹花图案”于趟门、地毡、抱枕、夹绢玻璃中,藉以点明主题,渲染了一个拟态的“中国士大夫”式自在会客场所。
▼
现代设计的牡丹花吊灯与背景的牡丹夹绢交相辉映,色彩与厨房的隔断木格屏风形成巧妙联结。
▼
红色的树脂墙身传递着中国红的视觉能量,形成独具一格的空间感。与之对应的青花瓷摆件亦增加了空间的收藏历史意味。
▼
设计师攫取了深根于东方哲学的传统中式住宅设计思想,在室内布置、线形、色调以及家具、陈设的造型等方面,充分汲取传统元素的“形”与“神”,以“花中之王”—牡丹为主题线索。
▼
▼
▼
▼
以不同灰度相融调节视觉调性,强调舒适感,床头的手绘墙纸再次唱响“牡丹”主题,在中式吊灯的映衬下,盛开得格外艳丽。
▼
▼
▼
私密的卧室沿袭了整体空间的清雅与平和,空间色彩、形式,无一不在提示着过去、现在,东方人文的演变与糅合。
▼
平面方案
▲
一层平面图
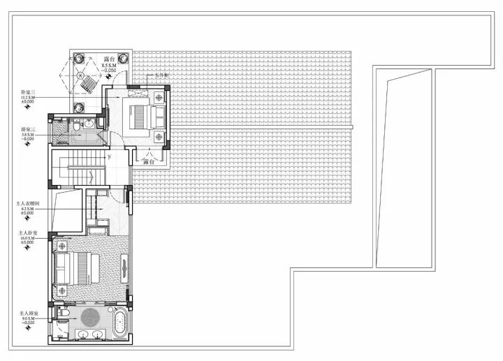
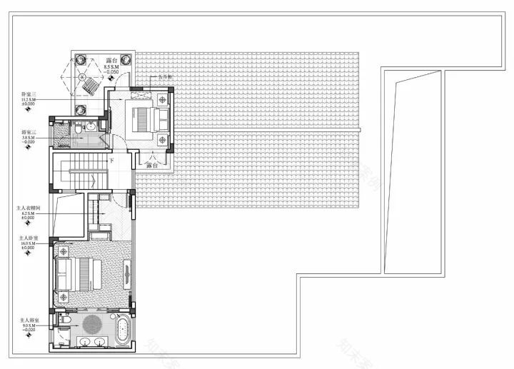
▲二层平面图
项目名称:宁波市九唐凤栖院
项目地点:宁波市东钱湖九唐项目
项目业主:中海地产
设计单位:奥迅设计|奥妙陈设
客服
消息
收藏
下载
最近



































