查看完整案例

收藏

下载
以白色调为基底,有序铺陈灰、棕、蓝等中性色调,低饱和度令开阔明亮的空间更显干练与精致,对细节的描摹也充满脉脉温情。留白与功能彼此承接、张弛有度。气质内敛,拒绝不加节制的表现形式,反而更有力量,不动声色地表达奢华。
光影与线条,是永恒的设计缪斯。
以简洁明快的设计手法,于光影变化与线条铺陈之中,展现当代都市人的新贵生活。
Project Name|
长沙·金地三千府
Project Typ
e |别墅
Project Area
|600
㎡
Project Style |现代风
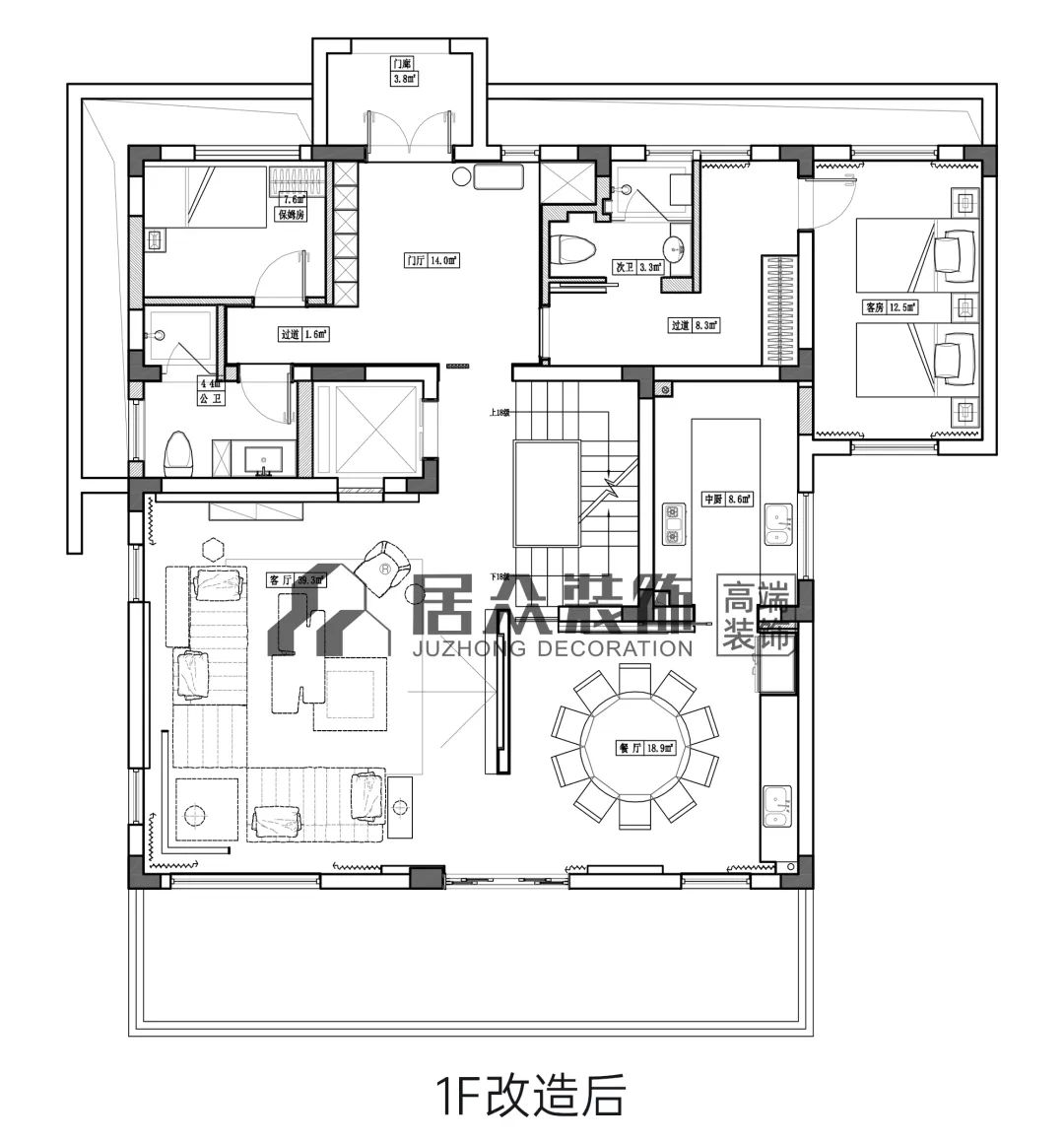
平面布置图
/LAYOUT PLAN/
·
一层重新规划门厅动线,简化复杂路线,令行动更为便利。
·
二层将过道打通,塑造空间延伸感,改变女儿房门位置,更加保护隐私。
·
三层打造豪华主卧,功能分区清晰合理,尽情享受生活美好。
·
将负一层打造成集合茶室、健身房和棋牌室的休闲娱乐天地,丰富日常生活。
中性色调铺陈的氛围中,雾霭蓝立于视觉中心,叙写冷静与克制。橙色单人沙发脱颖而出,点亮了整个空间。横纵交织的线条,营造出安稳与自由共生的情绪。与此同时,弧线亦延伸出强大的张力。从上而下的线性吊灯如同石头投入平静湖面泛起的涟漪,在整个平稳的空间秩序中凸显出来,拥有目眩神迷的质感。严谨的框架没有局限设计的节奏,游刃有余地写意生活的高级情调。
纯白之境的梦幻,在线条所创造的秩序与错乱之间,柔软的布、灰调的理石、自由延展的纹路,绿植如同于虚空中骤然诞生的一抹生命力,不同元素彼此衬托,组合成一张绵密的网,邀人们沉浸于此。
围
成一圈的橙黄色餐椅,令低调精致的空间迸发太阳一般的活力。双层可转动圆桌,简约的造型美感,同时适合多人用餐场景,抢眼的艺术吊灯以光源线为灵感,弧线组合成高低有序的设计,与光线环环相扣,彼此制衡,营造出富有层次的温馨氛围。
浅色调的轻盈优雅中,加入棕色木质风,带来一份沉稳与宁逸。大面积的留白处理,线面层叠,简单却富有细节。墙面的木质展示栏,别具匠心地涂上微水泥艺术漆,几何风格的艺术摆件,线条明晰,又延伸了诗意,如此不动声色,却为整个空间起到了点睛的作用。
向往中的生活方式
不是奢华的堆砌
而是回归平和本心
展示居者从容的生活态度
表达自我的情感
体验生活的真谛
丨内容撰写:集团品牌管理中心
〓
JUZHONG || 往期推荐
〓
全案案例|江山壹号406㎡现代平层,交织自然宁静之曲
全案案例|水墨兰亭303㎡轻奢复式,生活的优雅邂逅
全案案例|合景同创296㎡轻奢大平层,回归本心雅境
客服
消息
收藏
下载
最近
































