查看完整案例

收藏

下载
Project Name/项目名称:碧桂园泊林
Decorative Style/装修风格:新中式
Area/面积:332
㎡
Designer/设计师:黄春婵
本案为332㎡的大别墅,一家四口人居住,保留五房三厅的布局。
设计师黄工通过与业主的聊天,了解到其
喜爱中式传统文化,同时拥有着现代审美的需求,黄工以新中式风格展开设计,
将空间设计注入一股崭新的东方风格,
业主对此感到非常满意!
整个别墅分为三个区域,B1与 1F、2F、3F,分别是地下休闲厅、会客厅和居住区域。
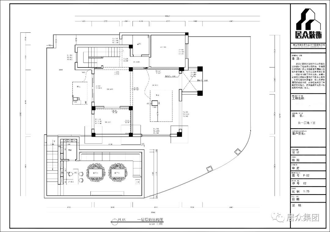
▲负一层原始图
负一层是家里的休闲区域,有一个大大影视厅,平时闲着的时候可以在这里看看电影。
▲
影音室
影音室的装修较为简单,一张休闲沙发,两两相对的实木椅子,大片蔚蓝星空般的天花吊顶,到了周末晚上,约二三好友,聚完餐后来场视觉盛宴,比之电影院也有过之无不及。
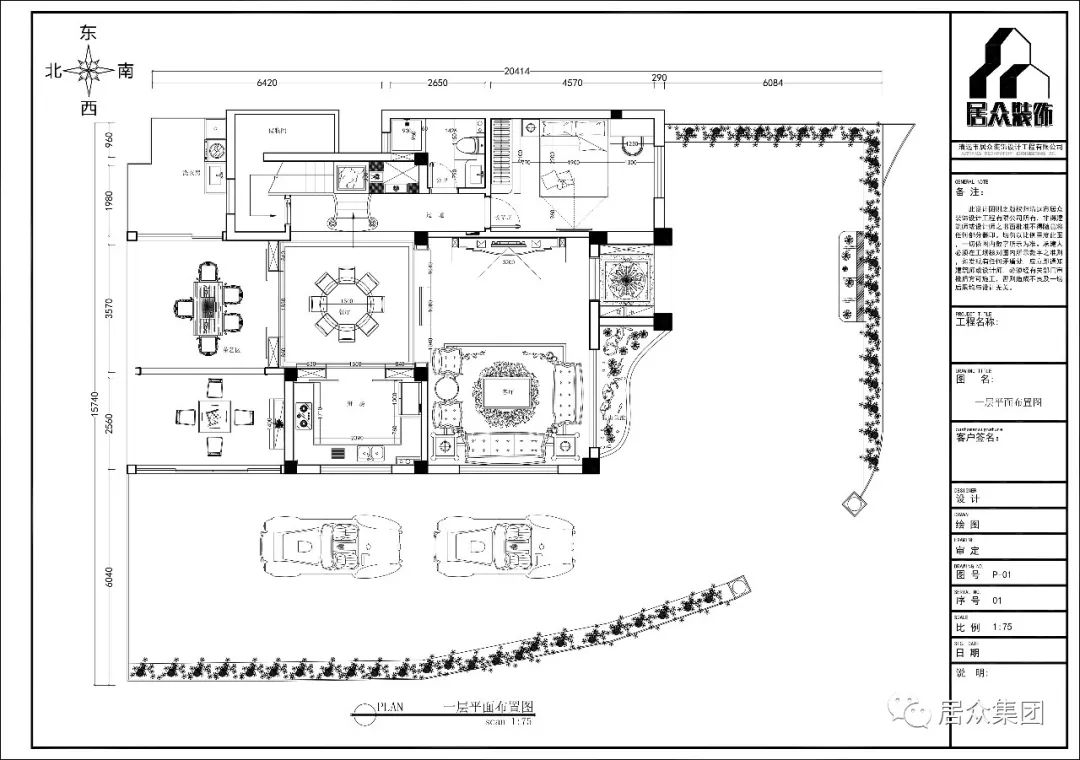
▲一层平面图
一层则是接待区域。功能区域分别为车库--入户花园--客厅--餐厅--厨房--茶室--长辈房,是赏花、待客,就餐之处。
▲
客厅
步入客厅,目光所及之处可看到,家具多以浅色为主,空间色彩上以米黄色为主调,具有雍容华贵的气质
,一幅风景艺术画在客厅中熠熠生辉,加以木线条与局部镂槽的端景处理,从而增加层次感,
给人似处于典雅韵味的禅意风中~
▲客厅另一面
客厅的电视背景墙面用高档石材装点,成为整个空间的视觉焦点,大气高贵。
空间中搭配雅致的吊灯以及艺术画,天花与墙面仍然是米黄色,更好的衬托出简洁的造型感,装饰以中式元素为辅,营造出清新与韵味。
▲
餐厅
移步来到餐厅的就餐之处,整体看起来简洁大方。
L型的半开放式酒柜设计,讲究对称布局,两边可摆放小物品、瓷器等等来展示,中间的圆形实木餐桌椅安然的放置其中,最为亮点的当属造型别致的水晶吊灯呢,看起来相得益彰~
餐厅一旁通往二层的楼梯,原始结构中略显小气,黄工经过后期的精确规划,设计成呈八字形的布局,整体看起来更显大气!
▲
茶室
梅花作为岁寒三友之一,自古以来人们都赞美它的傲雪精神,它的孤独、不与百花争春的高洁的美,这样的气质也符合茶室的内在气息~
茶室加入中式“圆”的元素,长桌圆椅,几分禅意,几分婉约,凸显出空间的禅意 。
▲长辈房
长辈房的设计较为简洁,采用柔和的白色系为主调,同时搭配中式花鸟硬包,矮柜旁的台灯,整个空间营造出自然脱俗的感觉,在装饰细节上尤其加分~
▲
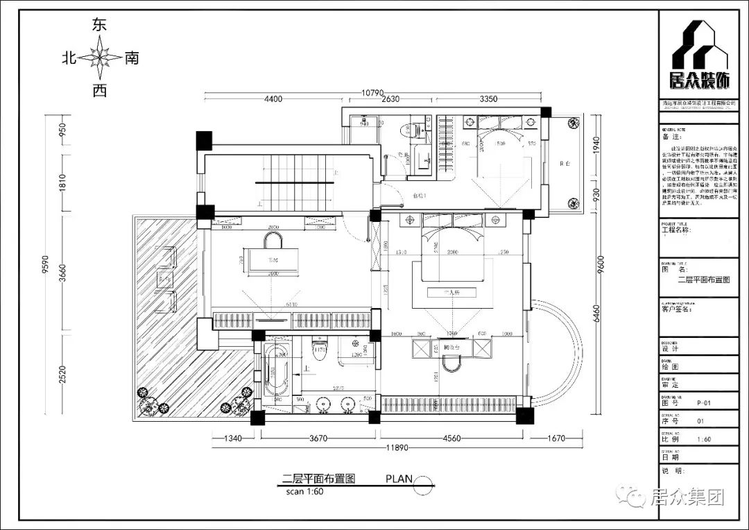
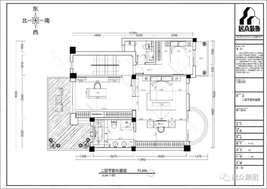
二层平面图
二层整个都是业主的私人区域(包含书房、衣帽间、卫生间以及客房)。
▲主人房
主卧的设计上依然延续整个装修中的温馨气息,色彩浓淡有致,层次分明,浅色系的床头硬包,以及墙上的艺术泼墨画,各种元素的巧妙糅合,整个空间散发出淡淡的舒适温馨质感~
▲
主卫
卫生间的装修以简单为主,干湿分离十分明确,简洁的线条与时尚的浴室柜带来满满的现代气息,浴缸的设计,错致的防滑地砖,一一为此增添些许惬意愉悦的享受~
▲书房
书房的设计以质朴素雅为主,保留原有的庄重、典雅之外,柚木色的家具更显沉稳,文房四宝一一俱全,将灵魂空放于此,内观看自己,外观看世界,给予你的心灵一个安然的归途~
▲三层
平面图
三层则是业主小孩的私人区域(男孩房+女孩房)。
▲男孩房
男孩房的装修以白色为主调,淡蓝色为辅助,
细节装饰上,搭配白色踢脚线,让空间更显精致,书桌与睡眠区进行简单的隔断,正所谓学习、睡眠两不误~
▲浴室
男孩房的卫生间与主卫的装修风格一致,简单的干湿分离,两个洗手盆,功能特别齐全,十分具有人性化~
▲女儿房
女儿房以公主粉为主色调,搭配白色饰面的墙裙,卡通图案的硅藻泥,使整个空间看起来灵动而有趣~
设计师黄春婵:设计没有最好或者最坏之分,当业主把房子交托于我,我必全力以赴给予业主一个舒适且完美的家!
客服
消息
收藏
下载
最近



















