查看完整案例

收藏

下载
Project Name/项目名称:纯水岸
Decorative Style/装修风格:古典风
Designer/设计师:魏小庆
Area/面积:
460
㎡
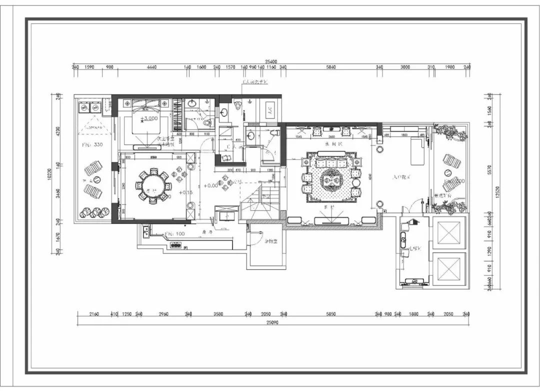
▲一楼平面布置图
本案是大户型复式,业主从事投资行业,非常喜欢深色系家居,偏爱木质、大理石、水晶等元素。设计师以古典风格设计,
通过华丽的装饰、浓重的色彩、精美的造型,营造出尊贵奢华、气度非凡的家居环境。
入户花园面积
很
大,宽敞开阔。设计师在视线尽头采用“回”字格造
型,搭配两边的镂空雕花镜面与端景设计,大方典雅的气息扑面而来。
地面波打线图案也别出心裁,方中有柔,精致浪漫。
“回”字纹,是古代的陶器和青铜器上的雷纹演化而来的几何纹样,
其意义是福寿深远,吉祥绵长。
空间中的色调
主要
以米黄色、深咖色为主,在整个家居中,大量运用方格造型装饰。客厅区域,金箔层叠的天花吊顶,层次感丰富,木质面板与大理石
镶
嵌于墙面,简洁大方,同时于细节处凸显精致。
壁炉、水晶宫灯、古典家具也是点睛之笔,营造出华贵、典雅的居室氛围,透出
浓厚的文化底蕴。
步入餐厅,黑白根大理石罗马柱顶天立地、
端庄大气,
墙面方格面板装饰与客厅和谐一致,餐桌中央却别有一番雅致,天地呼应皆为“圆”,寓意家庭和睦、幸福圆满。
厨房是狭长格局,高级定制的橱柜让众多烹饪电器、餐具都能整齐安放,不规则的角落也通过量身定制达到妥善解决。
楼梯间选择深色面板与铁艺结合,纵然冰冷的铁艺也增添了几分浪漫柔情,一步步踏上阶梯,便进入复式上层。
▲二楼平面布置图
楼梯背景悬挂一幅抽象画,浓重艳
丽的色彩,具有很强的视觉冲击力,富有艺术气息,
空间是为人所用,更
是为适应人的行为
和精神需求而建造。
书阁沉稳
雅致,
有一股让人安静下来的力量,
过滤浮躁,
躲开世间的纷纷扰扰,
修身养性,
从宁静致远中回归内心的平和。
墙面采用透光艺术玻璃与楼梯间相连,更有
若隐若现、
移步变景之妙。
主卧的色调偏暖,床头背景墙选用黄色皮质软包,无主灯设计,以柔和的灯光配合软装营造出舒适的休息氛围,电视背景墙内有乾坤,两边的隐形门可通往衣帽间。
业主衣服非常
多,设计师为其规划专门的区域加以分类收纳,让家居变得更加干净整洁,也是精致生活的完美体现。
主卧卫浴间十分注重干湿分离,双洗手盆也更加人性化,给业主带来便捷舒适的生活体验。设一个大梳妆台,满足女业主日常护肤梳妆使用。
男孩房与女孩房格局对称,如孪生兄妹一般,蓝色清爽
活泼,粉色天真浪漫,为孩子打造健康又趣味的成长空间。
天朗气清的日子,总想着寻一处静谧清新之地,来一壶茶捧一本书,笑看云卷云舒,静坐听阳光低语。阳台对着花园,景观很好,防腐木与玻璃搭建成阳光房,
缔造有灵性的
专属空间。
如此精美的古典风格,不仅充满了奢华大气之感,更有家的温度。它带着优雅与尊贵,渗透入生活中的每一个细节,体现
非凡的品味,引导家居主人走向高品质美好生活。
设计师魏小庆:设计源于旅行与生活,生活因设计而改变!让设计物有所值、让细节缔造完美!
”预约本案设计师
为您的爱家专属设计
客服
消息
收藏
下载
最近



















