查看完整案例

收藏

下载
Project Name/项目名称:星河传奇
Decorative Style/装修风格:现代简约
Area/面积:150㎡
Designer/设计师:李茂兴
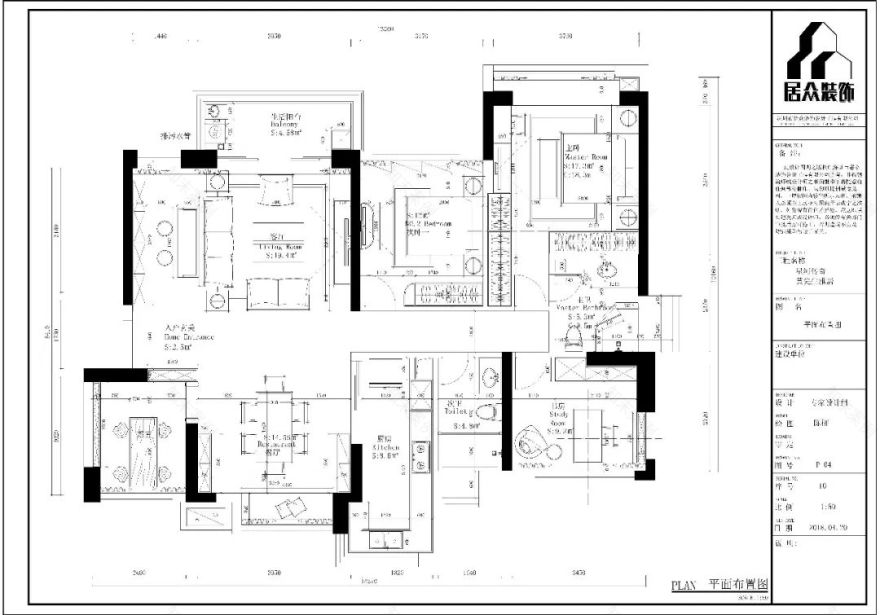
▲平面布置图
户型点评:
本户型属于平层户型,一家三口人居住,四房两卫,个别区域进行改动,如厨房空间过小,把厨房位置扩张到生活阳台,同时储物间打掉,改成客厅吧台,整个区域进行重新规划布局,令其动线更加合理规范化!
▲天花布置图
前期设计师李工在与业主的沟通中了解到,业主经常国内外两边跑,对于国外的休闲、别致的生活风甚为喜爱。
由于业主本人性格较严谨,对于装修的品质要求高,在整个装修风格的交流过程中,小到灯具的位置摆放,大到沙发,酒柜等的尺寸把握,详细到毫米之间,不过最终的效果呈现,业主也是对李工的专业表示满满的赞叹!
▲客餐厅
客餐厅以一体化为设计,电视背景墙简约而大气,为增加客厅的灵动性,李工在软装搭配方面尽善尽美,深棕色的沙发,搭配浅棕相间的地毯,深蓝色抱枕点缀,再加上中间的白色水晶吊灯,通透之感油然而生,业主是十分满意这样的布局。
在客厅的另一侧则是餐厅的区域。
时尚简洁的长方形餐桌,搭配浅黄色布艺餐椅,一旁的小矮柜用来摆放餐具,对面的收纳柜则用来摆放小物品,抬头可看到中间的水晶吊灯,在这样的氛围下就餐,多棒!
▲吧台
原先的储物间打通后改造成吧台的区域。
大理石材质的吧台显得大气十足,造型小巧精致,丝毫不会影响客餐厅之间的视线,工作一天之后,可以捧着
一杯红酒,一首轻缓的曲,
感受一下慢节奏的生活,释放一天的疲惫。
▲书房
书房的整体格局偏向于淡雅与沉稳,李工把书柜设计成开放式与封闭式并存的模式,既可摆放书籍,也可以摆放装饰品,
走进书房,手执书卷,
徜徉于书香之中,便能净化浮躁的灵魂,忘却身边的烦恼。
正所谓:
若何得以净心志,最是书屋写阅时。
▲主卧
卧室的床头背景采用硬包的形式搭配,以抽象的挂画来进行装饰,
浅色的木地板为底基,
深沉中让空间格外优雅,并与地面的灰色地毯互相映衬,
卧室内还搭配着电视来装饰,四周以筒灯为主,营造出一种温馨、舒适的睡眠空间!
▲卫生间
卫生间的装修以实用性为主,简单的干湿分离,镜柜和洗手台流动着现代质感,镜柜下的灯带更是点缀性十足,让整个卫生间充满着设计感。
很多人设计房子的时候会追求时尚与潮流,往往疏忽空间布局的合理性,李工表示:
应该注重居室空间的布局与使用功能的完美结合,让业主住的舒适,舒心!
客服
消息
收藏
下载
最近










