查看完整案例

收藏

下载
Project Name/项目名称:鸿荣源尚峰花园
Decorative Style/装修风格:新中式
Designer/设计师:彭飞
Area/面积:150㎡
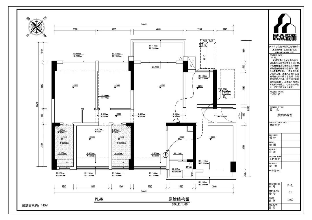
▲原始户型图
户型情况:
此户型交通便利,地理位置优越,不过书房、厨房过小,再加上采光性较差,所以导致通风采光与交通流动线不流畅。
解决方案:
将屋内有的区域进行合并纳入,重新规划布局整个平面,将采光性差的空间进行修改,一些非承重墙进行拆除,使屋内通风采光良好,个别区域变得更大,收纳得到规整!
▲平面方案图
有的人说,如果你爱一个人,就把房子给他装修,而相爱的两个人则是一起装修房子~
本户型的男业主是想要中式的装修风格,但女业主喜欢现代时尚搭配感,面临二选一的彭工要怎么办呢?
让一方跟另一方妥协?不,选择有时候不仅仅只是二选一,它还可以综合,经过彭工的沟通以及讲解之后,他们小两口都觉得新中式更加符合他们心中对家的想象,你中有我,我中有你,犹如天作之合~既有传统的韵味又有时尚的体现,一举两得~
与传统中式的设计差别较大,整体设计以线条层次感为主,以一种更简洁明了的方式,将新颖性与传统文化凝于一体~
入户设计采用上下封闭且中间可摆放绿植的鞋柜形式,地面采用中式拼花来凸显中式元素风,由于玄关径向较浅,彭工在进门视野相对的位置摆放一幅挂画,以一种别致、神秘感来诠释出现代人对于生活品质的追求~
将设计与生活方式相结合,客厅一侧设计了鱼缸,绿植的摆放,一般在出入门口的位置,就像我们在生活中一样,有时候添加一些小玩意、小物品来提高生活品质和乐趣~
客厅整体以辉煌亮敞为基调,皮质沙发以其亮面来提升精致,
地面瓷砖与天花顶上灯光营造出温馨大气的质感,电视背景采用大理石瓷砖来拉宽整个视觉,于细节中给人一种大气而不俗的体验,在阳光午后、在落日余晖,营造出令人不拘一格的优雅感。
餐厅的基调延续着中式风对称式的布局方式,为和整体设计搭配,选用黄色餐椅餐桌,中式元素吊灯,优美绿植以此来流畅地表达出传统文化中的精髓,营造出大空间的视觉层次。
主卧地面运用了原生态的木地板,室内底景以大量实木色彩铺陈,加之精心挑选的家具,床头两边台灯沿用中式对称的视觉效果,拒绝过于浮躁的设计,沿用内心追求的品质,让卧室的灵魂达到一种传统跟现代元素平衡之美。
小孩房以舒适,简洁为主,巧妙运用淡蓝色底色为基调,把室内简单有趣的灯具、家具都引入空间中,以此来培养男生活泼开朗的个性~
有人说,新中式风格既有现代的元素又有传统的典故所在,应该是被尊敬,被保留、被刷新、被提倡...而彭工表示:
它应该是在不同时间,不同空间的表现下,它是被这个时代所接受,所喜好,所让人难以自禁的一种美~
客服
消息
收藏
下载
最近











