查看完整案例

收藏

下载
点我查看10000+精选案例
点我获取专属装修报价
空间 | 美学 | 灵感
案例面积:300m²
案例风格:极简风格
案例出品:东易日盛
HOME DESIGN
HOME DESIGN
——
“如果一张空无一物的简单桌子上什么都没有——正因为空荡荡的,才有无限填充的可能,才是一种富有和自由的状态。
”——原研哉
极简的魅力正在于此。本案便秉持极简风格特质,以开放式的姿态,通过强大的功能支撑,在简约的视觉效果中自然展开生活方式的叙事,通过品味的共振,创造前卫时尚的整体空间调性,抛掉一切枷锁,寻获心中的乐园。
*案例类型 | 别墅 | 极简风格
DONGYIRISHENG
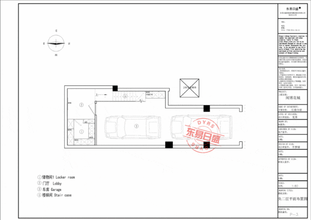
# 原始户型分析:
▷ 本案为闻博花城300㎡户型,地上两层,地下两层。
▷ 空间疏朗开阔,采光、通风优越。
▷ 部分空间分割较碎片化,交互性不足。
# 户型调整方向:
▷ 依照楼层进行动静分区,一层为客餐厨公共区域,二层三间卧房,地下室为娱乐休闲空间。
▷ 地下一层整体打通,加强空间的光线与空气流通,满足居者日常办公需求的同时,进行功能的延伸,构建丰富多彩的别墅生活。
▷ 将三个独立区域进行整合,重构空间秩序,打造舒适惬意的主卧套房。
ART LIFE
客餐厅区域设计
大面积的黑白灰铺设中点缀了清雅的蓝,从点到面,让空间静下来。L形吧台自背景墙延伸至落地窗旁,利用视野与光影,使得人、空间与自然形成对话,开放的设计方便居者与不远的餐厅互通有无,在平和的表达中,传递出自在舒适的生活逸趣。
中西厨、岛台、用餐区以清晰的动线构建出全开放式餐厨区域,在美食的制作和享用过程中,提升家庭成员的情感交流频次。整体收纳柜嵌入蒸烤箱和冰箱,用利落的线条完成生活化的收纳,韩国插画师aokizy的艺术作品悬挂于餐厅一侧,酿造热血青春的活力氛围,尽情享受陪伴与美食的快乐。
ART LIFE
卧室区域设计
妙趣横生的细节融汇在舒适开阔的空间尺度中,落地窗将远方景色纳为生活的背景板,自然流动的光影赋予居者松弛惬意的居住感受,别致的家具有序陈设,低饱和度的色彩与装饰让空间节奏放舒缓,利落高级的主卧套房中,生活如星辰般熠熠生辉。
ART LIFE
地下室区域设计
暗色系地下室带着酷炫的金属感挑动空间情绪,为小夫妻的办公时光创造恰如其分的静谧环境。依据天井等自然元素,在开放式的空间内进行等娱乐功能的延伸,紫色休闲沙发牢牢占据视觉C位,材质的多样性碰撞出前卫的视觉质感,至于陈列柜里的模型摆件或者家具画作,是多年的珍藏,亦是品味的证明。
影音、健身、瑜伽、喝咖啡......丰富多彩的功能空间带来选择的余地,别墅生活的优越性,便是蕴藏在这些随时随地都可以随心而动的生活方式里。
设计机构|Design Agency:东易日盛
项目地址|Address:闻博花城
项目面积|Project Area:300㎡
设计风格|Design Style:极简风格
设计户型|Design apartment type:别墅
客服
消息
收藏
下载
最近























