查看完整案例

收藏

下载

翻译
Architects:Fernanda Padula Arquitetura,Juliana Risso Arquitetura
Area:640m²
Year:2024
Photographs:Carolina Mossin
Manufacturers:Indusparquet,Domini Móveis,Firmato,Lucenera
Lead Architects:Fernanda Padula, Juliana Risso
Category:Residential Architecture,Houses
Project Team:Marcelo Panico, Emily Geisa
Engineering & Consulting > Civil:Lattaro engenharia
Landscape Architeture:Alexandre Galhego
City:Valinhos
Country:Brazil
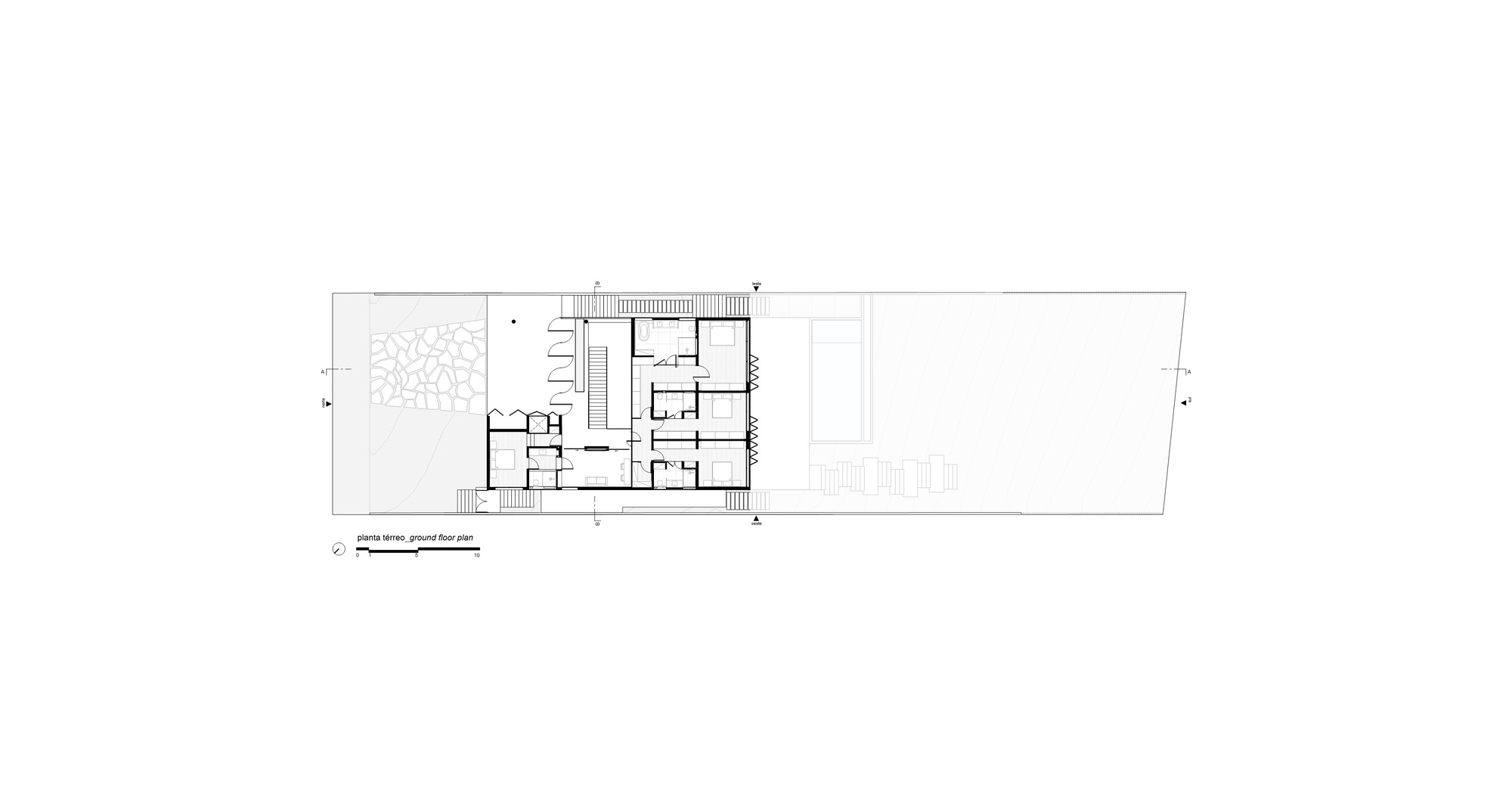
Text description provided by the architects. Set on a steep terrain with a privileged view of a lake, Cedar House embodies the desire to inhabit the landscape with lightness and depth. The design is anchored in the natural relief, allowing the topography to guide the architecture. The entrance is at the upper level, where the bedrooms and office are located.
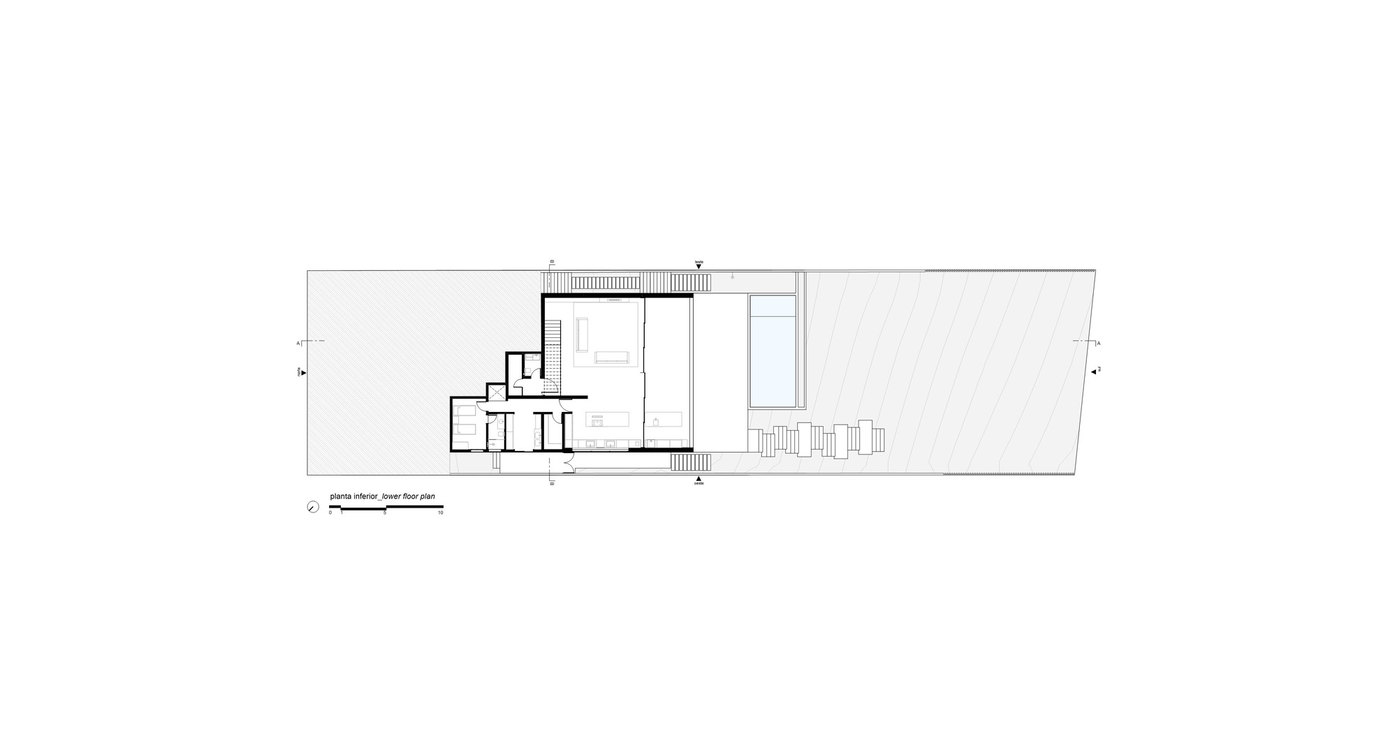
Descending the cantilevered staircase, the social and service area is revealed, marked by the integration of the living room, dining area, and kitchen, all oriented towards the horizon. Massive concrete structures ensure presence and stability, forming a box that frames the landscape, while strategically placed openings ensure natural lighting and ventilation.
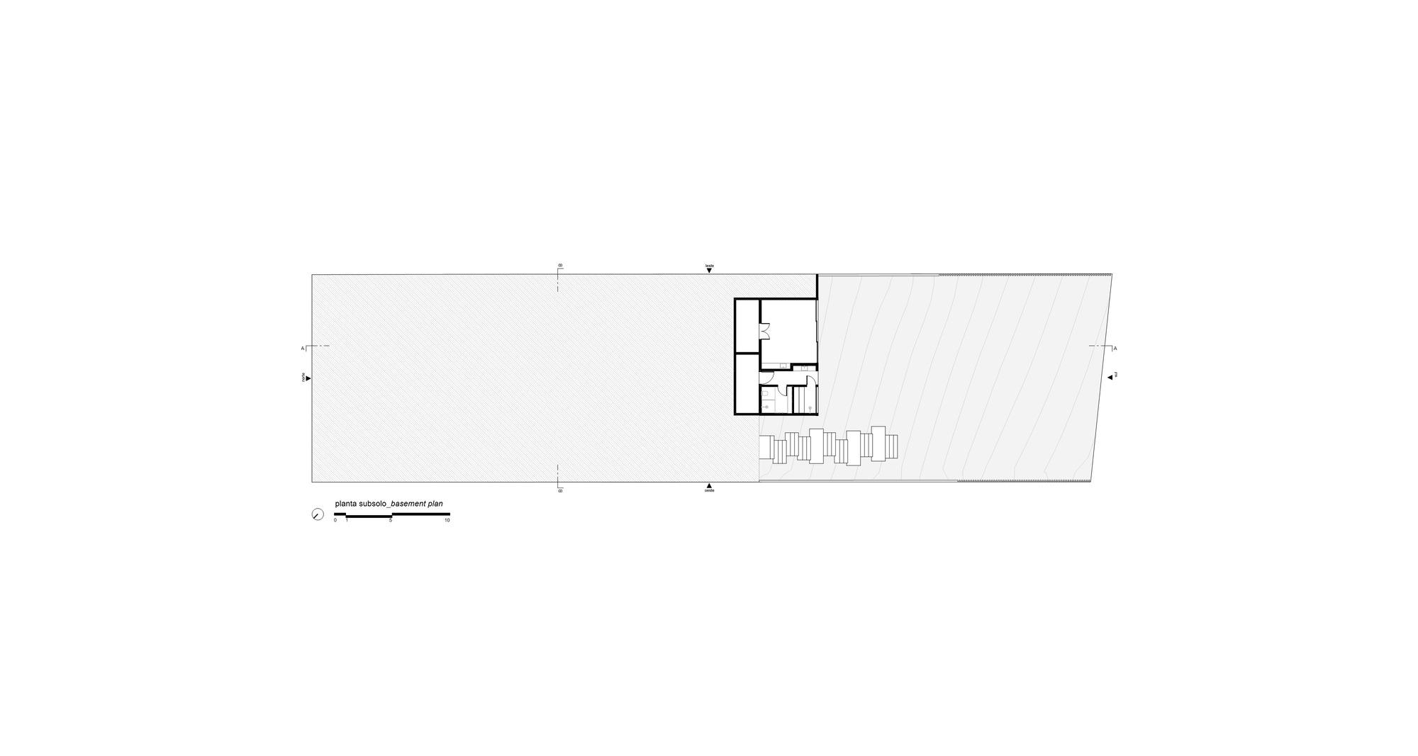
The pool, positioned near the treetops, appears to float over the valley, intensifying the atmosphere of suspension that permeates the entire complex. In the basement, facing a lawn that opens towards the landscape, are the sauna, changing room, and gym, expanding the possibilities for leisure and well-being without losing integration with the surroundings.
More than just a residence, Cedar House is an immersion in the scenery, a poetic dialogue between architecture, landscape, and material.
Project gallery
客服
消息
收藏
下载
最近




























