查看完整案例

收藏

下载
不被定义的法式浪漫
诠释松弛自由的生活方式
嘈杂的外界让人的精神时刻保持紧绷,一处与世隔绝的庇护所,逐渐成为大家的装家需求。从功能及美学上展现精神内核,满足精神需求,是现代法式可以带给人们的浪漫与松弛。
本案展现法式优雅与现代风格的融合,力求打造一个既具有传统法式风情,又充满现代感与清新舒适的生活空间。侧重于创造一个充满温馨、舒适与优雅的氛围,使每一个身处其中的人都能感受到法式的自由与松弛,浪漫与自由。同时,通过现代设计手法的运用,使整个空间在传统与现代之间实现了和谐的平衡,展现出独特的法式风格。
业主说
The owner said
尚层整装是我们对比很多家公司后,发现的装修宝藏,既可以满足我们一家子不同审美的人对于家的设计需求,还可以把控预算,在美感和价格都满意的基础上,施工的质量也是没话说,让我们整个的装修体验感非常好,很有安全感。
本案位于北京市朝阳区,这处总面积为460㎡的下叠是屋主一家5口的第一居所,他们对未来的新家生活充满了展望,对每一个角落的安排都有着自己的想象。
(负一层平面布置图)
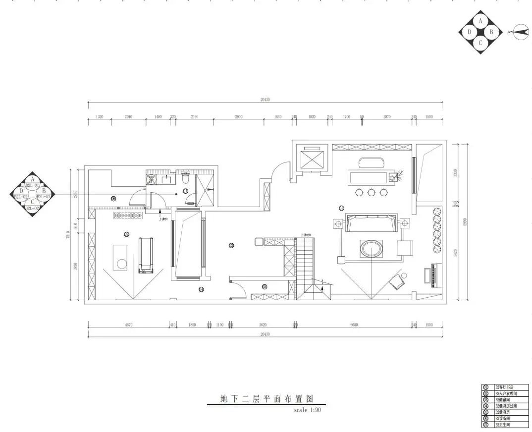
(负二层平面布置图)
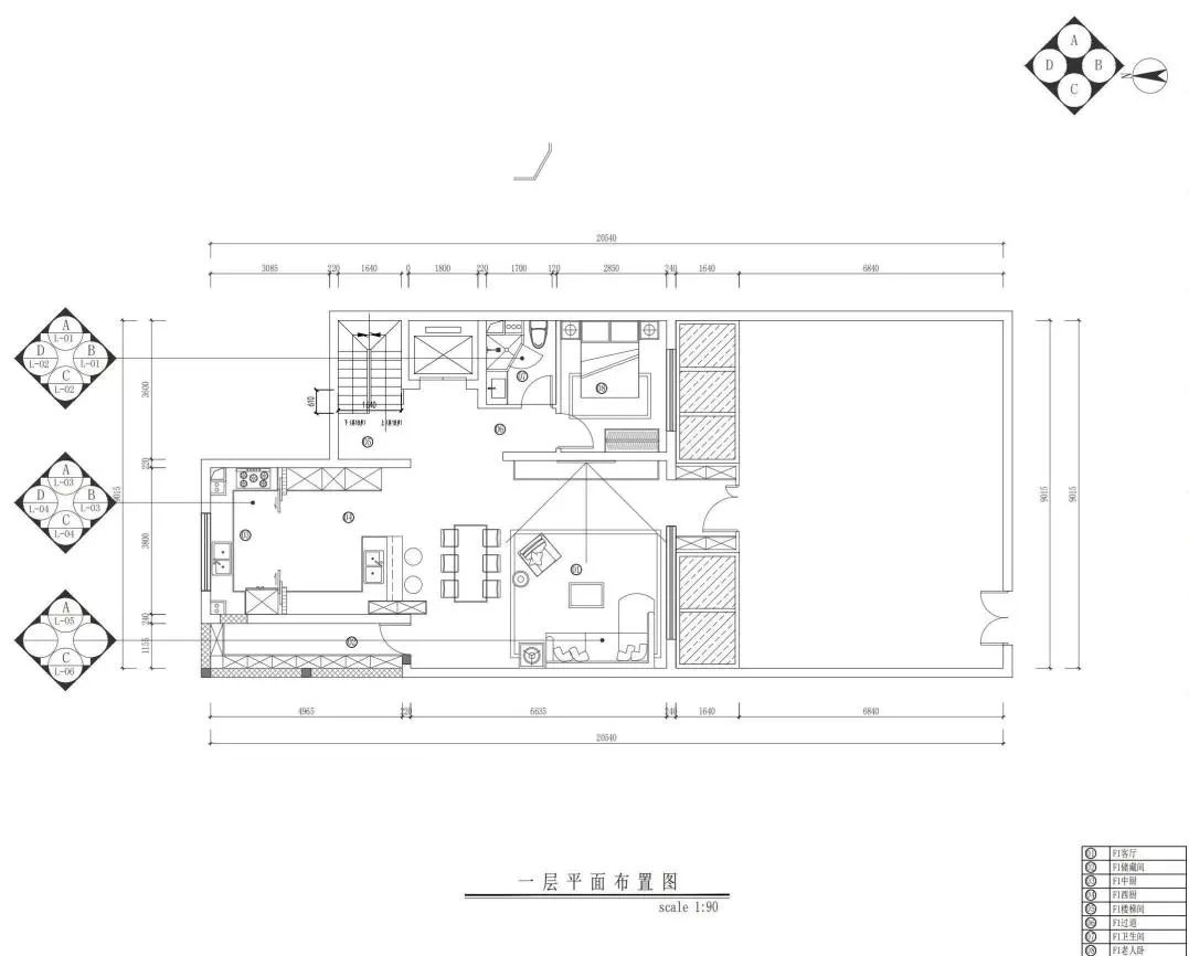
(一层平面布置图)
(二层平面布置图)
这处居所一共分为四层,结合屋主一家的使用需求,设计师将地下两层空间,分别设置为活动待客区及休闲办公区,地上两层有着优质的自然采光,主要设置为餐厅活动区及屋主的居住区。
01 挑空客厅
目之所及的挑空空间,虽为地下空间,却明亮宽敞,独特的风格和设计传递出一种优雅而舒适的氛围。这个空间巧妙地利用挑空设计将地下一层及地下二层进行空间分隔及设计融合,使整个空间层次分明,视野开阔。
会客区上方落落大方的水晶吊灯为空间增添柔和唯美的质感,天井区的几株由设计师精心挑选搭配的室内绿植与墨绿色的沙发单椅隔空呼应,使空间更具呼吸轻盈之感。
02 茶室
待客区后方这片区域,设计师特意将茶室置于此处,焚香品茶,更易拉近人与人之间的距离。
这是居住者位于茶室视角的一张图片,由此处望去,许是静待品茶的友人,许是正在追剧的家人,许是弹琴奏曲的女儿......无论是何场景,都将浓缩为幸福生活的难忘瞬间。
03 客厅
地上一层是客餐厅一体的设计,客厅以白色为主基调,搭配悬浮吊顶、悬浮电视柜和水晶吊灯增添现代感。大面积的玻璃落地窗将自然光引入室内,让空间更显开阔,营造出温馨舒适的生活氛围。
这个空间的软装配饰尽显温柔与温暖,丝绒材质的棕调的抱枕与异形地毯交相呼应,不规则地毯的渐变线条烘托柔和氛围。电视背景墙采用法式雕花的手法,无过多繁杂的装饰,简约秩序。
04 餐厅
味蕾的满足,更易使人快乐。在高级品质的餐厨空间内享受一餐一饭,幸福之感油然而生。
西厨为设计师及屋主共同商议的定制柜,覆盖金色玻璃和黑色岩板,黑金搭配所呈现出来的现代高级质感,搭配灰色地砖,让整体风格极具个性,现代感及实用性皆具。
05 卧室
卧室是每个人最私密的空间,也是主人个人内心世界的的缩影。本案设计师为屋主们打造了3个卧室空间,每间皆有各自的风格,大不相同。
(主卧)
主卧作为整个居所中法式风格最浓郁的区域,空间色调以暖灰色为主,营造出温馨而宁静的氛围。卧室的床体配备了宽大的床屏,不仅强调了空间的雍容华贵,更增强了舒适度。
地板采用深木纹色的材质,这种自然而朴质的色调与暖灰色相互映衬,赋予了空间更多优雅与质感。墙面设计采用了与吊顶角花相呼应的背景造型,这种细节之处展现了屋主对法式美学的独特理解和认同。
(女儿房)
屋主女儿的卧室位于地下一层,以柔美的淡紫色和白色为主调。独特的法式四柱床,配以法式背景墙面、吊顶,法式元素的完美设计搭配,让女儿房尽显浪漫又不失趣味。
(次卧)
次卧是屋主女儿在二楼的房间,房间的色调以中性色彩为主,如米色、浅灰色等,这与奶油色形成了轻松和谐的搭配。木纹色的木地板则使空间显得更具自然、温馨的氛围。墙壁和家具的线条都简洁而优雅,低调的设计手法更衬托出细节的精致。
项目名称 | 天瑞宸章
项目位置 | 北京市朝阳区
项目面积 | 460㎡
主创设计 | 朱彦蓓
设计团队 | 朱嘉薇 杨宝楠 程莹 王田
朱彦蓓
资深首席主创设计师
设计理念
读揽万物 秉物游心
资质荣誉
室内设计硕士研究生,美国访问学者
中国室内设计协会注册设计师
2017年 获明日之星全国金奖
2018年 获筑巢奖:普通户型优胜奖
2022年 获空间布局大师奖
服务项目
禧瑞春秋/天瑞宸章/金府大院//首城龙玺/格拉斯小镇/桃源名仕
祥云赋/长岛澜桥/复地首府//美利山/诺德阅墅/云河玉陛......
客服
消息
收藏
下载
最近


























