查看完整案例

收藏

下载
SIMPLE
简约
激活空间氛围
ART WALKING
这套110平的两居室,两室两厅两卫,户型正气,无论从空间尺寸和功能分布来看,都足以满足屋主的基本居住需求。但对于一个“家”的标准,怎么能仅仅止步于“够用”?
通过洄游动线、卫生间三分离、增加衣帽间,充分利用每一处空间,让屋主享受没娃之前的二人世界。灵活次卧和强大的收纳系统又能随时切换,满足未来的三口之家。
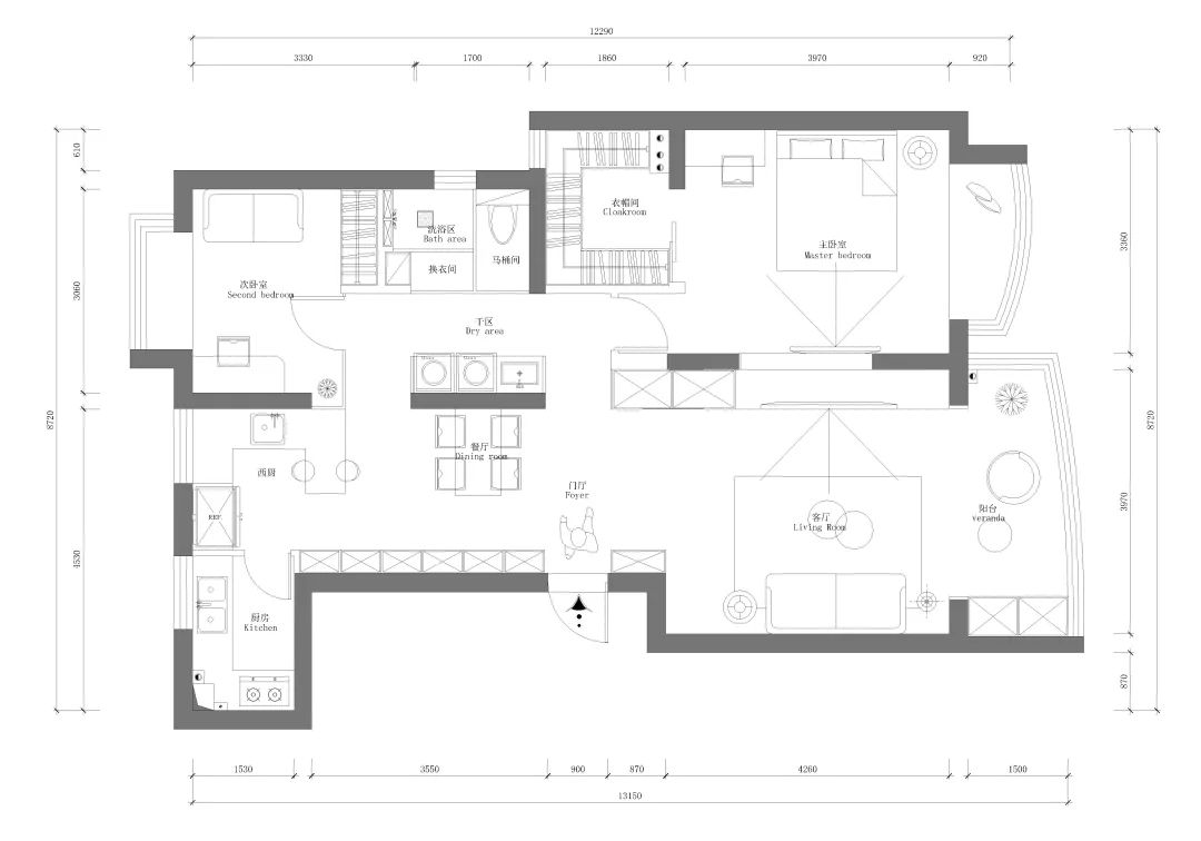
户型分析
RENOVATION
一房改小两房 小户型逆袭
建筑面积:110㎡
居住成员:夫妻二人,计划有娃
半包造价:12.5万
硬装:30万
总造价(含家具电器):60万
原始户型
原始户型是常规的两室两厅,南北通透,唯独厨房狭长,餐厅跨度窄,利用率低。
客户需求
√ 保留一间卫生间,并干湿分离
√ 西厨功能
√ 乐高展示柜
主要改造
区分
中西厨
,西厨和餐厅打通,提升公共空间通透性;
改变餐桌摆放方向,
拓宽餐区尺度
,增加一排餐边柜,扩充储物空间;
调整次卧和次卫关系,形成
洄游动线
,实现卫生间三分离;
主卫改
衣帽间
,增加主卧储物空间;
打造
收纳型电视背景墙
,满足收藏乐高的需求,同时和餐厅背景墙拉平,视觉上更整洁。
实景呈现
PICTURES
一般的家配不上现在的你
强大的收纳系统
GET WHAT YOU WANT
受限于餐厅狭窄的进深,原始户型无法安置下的玄关鞋柜在改造之后得以实现。
容量强大的鞋柜,便利的换鞋凳,可随手放置物品、包包的空间,一应俱全。和餐边柜功能融合,承载着玄关、餐厅的
收纳功能。
中西分厨处理,西厨和餐厅打通,既能提升公共空间通透性,也能作为餐区的补充收纳空间。
既要容量充足,又要保证视觉整洁,拿取便利,每个空间都需要有相应的储物空间。
打造
收纳型电视背景墙
,增加客厅储物空间,同时和餐厅背景墙拉平,视觉上更整洁。一组玻璃柜和开放架破开沉闷,丰富视觉效果,对外展示着屋主精心收藏的乐高。
阳台空间没有浪费,打造成供放松、聚会的休闲区。储物空间也没有缺席,卡座和吊柜都能用来存放不常用的杂物。
色彩带来的活力
GET WHAT YOU WANT
耳得之为声,目遇之成色。当你担心空间过于寡淡沉闷,色彩的巧劲,总能轻而易举激发空间活力,带来生动的场景体验。
客厅背景墙采用撞色处理,弧形元素丰富空间线条,进一步增添趣味性。
餐厅也采用了同款艺术漆,和客厅相呼应。
动线提升生活品质
GET WHAT YOU WANT
次卧和次卫的动线调整是平面格局上改变最大之处,压缩一部分次卧空间让渡给卫生间,形成
三分离
的功能区分,洄游动线的形式提升了舒适性和便利性。
干区和次卧都采用玻璃隔断,让干区成为采光汇集点,即便坐落于屋子当中,也能获得充分的采光。
刻意延长加宽的尺寸,让这里不仅限于单纯的洗漱区,更是小型的
全能家务区。
次卧是未来的儿童房,目前作为书房使用,简单的拼色处理就能脱离寡淡。
衣帽间自由
GET WHAT YOU WANT
主卧营造了与公区截然不同的配色氛围,柔和的中性色使睡眠区多了一份沉静。
主卫被取消,替代成对于屋主来说更为实用的衣帽间。设计和生活一样,总是充斥着各种取舍。
客服
消息
收藏
下载
最近


























