查看完整案例

收藏

下载
D.11_STUDIO
Shanghai 2020
Hidden. Empty. Circle
四季都会位于宝山区域的叠加别墅,本案是属于上叠别墅,2层楼面加1层阁楼,阁楼空间也是非常极限1950高度。
The four Seasons will be located in baoshan area of the stacked villa, this case is a stacked villa, 2 floors plus 1 floor attic, attic space is also very limit 1950 height.
四季都会建筑照片
Architectural photos of the Four Seasons
平面布置图
Floor plan
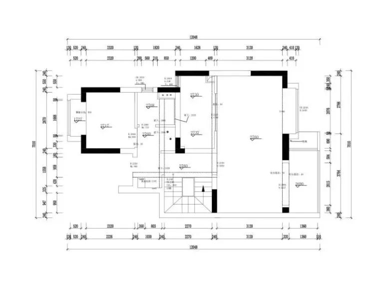
一楼原始平面图
First floor original plan
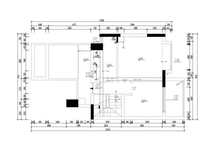
二楼原始平面图
Original floor plan of the second floor
阁楼原始平面图
Attic original plan
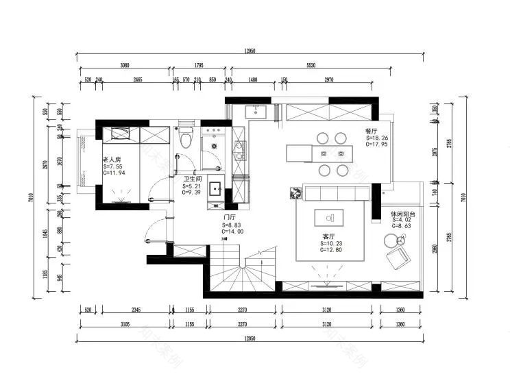
一楼平面布置图
Floor plan of first floor
二楼平面布置图
Floor plan of the second floor
阁楼平面布置图
Attic floor plan
餐厅&开放式厨房——开放式厨房和餐厅的结合让空间更宽敞,色块和结构的比例调整也让整体变得更加舒适。
Dining room & Open Kitchen - The combination of open kitchen and dining room makes the space more spacious, and the adjustment of the proportion of color blocks and structure makes the whole more comfortable.
客厅——优雅的圆形楼梯和整洁的电视背景结合在一起就是艺术与平静的代表。
The living room, with its elegant circular staircase and neat TV backdrop, represents art and calm.
客餐厅360度效果展示
Guest restaurant 360 degree effect display
二楼主卧——创新LOFT式主卧是本次案例的独创性设计,让整体空间充满灵动性。
The master bedroom on the second floor -- Innovative loft-style master bedroom is the original design of this case, so that the overall space is full of flexibility.
二楼主卧侧面——隐藏悬浮式楼梯,增加了主卧的高级感和结构的冲击感。
The side of the master bedroom on the second floor -- hidden floating staircase increases the advanced sense of the master bedroom and the sense of structural impact.
二楼主卧的360效果展示。
360 effect display of the master bedroom on the second floor.
二楼主卧卫生间——木色白色中嵌入绿色,整个空间充满了活力。
The bathroom in the master bedroom on the second floor -- wood white embedded in green, the whole space is full of vitality.
阁楼主卧LOFT更衣室——利用挑空分割了一部分空间给主卧腾出更衣室空间,一个属于私人领域的更衣室,大大弥补了主卧空间里衣物储放量的问题。
LOFT locker room -- A private locker room is used to make room for the master bedroom, which greatly makes up for the problem of clothing storage in the master bedroom.
阁楼主卧LOFT更衣室——8平方左右的空间两边做吊式更衣架,利用梁位去做一个放化妆用品的小平台。
LOFT locker room in the main bedroom of the pavilion -- There are hangers on both sides of the 8-square-meter space, and the beam position is used to make a small platform for putting cosmetics.
阁楼影音室——男主人的最爱,猫在阁楼另一侧享受这大片给人的震撼。
Attic video room -- the man's favorite, the cat in the other side of the attic to enjoy the shock to the people.
阁楼影音室——简单的装饰让原本10平方的空间天然的成为优秀的影音空间。
Attic audio-visual room -- simple decoration makes the original 10 square space naturally become an excellent audio-visual space.
儿童房——主卧的悬浮楼梯反面是儿童房的柜子,巧妙的运用两边的方式把柜子合理利用。
Children room -- advocate lie the cabinet that the opposite side of suspension stair is children room, clever apply the means of both sides to use cabinet reasonably.
儿童房——粉蓝色属于小孩在的天地。
Children room -- pink blue belongs to the world that the child is in.
项目坐标 I Location:上海 宝山 四季都会
项目面积 I Square Meters:130m
2
项目类型 I Property:叠墅
设计机构 I Studio:D.11_Studio
设计时间 I Time:2020.12
团队设计 I Member:夏乾、鄧尚琴
ABOUT US
DIHI创意设计工作室成立于2015年,一直致力于豪宅、民宿、品牌店面、商业空间、景观、创意园、展厅等设计类型。
以创意创新创造为宗旨,创造出很多设计作品,结合新型材料,灯光氛围,结构解析,让整个空间赋予新的活力,使得每个空间有美的新的定义和解释,目前设计作品和案例遍布全国各地。
客服
消息
收藏
下载
最近
























