查看完整案例

收藏

下载
苏州湖东未来
Suzhou Hudong Future
[ 古宫闲地少 水港小桥多 ]
江南水乡,水多 桥多 街坊深巷多是甪直镇的一大特色,本案以“水乡新韵”为设计主题,江南的匠人心灵手巧,利用多变的地形,使流水在房屋之间畅漾。
Water town in the south of the Yangtze River, many Bridges and deep alleys are one of the major features of Luzhi Town. The design theme of this project is "new charm of water town".
项目位于苏州市吴中区甪直板块,是一座与苏州古城同龄,具有500多年历史的中国水乡
文化古镇;该镇位于苏州城东南25公里处,是吴中区的东大门,北靠吴淞江,南临澄湖,西接苏州工业园区,东衔昆山南港镇。
Located in Luzhi block, Wuzhong District, Suzhou, the project is an ancient Chinese water town with a history of more than 500 years, the same age as the ancient city of Suzhou. Located 25 kilometers southeast of Suzhou City,.
倚空台榭,爱朱阑飞瞰,百花洲渚。
槛外游丝,水边垂柳,犹学宫腰舞。
昔日的江南明珠,今日最后的枕水人家,走进本案,呈现眼前的是一幅恬静的“小桥、流水、人家”江南画 ,采用流线型空间设计。
Former Jiangnan pearl, today the last pillow water people, into this case, present before the eyes is a quiet "small bridge, water, people" jiangnan painting, using streamlined space design.
在空间上取水乡之韵,采用流线型空间设计,从入口到展示大厅,形体延展,如江南水系婉转流畅。
In the space, the rhyme of water town adopts streamlined space design, from the entrance to the exhibition hall, the shape is extended, such as the river system in the South of the Yangtze River is graceful and smooth.
流水岸边是人家,江南建筑依水势而建 白墙青瓦,错落有致,优雅别致。
The riverside is home, jiangnan building according to the water and built white walls and green tiles, well-arranged.
丰稔年华,酒旗斜插。
茅檐下,小桥流水人家,一带山如画。
在空间立面关系上,借用江南建筑民居特点,抽象提炼结合空间语言,给空间立面以岸边人家的印象,客来乘船,客到就岸。在外为客,就岸归家。
In terms of spatial facade relationship, it uses the characteristics of jiangnan residential buildings, abstractly extracts and combines with spatial language to give the impression of people on the shore, visitors come by boat, and visitors arrive on the shore. He that is a stranger abroad returneth home.
江南的肌理是优雅的,涟漪的水纹,空间形体赋予干净的材质肌理,在灯光下,深色的大理石地面,如江南的流水。立面天花统一的浅色肌理材质,是依水而建的江南人家。
The texture of Jiangnan is elegant, the ripples of water, the spatial form gives clean texture, under the light, the dark marble floor, such as the flowing water of Jiangnan. The light color texture material of the facade ceiling is a jiangnan family built according to the water.
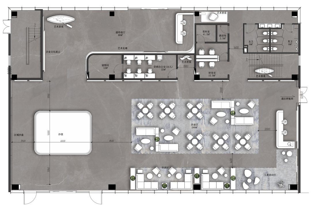
△
首层平面图
项目概况
项目名称 | 苏州湖东未来
开发建设 | 新希望地产
甲方团队 | 张继 易海斌 张韦 吴东霖 王瑜 李文静
硬装设计 | YLH · IDEAL
设计总控 | 张怀 张云 张浪
设计总监 | 郑亮
方案设计 | 王宜辉 任浩博 苗雨 于静 候泽宁
软装方案 | 丁晓楠 魏巍 李亚丽 李少腾 张馨竹
深化设计 | 李国吉 李娅靖
摄影团队 | 郑焰
项目性质 | 示范区
设计团队
▽
△
YLH · IDEAL 設計 | 硬装
·
王宜辉 李国吉团队
△
YLH · IDEAL 設計 | 软装
· 丁晓楠
团队
团队作品
▽
YLH·IDEAL设计团队 | 构建鸿憩华韵·臻珑府
YLH·IDEAL设计团队 | 失重星球的漫游之旅
YLH·
IDEAL设计团队 | 君康年华
YLH·
IDEAL设计团队 | 合肥祥生北雁湖
YLH·IDEAL
关于
YLH·IDEAL
设计团队
创始人:
张云、张怀、张浪
YLH · IDEAL设计团队
创始人 | 设计总监
以自然灵性作为启发,发掘内心的感悟,导入空间的独特性,运用一生二、二生三、三生万物的哲学智慧,流传人类文明的传承。为空间赋予文化内涵的同时,注重功能性、人文关怀。为生活其中的人,带来诗意、悠然、感动和幸福,拉长空间的生命维度。这个由三个兄弟组成的设计团队,体现着团队的力量和设计的前沿感。完美实现 1+1+1大于3,团队文化也从这一数字出发,即“三人行必有我师”。每个案子都凝聚着三位总监的思想精华和高度,而他们也在设计的旅程中享受着这一难以言表的挑战和满足。
关于
YLH · IDEAL
设计团队
YLH · IDEAL 设计团队总部位于北京,由张怀、张云、张浪 三兄弟共同创立。荣获IF design 2020德国室内建筑设计大奖、2019年美国 Good design 获奖团队、2018英国 Andrew Martin 安德马丁获奖团队;也是 INTERIOR DESIGN 美国ID杂志中国室内设计年度封面人物。设计作品专辑《地产营销空间》著作已出版并全国发行。在售楼处示范区、酒店、会所、办公领域里的设计作品成为中国室内设计的成功案例。与融创地产、远洋地产、招商地产、蓝光地产、中海地产、新希望地产、龙湖地产、香港置地、金辉地产、电建地产、北大资源地产、绿地地产等一线地产公司达成合作关系。
投稿 | 开发商合作 | 设计师合作
136 9799 2210
北京团队
地址:北京市丰台区吴家村路57号北重创意园区A6栋
邮编:100089
深圳团队
地址:深圳市南山区赛西科技大厦13层1309
邮编:518000
客服
消息
收藏
下载
最近
































