查看完整案例

收藏

下载
Design is not a style choice
What we need to find for ourselves
It's a scale to be true to yourself
设计不是风格的选择题
我们需要为自己寻找的
是一个忠于自我的刻度
以形观体
着彩赋形
曲与直的力量
带动着空间节奏
NO.01
玄关
强烈仪式感 多元可能性
步入玄关,即可窥见线条的灵动美。螺旋形的楼梯轻盈曼妙,通透的扶手勾勒出优雅弧度,素洁的光被隐藏在层层阶梯下,烘托着拾级而上的氛围与强烈的仪式感,赋予空间多元的创造力与可能性。
NO.02
客餐厅
细分尺度 更迭维度
经典简约的黑白灰三色,是对现代生活轻盈
形态
的最好诠释。在无拘无束的自由世界中,以色彩为边界突出平面的层次感。清新如风的原木色调,为黑白的理性色感注入了属于生活的暖意,明亮又清透的活力空间,元气
满满
。
客餐厅仿佛一幅包罗万象的画布,褪去了纷繁的色彩,传递了极简的艺术性,光对空间进行了随心所欲的创作。随着时间的推移, 不同角度和明度的光会在画布中展现异彩,呈现肌理与光影的空间美学。
NO.03
书房
错落分隔 虚与实结合
体量有限的空间格局中,倚墙而设的书柜与书桌,大大提高了空间利用率。错落的空间分隔,描绘出书房领域的真正特性。运用虚与实结合的手法,以两把极具未来感的透明流线型座椅,让书房内的格局舒展自如。
NO.04
卧室
精致质感 情意氤氳
姹紫嫣红不觉甜?安抚情绪的素颜空间来了!独具摩登风情的卧室,代表着居住者对现代质感生活的不懈追求。跨材质、多层次地展现黑白灰的美,黑白灰色系与生俱来的时尚质感,酝酿出卧室的风格与气质。
色彩的转变,是标志与区分空间的重要元素,营造出室内一片“竹海”与“茂林”的意象。带有清新与活力的绿色背景墙,盈溢着充满好奇、乐观向上的情绪。倚靠着它,仿佛时刻与自然为伴,自由且快乐。
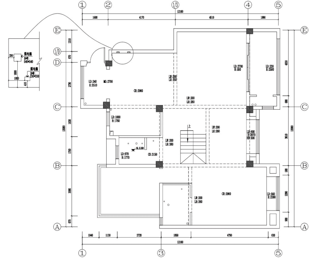
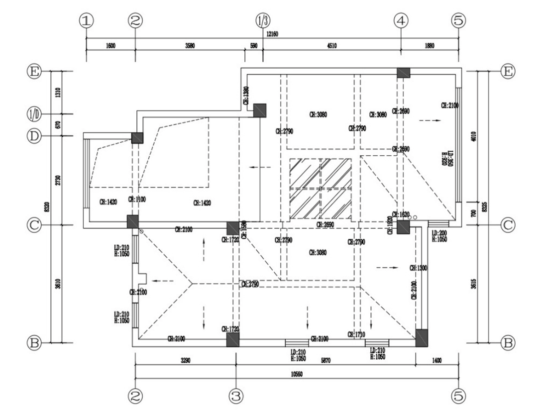
平面图
项目信息
项目名称:为睦设计|以形观体 着彩赋形
设计公司:为睦设计
设计时间:
2019年5月
项目面积:310平方米
项目性质:私宅
项目地点:福建 南平 正达南苑
文案策划:修合文化
往期推荐
两居室の幸福生活,小户型教科书式突变
阿木|麦子
苏州
工业园区
科成路6号鑫义达
研发中心1-
307
18015592906
客服
消息
收藏
下载
最近





















