查看完整案例

收藏

下载
///
前沿潮流风尚
贯之以极简的黑白灰,少一分则单调,添一分而多余。反复打磨思量,用最原始、最基础的线元素,以构成主义的手法重新解构与组合;得益于对生活方式的审视,整个空间的质感、肌理、细节,都夹杂着时光的温润。
项目名称 |
京武浪琴山
项目类型 | 别墅
项目面积 | 612㎡
项目风格 | 现代简约风
缪斯之源
试图与破碎的世界抗争,重新建造一方干净的空间。将美好的概念植入空间,生长出新的生机与活力;以优雅与克制的表现方式,结合连贯性的艺术性,构成一方自洽的天地。
改造解说
|
壕改需求布局 · 成就上乘美墅
原始室内格局不够理想,不符合业主对于现代时尚的期待。设计师将功能与动线优先考虑,对空间进行了重新的规划与改造,连贯起生活、休闲与艺术之间的转换;对细节把控下,将别墅的定义与风范更好地融合到生活里:
左右滑动查看更多
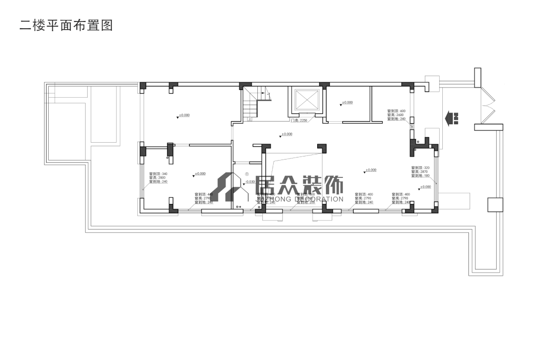
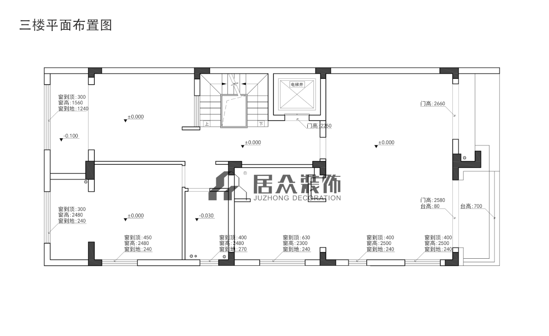
平面布置图
Layout Chart
●
增加双车位(带车棚)超大空间车库,生活设施齐全;
●
让1楼一部分空间让渡出来,改建成室外庭院,扩容生活属性;
●
修补立柱,填平2楼挑空层,设计成旋转楼梯空间,满足个性化需求;
●
所有主卧都是套房设计,将生活舒适性进一步提升;
● 增设亲子活动区、健身房、保姆房等多功能房间,空间功能更加全面。
摒弃常规的现代元素的冗杂,深度挖掘高净值人群的审美与生活方式,重建一个新旧共鸣的极简空间;平衡内在的需求及差异化,将常规元素发挥再利用;软装搭配上选用的黄蓝互补点缀,“潮玩”时尚元素嵌入其中,联动生机与活力,彰显其卓越品质。
于空间始末,不做多余装饰。简约的线条、成为视觉及动线的导向;局部以蓝色修饰提亮,增强层次感的同时完善空间语言结构,顺理成章地成为视觉焦点;遵循极简的风格,用现代的视角诠释餐桌的艺术文化。
更加注重每个区域之间的交流和整体互动,选用小面积的黑色造型奠定空间的艺术基调;以简单的墙面勾勒灯带搭配游走的错落吊灯,随性的布景共同营造着轻盈的美感;多个元素的叠加重组,形成带有力量及节奏感的视觉效果。
根据功能与内涵属性的划分,充分打造充满科技元素的情景空间。基于时代背景下对多元书房的理解与发散,延伸“材”与“质”之间的交织与层次,增强其通透感与私密性;蓝光与未来感十足的软装配饰,在多方细节的调配下,赋予人探索未知的勇气。
沉浸宁静的的氛围,有助于抚平心中的焦虑。利用不同的元素与色块,架构起稳定的秩序载体,没有纷扰,生活的色彩也随之饱和;从摆件、台灯、地毯,转而追求精神空间的艺术,窥见低调优雅而不失温馨的高级气质。
平静之下,克制的恬淡自得艺术的笔调油然而生。通过造型与端景的设计,让空间不在沉闷,又保持着相对的平衡;讲究极致简洁,空间大面积的留白,在界面转折的地方,运用不同的材质,丰富其细节,营造空间视觉美学的层次感和韵律感。
最为常用与纯粹的色彩组合,探寻生活的本源。简约的铁艺收纳搭配木质的大床,在有机的生活状态下,努力为这个世界,留下认真存在的价值;落在于墙角的绿植与编织的物件,在阳光的照耀下,去塑造自然简约的家居氛围。
设计是一场与未来时空的对话,打破美学的界限,将艺术、家居、实用,贯穿了生活的多元层面;注重收纳与娱乐的属性,是一次维度体验的空间大赏;作为重要的社交载体,零距离拉近品质与生活,结合不可或缺的美感,营造高雅的审美意识。
自由且有张力,将对生活的态度,赋予到日常的居住空间。寻求感官与功能上的多重调和,用大面积的雅士白渲染其简约的浪漫;临窗的弧形大浴缸,波光粼粼的超大面墙面镜,传达着居者对于器物与细节的诉求;干湿分离与照明的加持,进一步印刻了人文与关怀。
VIDEO
全/案/设/计/视/频/解/析
VIDEO
///
与生活重归与好吧
在这里风格是世界的公民
态度也在空间里逐马
就像蓄谋已久的花期与美好
等待酝酿下一场盛开与你的发现
在外面有时候伪装“八面玲珑”的面具
至少回到家里斗酒彘(zhi)肩风雨渡江
做回从容的自己享受真正的生活!
|内容撰写:集团品牌管理中心
〓
JUZHONG || 往期推荐
〓
客服
消息
收藏
下载
最近
































