查看完整案例

收藏

下载
Project Name/项目名称:碧桂园
Decorative Style/装修风格:新中式
Designer/设计师:谭萃明
Area/面积:580㎡
Project cost
/
工程造价:53w
本案为四层的别墅设计,一家三口人居住,平时都是业主夫妻俩,孩子已经上大学。业主对于中式风的禅意味欣赏不已,同时也喜欢时尚的轻奢感,设计师谭工经过沟通了解,最终确定以新中式风格来展开设计!
整个别墅分为三个区域,
-1
F
与 1F、2F、3F,分别是地下休闲厅、会客厅和居住区域。
▲-1F原始结构图
▲-1F平面布置图
-1F是属于娱乐休闲厅
(包含
储物间,影音室,酒窖),客人来做客时,有专门的休闲区,再加上男业主对酒有一定的研究,所以酒窖的空间比较大。
▲1F原始结构图
▲1F平面布置图
1F是属于会客厅(包含玄关、客厅、餐厅、厨房、茶室、保姆房
)
,是待客,就餐之处。
设计以浅灰色、米色、木色系为主,不同的空间伴有明度与冷暖的调和,同色系中亦用饱和度的变化来突出层次感,居室的整体硬装和家具壁布的选择以温和的为基调,整个空间气氛干净又具有禅意气息。
▲门厅
入户门厅采用中式园林的借景手法,更显得中式韵味浓厚。
端景的设计以东方美景的迎客松来勾勒生机,简净的木色柜,人文情怀浓郁的水墨色,天然的纹理和材质呈现出的质感美,整体空间流泻出沉静淡然的气息。
▲茶室
国人的血液里都流淌着对茶道的喜欢,形似品茶,实悟人生,一般家里必不可少一个品茶空间。
茶室的空间架构设计,以全木色为主,打造一间清新雅致的茶室,在空间中细品袅袅的茶香,这未尝不是现代生活中返璞归真的诗意栖居。
▲客厅-1
客厅的设计以基于主题及增加空间层次感来考虑,软装搭配以简洁且有东方韵味感的布艺沙发来装饰,色彩上以木色、冷灰色作为呼应,并着绿植点缀。
设计师巧妙的把沙发摆设两旁,扩大视觉的延伸性,中间电视背景墙采用浅色拼接作为衬托。材质软硬兼备,非常符合业主心目中的新中式手法。
▲客厅-2
客厅的另一侧设计,以大面积的木质材质为主,整片落地窗通透感十足,客厅无主灯设计,以辅助光源为搭配,如此,一个贯通的大空间便构成,整体打造出一个飘渺灵动又充满韵味的空间,瞬时让人忘却俗世的繁华喧嚣。
▲餐厅
餐厅的设计手法跟客厅的相互呼应,以时尚圆桌作为中心点,简洁的椅子四周环绕,中间的吊灯更是为空间增加不少别致感,恰到好处的挂画同空间整体色调相辉映,整体环境优雅十足。
设计师还为业主搭配一个花园餐厅,业主夫妻二人就餐时,方便又有趣,也不失为一种乐趣。
▲2F原始结构图
▲2F平面布置图
2F是属于业主的私人区域(包含书房、衣帽间1、衣帽间2、主卫、露台、水吧区以及次卧)。
▲主卧
主人房的设计偏中式韵味,无主灯,用的是辅助灯源,床头采用暖色硬包搭配,此空间的主幅造型无比抢眼,以一个挂在墙上的居中正方形挂画,当射灯开启时,半虚半实,整个空间散发出淡淡的舒适质感。
一种山水情怀,于江渚之上驾一叶扁舟,侣鱼虾而友麋鹿。也许我们做不到深隐于世,可总有办法在尘世创造一处悠然的安栖之地,与自己好好相处。
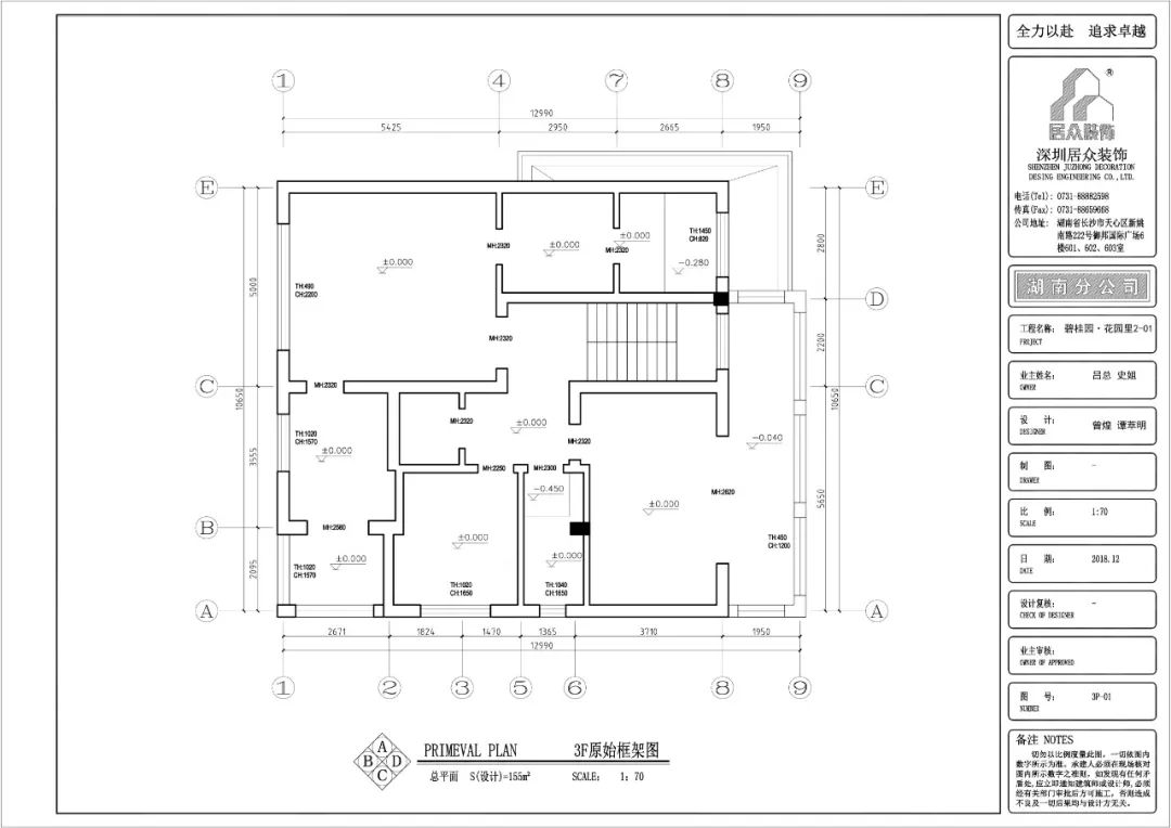
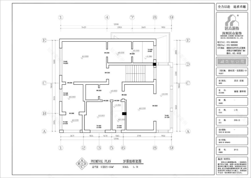
▲3F原始结构图
▲3F平面布置图
3F是
属于男孩的私人区域(包含书房、衣帽间、步入式衣帽间、主卫、休闲阳台、以及次卧)。
▲男孩房
男孩房的设计以以现代风来打造,一侧整面的落地窗,光线透过窗纱洒在地板、床铺,整体看起来轻盈美好,给人一种自由,时尚的感觉,是内心深处所渴望的理想栖居场所。
设计师以人性化的设计思维方式出发,使室内不同空间的格调和秩序互为映衬、各自延伸,借由营造一种设计氛围,体味统一性的美。
谭萃明表示:作为设计师应该
站在业主的立场上,尽可能跟业主多交流,要在现有的基础生活上,融入新的设计,以此来提高业主的品位以及生活方式。
客服
消息
收藏
下载
最近



















