查看完整案例

收藏

下载
Project Name/项目名称:乐城
Decorative Style/装修风格:新中式
Designer/设计师:温宏标
Area/面积:140㎡
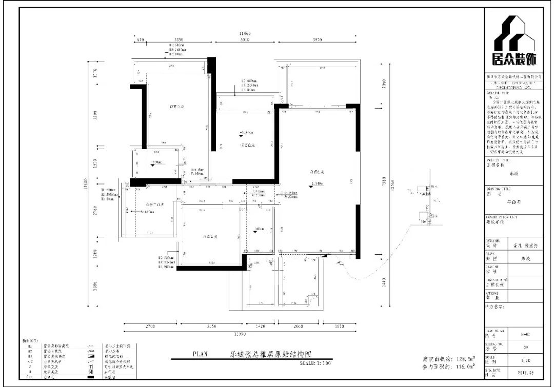
▲原始结构图
本户型属于平层户型,一家六口人居住,四房两卫,个别区域进行改动,如厨房动线不合理,把厨房位置往生活阳台外拓,东西方向进行优化,西厨节省出空间让餐厅的区域更开阔,实用性更好,令其动线更加合理规范化!
▲平面布置图
由于业主对于沉稳、悠然、低调而又不落俗套的风格尤其喜爱,温工对其进行多方面的了解,最终确定为新中式风格。
该案例在设计上秉承东方美学的理念,让那些追求品质生活的人们,离自己的诗意人生更进一步,
它扎根于中国传统的文化精神,并与当代人的审美需求相融合,演绎出个性独特而崭新的风貌,让人过目难忘!
▲餐厅
进门之处则是餐厅的区域,一整排实木鞋柜的设计,既可摆放鞋子、小饰品,又具有装饰的功能,鞋柜中间以中空的巧妙设计来形成一大亮点,玄关与餐厅之间,融为一体,又分而有度。
温工特意用正方形的波打线把餐桌的区域划分开,圆桌可谓是团圆之意的集大成者,圆台圆餐桌形如满月,象征一家老少团圆,象征着中国文化中特有的美好寓意,在传统家具中颇为常见。
▲
厨房拆改前后
原先的厨房流动性不太好,实用性不强,后期温工经过拆改,对生活阳台进行外拓,使得厨房的空间使用更加舒适,同时还让餐厅的区域更加宽敞,可谓是一举多得!
▲客厅
放眼望去,整个设计一改传统中式的繁复与沉闷,而是将新中式的沉稳大气注入到现代生活方式中,既有现代设计的简约,又契合东方传统的古典气韵。
客厅以茶几为中心,其余家具呈围合式布局,整体的线条简单利落、色素朴实干净,再加上沙发背景墙的大面积硬包的形式,让一切看起来自然而和谐,颇有几分中式的典雅韵味。
置身其中,一器一物皆为景,放空灵魂、沉淀心性,让艺术与哲思在这片温馨禅意中静默交融,蒙上一层静谧之感~
▲卧室
主卧的床头背景墙同样是一大亮点,淡雅的梅花,欢悦的喜鹊,
营造出一种唯美、清新的意境感,室内做上一整排浅色实木衣柜,
和墙面的浅色木饰面相呼应,床单的用色和靠枕用色一样,用一蓝色为跳色,这样整个空间不会太冷。
试想一下,住在这样一个雅致宁静的居所里,定能于繁华闹市之中寻得一片净土,寻得一份让居住者安心的归属感。
温工表示:
每一个人的家装风格都是不一样的,唯一相同的则是居住的体验感是否舒适,希望自己可以用专业的设计来给予客户无尽的居住舒服感。
客服
消息
收藏
下载
最近









