查看完整案例

收藏

下载
东易日盛·品质家装
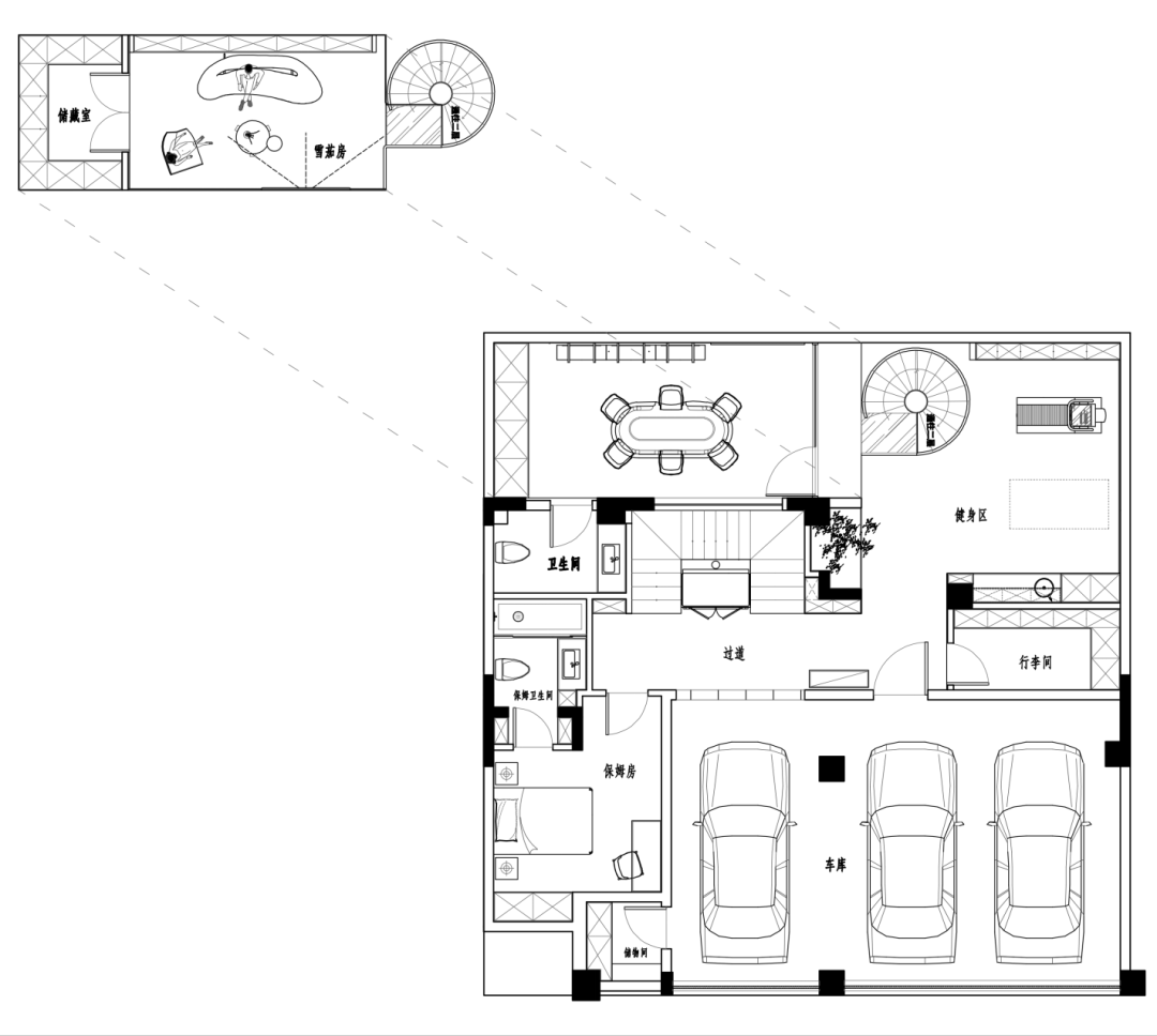
今日分享的是一套面积约580平米的联排别墅设计,共有地上3层和地下2层,还有一个空腔挑高部分。
这套别墅包括了主卧、儿童房、客房、保姆房、独立书房、健身区以及独立的工作休息室和会客室。
业主对衣帽储存的需求非常高,这导致二三层的空间显得有些拮据。我们面临的最大挑战是在有限的面积内既满足业主对奢华舒适的别墅空间的心理期望,又妥善地安排业主所需的功能空间。
580㎡ | 现代简约风
案例解析
Decoration Design
通过改造入户门,家居空间得到显著的扩展,而精心设计的玄关柜不仅提升了整体装饰效果,更赋予了生活仪式感。
通过巧妙的设计,我们成功拓展了原本狭窄的玄关空间,将其延伸至达3米长。踏入这个温馨的家门时,一个明亮而优雅的氛围立即迎接您的眼帘,透过落地窗户欣赏室外的美丽风景,享受放松舒适的居家环境。
在宽敞的厨房空间内,充分发挥了台面和中岛的优势,实现了面积的最大化利用。特别设计的开放式调料架不仅美观,更贴合中餐烹饪的需求。
餐厅整面墙的浅色柜体与室内灯光相互映衬,岩板的镂空设计和岛台的搭配,宛如一抹璀璨的花瓣点缀其中,为整体空间增添了一份轻盈的氛围。
光明室内,卧室幽静舒适,雅致的家具布局简练,以温暖的白色调为主,营造出宁静轻松的氛围。深色地板与墙面相得益彰,各色调和谐相融,独特无主灯设计创造出恬静宜人的休息角落。
主卧室配备了专属的衣帽空间,整体色调与主卧室的奶白色保持一致。通过采用虎皮纹木饰面和吊灯阁楼的布局,创造出令人印象深刻的收缩效果。水晶吊灯的设计更是为这个空间增添了简约实用和奢华氛围。
护花使者,女儿的小天地。柔和的粉色墙面与柜体,营造出清新宜人的氛围,散发着甜美的气息。窗前挂着淡粉色窗帘,轻轻飞舞的纱幕,点亮了房间的温馨角落。
异形吊顶完美迎合了年轻业主的喜好,并且在配色方面深受业主及孩子们的喜爱。整体设计采用了马卡龙色调,巧妙地融合了多种元素,使儿童娱乐区的装饰更加出色。
为了满足女主人对健身和瑜伽的热爱,我们特意为她打造了一个独一无二的私人健身房。负一层的设计完全按照她的需求来,以开放式布局为主,营造出时尚明亮的氛围。整个空间运用了高饱和度的色调,让人一进入就感到活力四溢。
与此同时,异形的楼梯也成为了装饰的亮点,不仅增加了空间的灵活性,还为整个健身房增添了独特的风格。
天井的存在为地下室引入充足的光线,通过墙面的PU石皮与仿真植物造景将自然元素引入室内。
舒适懒人沙发,独具个性的单人椅,仿佛点亮了平凡而美好的日常生活。它摒弃了复杂的外观,与我们内心的简约心境完美契合。独辟蹊径,抛弃了繁琐的虚华设计,它更注重清新自然的家居生活体验。无忧无虑的感觉,就是在自己温馨的小天地里,尽情享受自由舒适的休憩时光。
这里是男主人日常待的最多的一个区域,工作之余、三两好友小聚均在这里;岩板石的装饰和茶桌茶具更搭,看似简单的点缀,反而彰显出多重生活色彩。
为了让洗浴区更显精致与奢华,我们设计了独特的空间布局,光线巧妙地烘托出了它的高级氛围。
案例风格 | 现代简约风
案例户型 | 联排别墅
案例面积 | 580㎡
案例出品 | 东易日盛
点我可测试专属您的装修风格
左右滑动查看更多
东易日盛上市家装品牌
客服
消息
收藏
下载
最近



































