查看完整案例

收藏

下载
“隐奢之所,
细品岁月沉淀的
品质韵味
”
01
SPACE DISPLAY
空间展示
外景
OUTDOOR SCENE
—
本案位于汕头市潮南峡山。在这栋小洋楼的外景空间设计上,不仅代表一处景观,更是一种生活方式的体现,是远离喧嚣,回归自然,享受宁静与奢华的心灵港湾。外景天地里,每一处设计都仿佛是大自然与人类智慧的亲密对话。
This case is located in Xiashan, Chaonan, Shantou City. In the exterior space design of this small western-style building, it not only represents a landscape, but also reflects a way of life. It is a spiritual harbor away from noise, returning to nature, and enjoying tranquility and luxury. In the outdoor world, every design seems to be an intimate dialogue between nature and human wisdom.
天台花园
ROOF GARDEN
—
洋楼天台的设计旨在打造一个多功能、舒适且具有独特魅力的户外空间,将自然景观与休闲娱乐完美融合,为居住者提供一个放松身心、享受生活的理想场所。
The combination of gray tiles and off white sofas creates a minimalist yet warm atmosphere, making the space more dynamic. Comfortable materials and elegant details allow for a comfortable and luxurious soft touch./The design of the rooftop of the Western style building aims to create a multifunctional, comfortable, and uniquely charming outdoor space, perfectly integrating natural landscapes with leisure and entertainment, providing residents with an ideal place to relax and enjoy life.
客厅
LIVING ROOM
—
一楼客厅
各层的客厅设计,重在营造一个豪华、舒适且富有个性的空间,以满足居住者对高品质生活的追求。
The design of the living rooms on each floor focuses on creating a luxurious, comfortable, and personalized space to meet the residents' pursuit of high-quality living.
二楼客厅
整体设计风格融合了现代与经典传统元素,展现出独特的魅力。沙发的布局呈围合式,方便面对面的交流,增进互动性。
The overall design style blends modern and classic traditional elements, showcasing a unique charm. The layout of the sofa is enclosed, and the communication across from the instant noodles enhances interactivity.
餐厅
RESTAURANT
—
在这个温馨的餐厅里,一张圆桌居于中心位置,当亲朋好友围坐此中,分享美食与欢笑,暖色调柔和的灯光营造出一种温馨。空间中天然的木纹肌理,仿佛在诉说着岁月静好,为整个空间增添了一份自然与质朴,惬意的氛围。
In this cozy restaurant, a round table sits in the center, where family and friends gather to share delicious food and laughter. The warm and soft lighting creates a cozy atmosphere. The natural wood grain texture in the space seems to narrate the peaceful passage of time, adding a natural and rustic atmosphere to the entire space.
卧室
BEDROOM
—
走进卧室,简约而温馨的气息扑面而来。暖色调如同轻柔的怀抱,将整个空间温柔包裹。木地板散发着自然的韵味和质感,细腻的纹理仿佛在讲述着岁月的故事。设计上没有过多繁杂的装饰,一切都恰到好处。一张舒适的床,搭配着柔软的床品,让人迫不及待想要投入它的怀抱。
Entering the bedroom, a simple yet warm atmosphere fills the air. The warm color scheme is like a gentle embrace, gently enveloping the entire space. The wooden floor exudes a natural charm and texture, with delicate textures that seem to tell the story of time. There are not too many complicated decorations in the design, everything is just right. A comfortable bed, paired with soft bedding, makes people eager to embrace it.
02
PLAN LAYOUT
方案布局
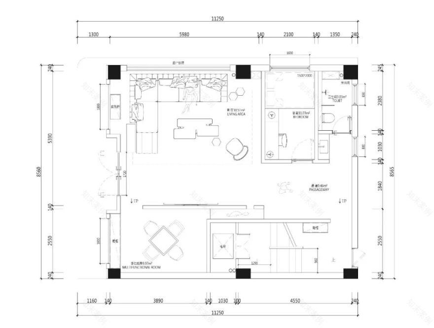
一层平面
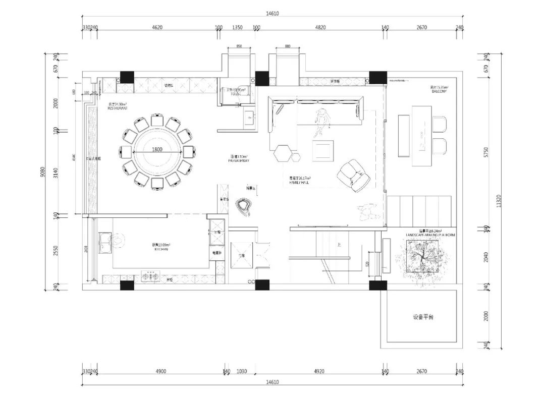
二层平面
三、四层平面
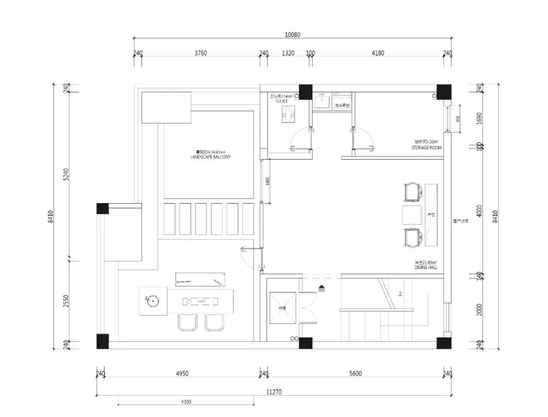
五层平面
-项目名称-
隐奢之所
-项目地址-
广东汕头
-项目面积-
506㎡
-主案设计-
邢安彪
-参与设计-
谢宝珍、张辉
-
文案编辑
-
林琦
03
PLAN LAYOUT
关于我们
DESIGNER
郭亨彬
轩宇设计创始人&设计总监
TEAM
主创设计团队
· 谢宝珍
· 张辉
· 林琦 · 邢安彪
BRAND VISION
我们的室内设计,在寻找空间中的平衡,需要将人与空间人与自然之间的内在联系通过设计进一步的串联和升华,无论走到空间的任何角落,都可以感受到空间带给我们的启发,细节处材料的纹理,艺术装置的点缀,自然的融入都赋予每个空间曼妙的灵动,引导居住者衍生出一种真挚的艺术生活态度。
郭亨彬 I 轩宇设计
地址:广东省汕头市华润海湾中心置地公馆南塔2栋1702
■
LEARN MORE
了解更多
轩宇设计 I 至简 — 海岸名居158m²
轩宇设计 I 和煦之域 — 联泰时代中心公寓112m²
轩宇设计 I 以简驭繁 — 东泰新城112㎡
轩宇设计 I 冬日暖屋 — Loft小公寓设计
轩宇设计 I 极简时刻 — 御海尚品125㎡
轩宇设计 I 理想中家的模样
客服
消息
收藏
下载
最近





























