查看完整案例

收藏

下载
▲国酒茅台广场方案介绍视频
贵州茅台酒
作为我国的非物质文化遗产,其古法酿造的技艺秉承近百年而不变,其传承创新的思想持重百代而不衰。
步入当世,茅台需要
一座丰碑式建筑
,
一座上能踏云飞天,下可聚源落青的建筑
来树立中国匠人精神的典范。
中国建筑标准设计研究院戴泽钧工作室用七年时间,克服了许多像用地红线改变这样的重大调整环节后,坚守初心,最终获得方案报规通过,开工在即!
▲
玉琮之樽盛玉液 曲酒流觞见仙境
国酒茅台广场方案总平面图
承天蕴地 臻
文化品质之巅丨设计理念
茅台
——是水,又是火;似人间,又似仙境;是当下的,又是历史的;是物化的,又是文化的;是流淌着思想和情怀的液体,是蕴含了形神相融与和谐之美的佳酿,是东方玉液之樽。
有诗云——
玉琮之樽盛玉液,曲酒流觞见仙境
。酒樽承载了中华民族博大的文化与历史、“玉琮”以礼沟通天地之神器。玉琮之樽,上承瑶池琼浆甘霖,下润万千青山绿水,分段层叠若梵塔密檐,既体现了中国传统建筑与文化,又彰显了茅台绝世风华,似一曲豪迈热烈与醇香婉转相合的史诗。
“茅台樽”集酒文化传承、贵州地域特色当代化、中国传统气质写意于一体,将成为如茅台琼浆玉液般的城市地标。
▲设计理念
设计构思——玉液之
樽
▲
实景融入效果图
民居聚落
是黔山贵水的自然延伸,是文化传承,是传统美学的物化演绎,是梦中故乡的景象,也是未来贵州的根基。
现代的商业“酒镇”,
层层退台
是多彩贵州的
山水梯田
也是依山就势的“仁怀”民居聚落,一间间酒铺,一道道酒巷游于其中、其间、酒香四溢,好似人间仙境。
设计构思——酒镇酒巷
七栋超高层住宅环绕景观水体展开,通过合理控制建筑朝向角度,最大限度加大建筑间距,实现了城市视野的通透性;建筑高度错落有致,形成观山湖景观视框,使观山湖景真正“入画”。
▲
住宅景观资源分析
▲
实景融入效果图
人,诗意地栖居在这片大地上。
西方的伊甸园、伊斯兰世界的天国花园,中华先民梦想的“仙境”。本案天香云居是琼楼直达苍穹,又是红尘归于安宁。景观如飞天舞动飘带,又如兰亭诗会流觞曲水,营造行云流水般飘逸洒脱的灵韵,彰显中国人的浪漫出尘,超凡豁达的精神境界。
砥兵砺伍 淬精益求精
之艺丨设计历程
时间回到2012年7月5号,工作室开始进行茅台项目的投标工作,一如既往地将设计与研究并重,从了解历史,阅读资料开始,接着是2~3天一轮的畅想、构思方案过程。
期间大家思如泉涌,不断推陈出新,不断建立新的设计逻辑同时更新深化理念。方案于2012年9月9号开标,工作室“茅台樽”方案实至名归,方案中标!中标后,设计像陷入“魔咒”一样进入漫长的修改期,
7年
时间,茅台共经历
28轮
方案调整,方案数量达
60个
之多。
▲
2012年国酒茅台广场项目评标现场
—— 设计历程回顾 ——
请 横 屏 观 看
时和岁稔 筑自主创新之路丨项目地位
在中国城市化快速发展的今天,摩天大楼扮演着极其重要的角色,通过它们,很多城市吹响了快速发展的号角。
截至2018年,我们见证着近百座200米以上的建筑亮相中国大地,中国的超高层建设占全世界6成以上,但是这辉煌的建筑设计方案,几乎全部来源于境外设计机构!
例如上海中心大厦是美国Gensler建筑设计事务设计;平安金融中心、广州周大福金融中心和上海环球金融中心是由美国KPF建筑师事务所设计;香港环球金融中心、南京紫峰大厦是由美国SOM建筑事务所设计;京基100则是由英国TFP和ARUP设计,广州国际金融中心由英国威尔森·艾尔建筑师事务所设计。
所与之相反的是,
茅台樽是国内设计机构完全自主原创的方案,方案既体现建筑的时代精神,又反映了地域文化与企业特点。
▲
中国超高层建筑排名
▲
实景融入效果图
设计分析丨场地与策略
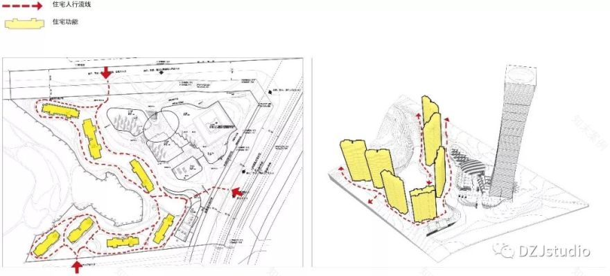
设计分析丨总平面分析
▲
住宅人行流线
▲
商业动线分析
▲车行流线分析
▲
消防流线分析
▲
主塔楼幕墙设计
设计人员
设计主持、设计主创:
戴泽钧
建筑设计:
林琳 顾群 黄芳 王宁 高明 王立明 李可 时东宁 金凯 王海宁 董国升 李熙 邵浩然 孙阳 王晓朦 董超 余振江 陈柏琳 冯方娜
结构设计:
郁银泉 蒋航军 刘国友 肖明 邢万里 刘建飞 胡松 蒋安维 卜凡杰 任姗 徐晓童 韩文龙 任沛琪 丁井臻 杨赟
给水排水:
古晏 曾涌涛 李晓峰 王新发 唐启红 秦云杰
暖通设计:
梁琳 渠谦 卫军锋 张少良 董巧慧 赵兴 张显军 马步洋 温旭怡
电气电讯:
宋晓梅 刘银玲 刘霄 霍伟亮 李琼 白志艳 李鑫亮 何文帅 吕佳昊 韩广贺
《建筑师》杂志由中国建筑出版传媒有限公司(原中国建筑工业出版社)主办
建筑师
投稿方式:登录系统
进行在线投稿
(
)
杂志订阅:邮局统一邮发代号82-608
客服
消息
收藏
下载
最近



























