查看完整案例

收藏

下载
点我获取专属装修报价
···
每个人心中都有一个梦,关乎着自然、清幽、返璞、无忧的唯美之境 ,推开窗户,淡淡的土香飘进丹田,门外玉竹上的露珠摇曳着,轻盈地沁入大地,一道光、一壶茶、一卷书,宁静了半生。
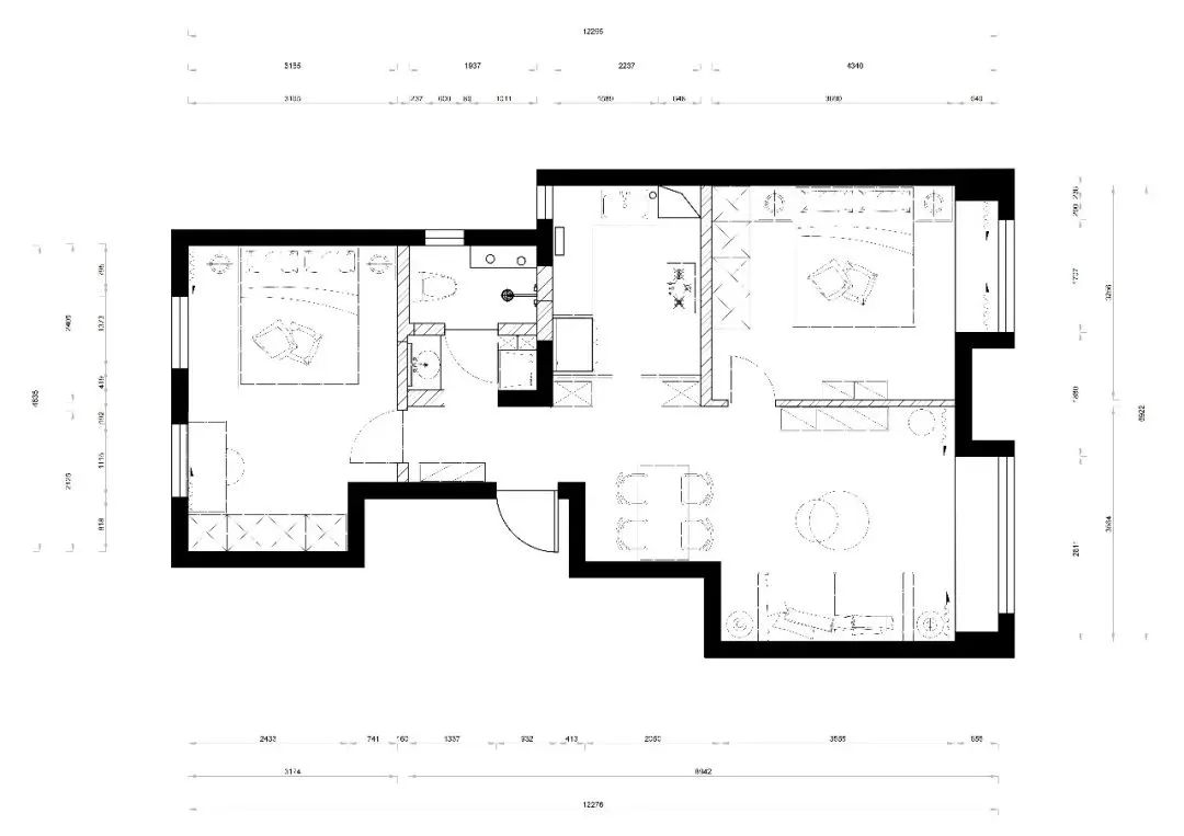
户型
户型分析:
1、优点:
南北通透,明厨明卫,家中所有空间的采光和通风条件非常优良,后期居住也相对舒适很多,同时内部没有太多的承重柱或者墙体,后台改造较容易
。
2、缺点:原有的
厨房空间略显局促,不足以满足现在的厨房使用功能,另外北边的两个卧室空间都各自很小,使用率不太高,不如合并起来实用。
客 厅
原来大
平层也有新中式的容身之地!背景墙舍弃标配大白墙,而是选择
利用充满中式韵味的木栅栏
,既不会显得繁杂,也不会过于张扬,反而给人一种若隐若现的神秘质感
。
同时家具饰品也都是按照中式常有的材质和色调来搭配,什么布艺、棉麻、胡桃木、陶瓷等,柔和温润,自然质朴,有效避免视觉上带来的厚重感。
红豆生南国,春来发几枝;愿君多采撷,此物最相思。小小的一支红豆不仅是装饰,更是一份喜爱与寄托。
文化元素并非生搬硬套,而是讲究将意境融合于空间与生活之中,电视背景墙采用岩板与石材相结合,新颖独特,纹理清晰,无论站在家中哪个角度看过去,都有给人一种不一样的意境,移步一景,这恐怕是设计的最高境界与初衷。
餐 厅
餐厅的设计也非常淡雅,就单凭这一幅色彩丰富的圆形挂画,莫兰迪基调,柔和素净,与编藤餐椅、岩板餐桌相互映衬,宛若是从画里照搬出来一样,美极了。
厨 房
就连厨房也都被新中式所渗入,浅褐色纹理墙砖搭配浅灰色烤漆橱柜,精致优雅,耐看时尚,再搭配百叶窗,方便操作还能掌控光线的角度,提升生活的舒适度与协调性。
卧 室
卧室运用有节制、有温度的细节元素着笔,中式风格的主要元素离不开山水的贯穿,设计师利用这些并巧妙地将中式韵味和现代感重新组合,隐去传统中式繁杂的设计表现,用减法来表达东方元素。
客服
消息
收藏
下载
最近



















