查看完整案例

收藏

下载
Project Name/项目名称:壹成中心
Decorative Style/装修风格:现代意式风格
Designer/设计师:王婉林
Area/面积:130㎡
▲
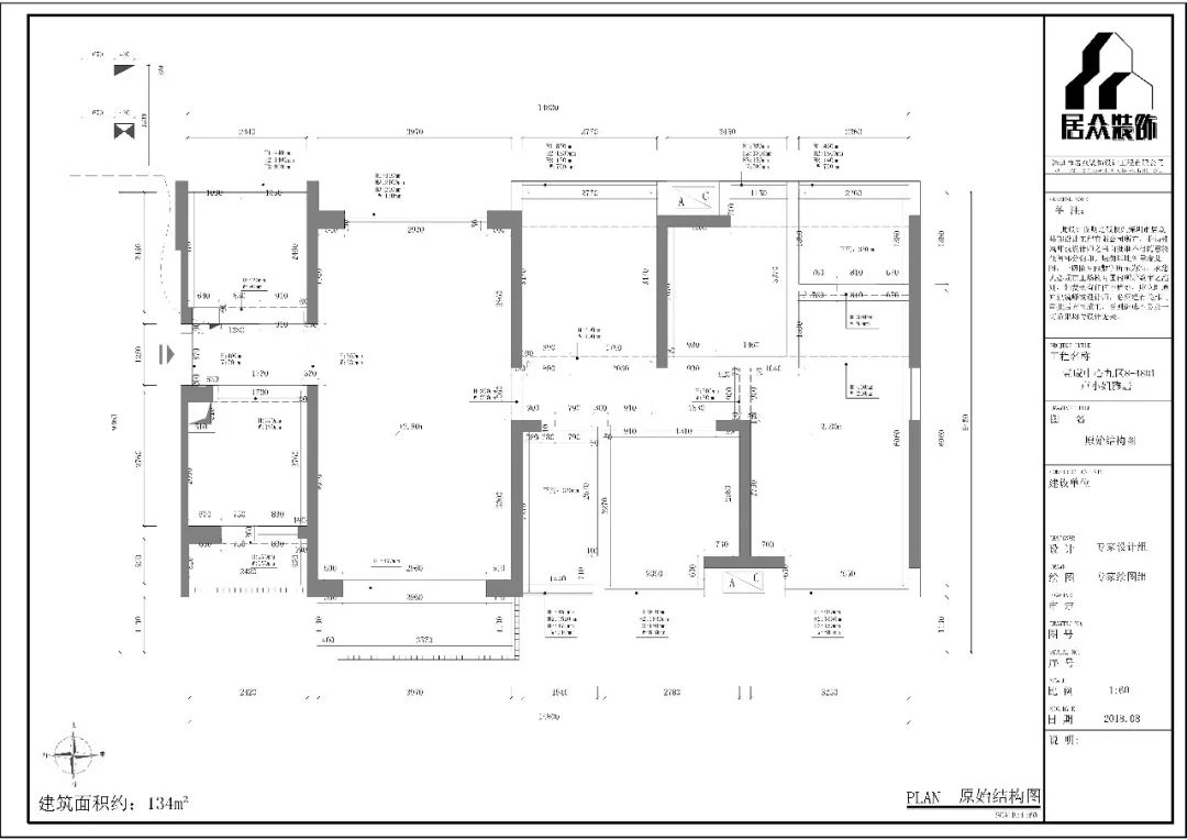
原始结构图
本案户型面积130㎡,平层户型。业主是一对年轻夫妇,原先业主已经找过多家公司进行了解,奈何平面效果不佳,终被王工细腻的心思、专业的技能所折服。原户型部分结构不合理,导致私密性不佳,居住不适。设计师王工重新对整个户型进行布置,令其更加合理化,业主一家对其
方案
甚是满意!
▲
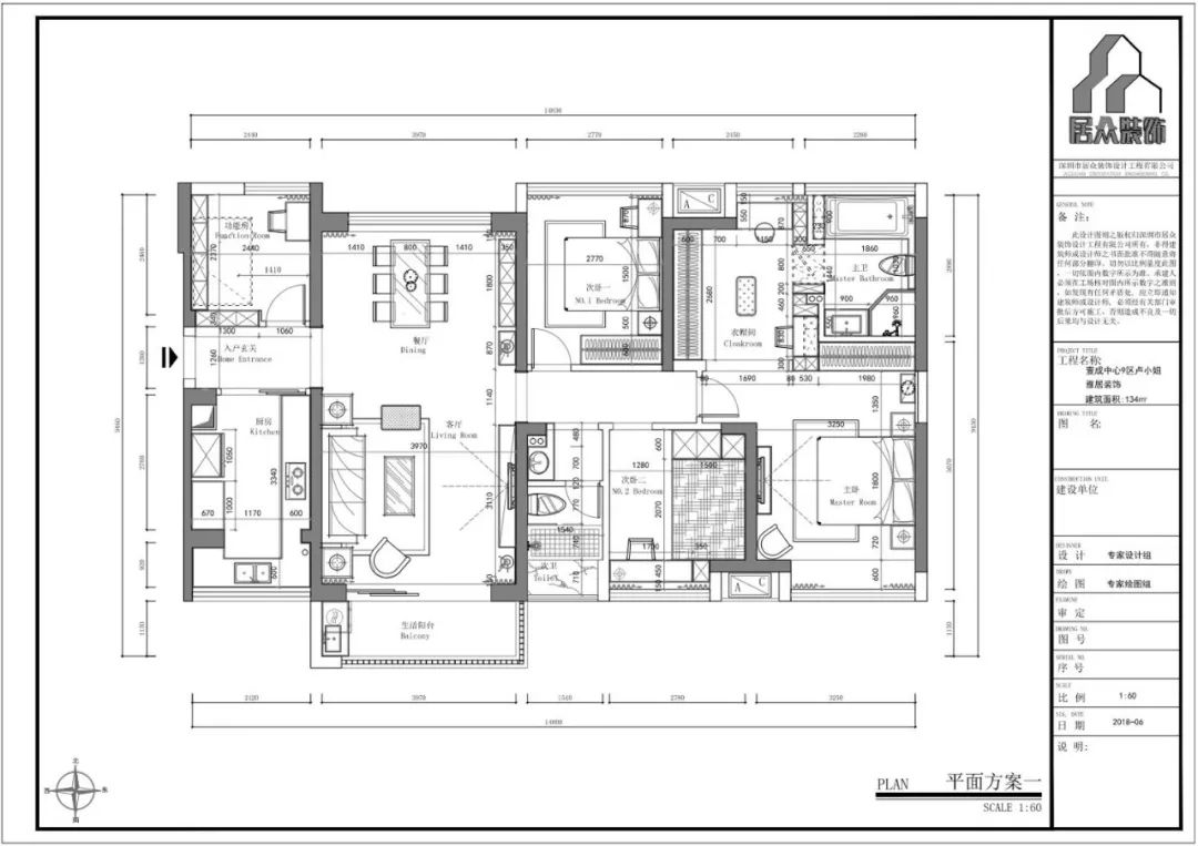
平面布置
图
有一种风格,
装修上精致线条凸显空间感,色调上黑白咖灰配出格调感,
它的简约摩登,与舒适高雅完美融合,这样的装修风格,称之为意式风!
本案业主是非常注重生活品质的人,表示对于居住的房子不停留在基本居住的状态,而是爱好型的,更多的表现于视觉上的极佳舒服感受!
王工在与业主的交流沟通中,发现业主对房子的装修希望是独特、温馨、线条感,有档次的,为设计出更适合业主居住的家居体验,最终确定装修风格为现代意式风!
▲
玄关
原本的玄关进门之处并没有过多的装饰,王工特意以视觉效果为佳,在酒柜之处设计一处端景,以半则人物塑像为搭配,艺术气息浓厚不已。
▲
客厅
客厅以大面积胡桃木作为主色调,配以香槟灰,跳跃的棕黄色软配作为点缀,让空间的调性中增添一丝都市、轻奢的视觉效果。点线面,深中浅,硬朗的黑镜+不锈钢金条,简洁不对称的线条,去繁从简,让人不由自主地停下来思考。
不规则图案的地砖之间互相映衬,
砖与砖之间嵌入金属条,两者的
搭配优雅中不乏灵动,怀旧中又不乏时尚,一切都是那么纯粹,从中透露出些许深邃。
▲
餐厅
餐厅位于客厅的左侧,餐厅位于客厅的左侧,其中餐桌的做工精细,驼色软垫与黑色桌脚相互配合,女业主喜欢深色调,王工则把酒柜的颜色改成深色系,中间镂空区采用爵士白突破单一深色的沉闷,打造出独特的就餐氛围。
▲
主卧
本身的卧室进门会看到床头柜,私密性及其不佳,王工巧妙的在床头柜一侧设计一处端景,美观性与私密性都得到提升,业主甚是满意!
卧室的设计手法遵循独特、简洁,不规则的线条和色彩去呈现,通过材质的质感打造,浅棕色的背景墙,深棕色的木地板,大量留白的墙面,湛蓝色的窗帘,都在表达简单而又精致的生活。
▲
衣帽间
大概对每一位女性来说,拥有着自己专属的衣帽间,那都是幸福不已的,女业主表示
每当购物之后,衣服饰品都能整齐条理地摆放出来,这不仅是个时尚得体的衣帽间,也是一种精致生活的完美体现。
梳妆台的位置位于阳光最为明亮的位置,便于女业主梳妆打扮,右侧的格子则是用于摆放瓶瓶罐罐的化妆品,看起来多而不杂乱。
为了让卫生间的门更加美观,王工把卫生间门与柜体设计成一体,形成隐形的状态,一般情况下都不会看的出来这是一道通往主卫的门。
▲
儿童房
男孩房空间足够,硬装以中性为主,床头搭配天蓝色创意图案墙布,硬装基调整体统一,通过软配来呈现不同年龄阶段的情感表达,在空间中加入点缀,强烈的色彩对比充满活力,整个空间在色彩的张力上稳重与活泼共存。
▲
多功能房
多功能房将来作为保姆房,以榻榻米式为床具,一来
整体感强,二来收纳性较佳,它的
表现手法与整个风格相似,在色彩上倾向统一,
充分搭配平衡整个卧室,给人温馨自然之感。
一片落叶诠释一生追求的完美归属,精致黑白灰的色彩象征着一种生活态度,生活的真谛不在于奢华的享受,而在于生活的舒心和内心的平静。
王工表示:
在设计的过程中,设计师所要做的是把业主的生活习惯与社会阅历所沉淀出的气质,经过设计师后期的加工设计,给客户定制一个专属于他的家!
客服
消息
收藏
下载
最近













