查看完整案例

收藏

下载
HLO DESIGN
SALES CENTER / MODEL ROOM / HOTELS / VILLA / OFFICE
京基御景珑庭售楼处
京基御景珑庭售楼处位于深圳宝安区沙井西环路与新沙路交汇处
,
为京基地产沙井沙一村旧改项目。
设计师沿袭京基地产生态景区、人与自然和谐共处的设计理念,以”简洁、雅致”为出发点,在设计中,设计师诠释都市气质,接轨当代艺术,提取海水的纹样与色彩,将人文与自然完美融合,展现售楼中心的简约雅致的气质之美。
▼
前厅
简洁大气的前厅以独特的气质吸引你的驻足,设计以多层线条叠加且排列有序的灯带分布于天花造型之上,为空间构建了丰富灵动的节奏。金属与水晶穿连起大型的网状吊灯,工艺精细,质感轻盈,时而跳跃的光亮,流溢出恰到好处的美学情趣。
艺术不是堆砌所有美好的,而是一切都恰到好处,和谐之下无一处多余。设计师给艺术做减法,删除所有冗杂,留下唯一能解读的作品,让人领悟专注的美丽。
▼
洽谈区
穿过通道来到洽谈区,这里呈现了艺术的景深和城市的时空梦境,一排排屹立的书架营造售楼处的端庄序列感和层次感,徐徐地为你开启了都市新气质之门。
▼
深度洽谈区
光是最自然的设计师,它透过玻璃窗,落在墙上、沙发上,茶几的饰品上,生成静谧的光景。一个好的空间,可以让人看待世界的印象变得诗意。当身处繁华都市,简单明快的纯净空间让阳光更加泌润心灵。
简雅格调的敞开式VIP洽谈区,颀长的沙发,艺术家的黑白抽象画,身旁淡蓝色简约的单人椅,很好的诠释了现代都市人的审美写照。
▼
水吧区
自然的气息渗透每一个角落里,零星
书籍、
绿植、艺术摆饰点缀着装饰柜,以点、线构筑面的意象,愈是简单,愈是呼唤起
人与自然的灵魂共鸣。设计师以几何元素凝聚空间,传达美学的生活态度。
▼
其他区域
HLO DESIGN沿用一贯简单大气的设计语言,在京基售楼处构造简单干净的空间,给充满自由气息的海滨城市深圳,倾力孵化出一个格调简雅而富含艺术色彩的生活体验馆。人在匆忙生活状态中,可以停停脚步,在这样无垠而丰盈的空间意境里,思索生活,感知自由。
▼
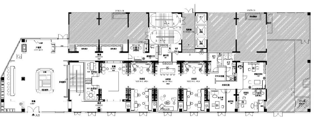
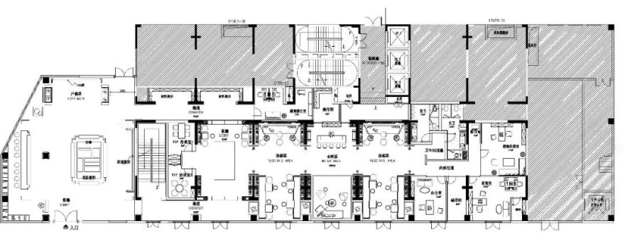
P l a n 平 面 图
▼项目介绍 Project Introduction
项目地点:深圳市宝安区沙井西环路与新沙路交汇处
客户名称:深圳市京基房地产股份有限公司
专案性质:售楼处
设计面积:1100㎡
设计时间:2017年6月
竣工时间:2018年8月
设计团队
Design Team
软装设计:江磊、李淑芳、戴郑妮
摄 影:
本末堂
逸
| 尚 | 出 | 品
逸尚呈现 | 纯真梦幻 金光华亲子餐厅
【归隐云游】| 许昌正商书香华府售楼处
[现代] 享悦生活 | 广州西关海售楼处
【智慧东方】| 鸿荣源集团总部办公室陈设
【深圳市逸尚东方室内设计有限公司】
Shenzhen Orientation Interior Design Co
. Ltd
设计服务范围:
售楼处、样板间、办公环境空间、豪华会所、私家别墅、酒店
Design
Service
s: sales office,
sample room,
office space, high-end club, private villa, hotel
公司地址:深圳市福田保税区槟榔路
2号伟光联大厦办公区四层
Address:
Floor 4, Weiguanglian Logistics Building, No, 2 Binlang Road, Futian Free Trade Zone, Shenzhen.
TEL:0755-23958165
逸尚东方 室内设计
Orientalicon Interior Design
设计改变生活 设计富足人心
 ̄ ̄ ̄ ̄ ̄ ̄ ̄ ̄ ̄ ̄ ̄
See You
客服
消息
收藏
下载
最近
































