查看完整案例

收藏

下载
春生的房子并不大,但对未来美好的憧憬很大,一对年轻夫妇,偶来小住的家人,以及两只小狗。还喜欢养花,养鱼,一两年还可能增加小宝宝……如何在小空间里,让生命的激情如春天般生发?
使用面积:40平米
项目位置:北京朝阳区小黄庄
装修费用:30万元
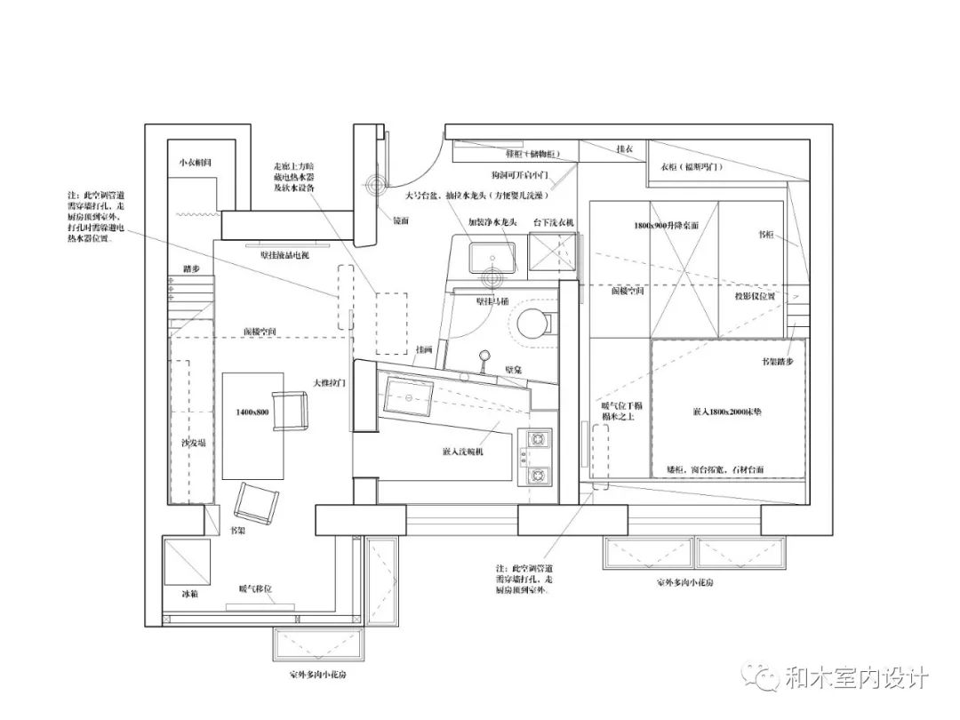
原户型图
原有户型,虽然两居,但每一个空间都小,且利用率很低
橙色为拆除部分。
规划后的隔断布置图,人流路线更加顺畅。
卫生间洗手台和门厅柜结合,不但实现了与淋浴的干湿分离,也方便入户洗手,还为将来的小宝宝准备了距离卧室最近的洗澡台面。厨卫墙面的倾斜处理,增加了动感,活跃了空间,使厨房的有限面积得以最大化利用。主人卧室的榻榻米地台,不但有超级储物功能,还有嵌入式的大床垫、有供俩人学习用的1800x900 大升降桌、以及暗藏投影幕布。
将之前的平顶拆除后,还原了原结构的坡顶,额外增加了阁楼空间。图中左侧的主卧阁楼作为衣帽间的补充,右侧次卧阁楼面积较大,成为家人偶尔来小住的客房。对大家来说也算是意外之喜。
玄关
迎门一片春意盎然。
起居及餐厅
洞口拓宽的次卧,变成开阔敞亮的起居室兼餐厅,阁楼可留宿。
右侧弧形洞口内是客用小衣帽间。
沉静的雾蓝色。
超大推拉门既是厨房油烟的遮挡,也是客房的户门。
餐桌边的视角。
V字型厨房,进口处可容纳两人宽松协作,灶台操作时一人足矣。
闲散慵懒的午后,阳光让橡木桌椅都变得柔软。
它是米粒儿,已经8岁了。
可留宿阁楼
小楼梯也要精致处理,踏步特意做锐角造型,增加踏板的宽度。
每一级踏步都配置了感应地脚灯。
阁楼客房。
多功能门厅
洗手台面和厨房水槽都分别安装了直饮水龙头,方便饮水,不必绕道厨房。还安装了超大台下盆,便于未来的宝宝洗澡。
主卧入口采用轻盈的樟子推拉门,门下有狗狗的小窝,左侧是鞋柜,镂空柜门更便于通风。
一入门厅,不由自主地会被天花吸引,彩色壁画和水晶灯,使人置身于热带斑驳的光影中,豁然开朗……
镜里镜外,虚实幻化。
门厅穿衣镜。
主卧
主卧虽小,亦容得下一黛远山。
雾霭青岚。
可升降桌面,随意调节。不仅莺莺燕燕,也有书香茶味。
重点改造
左图正在拆除主卧洞口,右图进行顶面保温。
左图为次卧阁楼搭建,右图为厨房洞口的扩建。
左图是次卧洞口的拆除,右图为卫生间及厨房的搭建。
木结构施工过程中。
陈大为
2017年度国际空间设计大奖 艾特奖 最佳别墅设计入围奖
2016德国IF国际设计奖 室内设计奖
2015金堂奖 年度优秀住宅公寓设计奖
2015年度国际空间设计大奖 艾特奖 最佳别墅设计入围奖
2015年度国际空间设计大奖 艾特奖 最佳公寓设计入围奖
2014金堂奖 年度优秀办公空间设计奖
2014入围双面神中法国际设计交流展
2014中国国际室内设计联合会 年度十大资深设计师奖
客服
消息
收藏
下载
最近


































