查看完整案例

收藏

下载
点我获取专属装修报价
01.
「写在前面」
这栋430㎡的住宅以“慢生活,品味生活”为核心理念,采用现代新中式风格装修,将空间布局和材料选择置于首要位置,力求打造出一个别具一格的居家环境。设计元素方面,设计师融合了传统中式和现代元素,营造出时尚又不失个性的空间。色彩搭配上,采用了灰、木、米色等素雅色调,为空间增添了温馨的氛围,令人沉浸其中不愿离去。
楼盘 Address:颐和江南
主案 Designer:任周府
面积 Area:430平
风格 Style:现代中式
出品 Company:东易日盛
02.
「
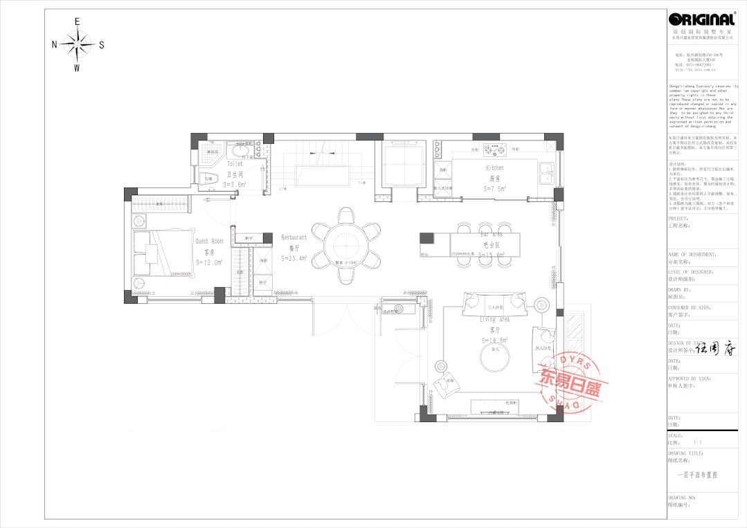
户型规划」
△地上三层平面户型图
△地下两层平面户型图
设计方案
* 案例概况:本案设计为430㎡颐和江南别墅,地上三层,地下两层,设计师充分利用场地特点,注重家庭功能需求,打造出安全、舒适、美观、环保的现代中式别墅。
* 户型调整:根据居者的需求和生活方式,本案对户型进行了巧妙调整。一楼为客厅、餐厅和厨房,并增加了一个客房;二楼为起居室
和家庭成员休憩空间,设有衣帽间和卫生间;
三楼
为主卧和露台,主卧带独立卫生间和阳台;地下两层为娱乐空间,包括挑空影音室、茶室、儿童玩耍区、健身区和休息区。
* 设计亮点:建筑结合中式风格,采用现代手法彰显了其独特的气质,室内设计注重细节,用大量的中式元素来表现现代主题,来营造出温馨雅致的氛围,挑空设计紧扣现代元素,凸显出别墅的观赏性。
03.
「设计效果」
高雅的现代中式客厅里,文艺气息深深。水吧台设计精美,流畅的线条凸显了现代的美感。U型厨房被悄然融合进了这个空间,使烹饪和用餐更加便利。餐厅圆弧线吊顶和中式套方锦花格窗则传递出深厚的文化底蕴和历史气息。每一处细节都经过精心的设计和打磨,融合现代与传统,体现了高品质的生活态度。
主卧书页型吊顶以其别致的造型与质感,为整个房间增添了一份文化气息。鸟语花香壁画则将自然的元素融入了室内空间,让人仿佛能够闻到鲜花的芳香。配以精美的壁灯,让整个房间显得更加温馨舒适。木地板和套方锦花格窗
打造出宁静、舒适的氛围,同时又不失时尚的气息。
清新儿童房及干湿分离卫生间,再次彰显了设计师对于人居环境的关注和细节呵护。以此,打造出一份专业得体、文艺又不失现代感的卧室设计。
这里,玄关不再是简单的过渡区域,它成为了家居设计的一部分。长虹玻璃的运用,让光线流淌不息,温暖而舒适。悬浮式石板台面与镂空设计的巧妙搭配,呈现现代新中式的独特魅力。绿植的点缀,虽不张扬却显得恰到好处。步入玄关,仿佛穿过时空隧道,寻找家的真正所在。
冷静而又梦幻的空间,现代新中式风格与时尚元素完美融合,营造出独具特色的挑空影音室。水晶巨型吊灯悬挂在高空,璀璨夺目,令人陶醉。壁炉、木饰面、落地灯和圆弧灰色沙发相互呼应,激发视觉共鸣。线性灯和天窗下的休闲区则让空间带有更多活力。这是一个光影流转的场所,犹如一道过眼烟云,充满了浪漫与梦幻。
空气中弥散着淡淡茶香,仿佛带着一股令人陶醉的气息。烛光灯影舞动,墙角处的山形状灯具悄然点亮,勾勒出幽深静谧的氛围。木质桌椅,书法字画,展示柜中的茶坛茶杯,无声的见证着品茗的时光。
任周府|东易日盛墅装专家
从业经验:14年
所在设计部:原创国
际别墅设计中心
设计部地址:杭州市江干区宏程国际大厦
毕业于浙江工商大学环境艺术设计
进修于米兰理工大学设计学院
设计理念:为创意而生,为灵感而存,设
计出一切您对家的幻想。我的妙笔生花,只为满足您
想要的家。
设计案例:
別墅排屋:宝业四季园. 天地墅园
.
龙湖原著
.
大华西溪等.
公寓:金地天逸
.
开元广场
.
蓝爵国际
.
美哉美城
.
堤香等.
荣获奖项:
2015中国(杭州)室内设计总评榜年度最佳作品.
2009年被评为中国注册高级室内设计师.
2010年亚太空间设计年度评选“新锐设计师”.
2011年“红锦奖"年度室内设计作品奖.
2012年筑巢奖第五届中国国际空间环境艺术设计大赛公寓类优秀作品奖
.
2013年搜狐年度浙江十大设计师
.
2014年 idea-Tops国际空间设计大奖(艾特奖)最佳公寓奖
.
2015年中国(浙江)青年室内设计奖年度住宅公寓空间设计奖
.
2015年中国(杭州)室内设计总评榜年度十佳住宅公寓
.
2016年“金堂奖"年度优秀别墅空间
.
2017年“六艺奖"居住空间类金奖
.
2017年I-doing Aware国际设计大奖(艾鼎奖)住宅空间类金奖
.
2018年金外滩奖"年度最佳居住空间奖”
.
2018年腾讯家居年度设计时尚盛典金腾奖Top100
.
客服
消息
收藏
下载
最近

























