查看完整案例

收藏

下载
“
潮流翻涌更迭,时代沧桑变迁,家的精神内核始
终如一。
The tide surges and changes, the vicissitudes of the times change, and the spiritual core of home remains unchanged.
”
光影流转
LIVING ROOM
初进家门,浅色调地面铺陈出一室温柔,留白与简约的纹理交织,色彩跳跃的装饰如同静待岁月雕琢的璞玉,随着生活的点滴积累,逐渐绽放出独特的光彩。
As soon as I entered the house, the light toned floor laid out a gentle atmosphere in the room, interweaving white space and simple textures. The colorful decorations were like precious jade waiting for time to carve, gradually blooming with unique brilliance as life accumulates.
储物柜在设计师的匠心独运下,呈现出若隐若现的凹凸美感,为空间美学增添了圆满的韵味。悬浮感的设计,如同轻盈的羽翼,拂去了深色带来的沉闷,简约中透露出不凡的美感。每一个细节,都经过精心雕琢,仿佛在诉说着对品质生活的无尽追求。
Under the designer's ingenuity, the storage cabinet presents a subtle and concave aesthetic, adding a perfect charm to the spatial aesthetics. The suspended design, like light wings, brushes away the dullness brought by dark colors, revealing extraordinary beauty in simplicity. Every detail has been carefully crafted, as if telling the endless pursuit of a quality life.
在这光影流转间,家,温暖而轻柔,在静谧中透露着无限生机,简约韵致,轻浅如梦。黑色沙发与红色单椅,在岁月的深处沉淀,与温柔的空间色调相映成趣,心底缓缓流淌。
In this interplay of light and shadow, home is warm and gentle, exuding infinite vitality in tranquility, simple and elegant, light and light like a dream. The black sofa and red single chair, sedimented in the depths of time, complement the gentle color tone of the space, and flow slowly in the heart.
自由之风
KITCHEN&DINING ROOM
入门转折处是餐厅区域,餐岛一体的形式,满足主人日常就餐和宴客需求;黑白的对比色,与客厅色彩呼应,串联,成为空间最优搭配。
The turning point at the entrance is the restaurant area, where the dining island is integrated to meet the daily dining and banquet needs of the host; The contrasting black and white colors complement the color scheme of the living room, creating the perfect combination for the space.
半开放式厨房既保留了原有的独立性,若有若无的隔断也使之成为客厅的一部分,让客厅、餐厅、厨房显得更加美观,大幅镜面的设计,如同空间的魔法,进一步拓宽了视觉的边界。
The semi open kitchen retains its original independence, and the subtle partitions also make it a part of the living room, making the living room, dining room, and kitchen look more beautiful. The large mirror design is like the magic of space, further expanding the visual boundaries.
自由之风徐徐从窗外吹来,越过一览无余的餐厅,回旋弥散在厨房的角落,形成回流。
The wind of freedom blows slowly from the window, passing over the panoramic restaurant and swirling in the corners of the kitchen, forming a reflux.
阅读一角
READING AREA
阳光洒落,木制肌理蕴藏细微变化的自然对比度,似以诗意的情绪语言,与时间对话。
The sunlight falls, and the natural contrast of subtle changes in the wooden texture seems to be a poetic emotional language, conversing with time.
下沉式的设计,以高低的分差手法隔离空间,打破了普通空间的空旷及视觉单一感,无论是在此办公还是阅读,都能有更沉浸式的体验。
The sunken design uses a high-low differentiation technique to isolate the space, breaking the emptiness and visual singularity of ordinary spaces. Whether working or reading here, there can be a more immersive experience.
心灵回归
BEDROOM
卧室,如同心灵的归宿,让人在疲惫与喧嚣中寻得一份宁静与舒适,让自我找到落脚点。
The bedroom is like a home for the soul, allowing people to find peace and comfort amidst exhaustion and noise, and finding a foothold for themselves.
透明的卫生间,赋予了空间无与伦比的通透感,视觉上极大地延伸了室内界限,以其独具匠心的美学格调,轻轻撩拨着人们的视觉神经。
The transparent bathroom endows the space with an unparalleled sense of transparency, visually extending the boundaries of the interior and gently teasing people's visual nerves with its unique aesthetic style.
透明的卫生间,赋予了空间无与伦比的通透感,视觉上极大地延伸了室内界限,以其独具匠心的美学格调,轻轻撩拨着人们的视觉神经。
The transparent bathroom endows the space with an unparalleled sense of transparency, visually extending the boundaries of the interior and gently teasing people's visual nerves with its unique aesthetic style.
Project Information
项目信息
项目名称 | 天空院子 · 浪漫讴歌
项目地址 | 浙江台州椒江
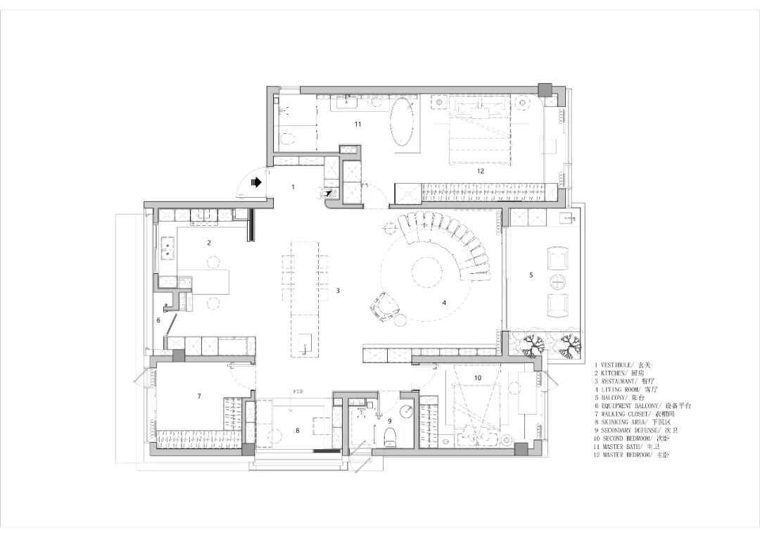
项目面积 | 165㎡
设计公司 | 叶设计&大树精造
总设计师 | 叶祥宝
设计团队 | 王聪颖、王小永
软装设计 | 张笑微、游琳
商务统筹
| 顾培培
品牌支持 |
MWH曼好家全屋定制、
摩根全屋智能·moorgen
、mirroni米罗尼地板、Laminam拉米娜进口岩板、本杰明涂料、大金品诚空调、
博世家电、
LIEBHERR
项目摄影 | 单行线空间摄影—朴言
叶祥宝
大树精造总经理
叶设计创始人&创意总监
王聪颖
大树精造设计总监
FIND US
客服
消息
收藏
下载
最近
































