查看完整案例

收藏

下载
项目信息
■ 项目地址 | 华发中城荟中央首府
■ 项目面积 | 1
30㎡
■ 项目户型 | 私宅大平层
■ 项目设计 | 武汉得间设计
■ 项目施工 |
武汉得间设计
说在前面:
本案位于江汉区的毛坯房,业主说“
我希望家里是放松的,温暖的,极简的
”。设计师采用一种温暖的自然主义,干净的线条,创造出沐浴在自然光下的温馨空间。空间整体以木色和极简黑白调为主,素朴的用色、纯粹的材质,与开阔的空间,每一处设计细节、每一件家具饰品都向着美好而平静的生活。
///
设计思路
DESIGN IDEAS
///
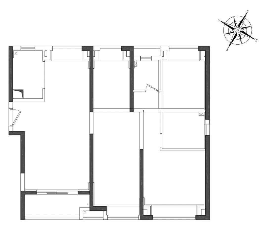
▲ 原始结构图 ▲
▲ 平面设计图 ▲
1:将客厅阳台打通,纳入客厅,原客厅承重墙采用弧形造型去弱化。
2:餐厅改造为开放式厨房,既增加了厨房的面积,并实现了客厅餐一体化,让客厅餐更显宽敞又通透,还增加了互动。
3:主卧将两房改为主卧+浴室+衣帽间的大套房设计,让主卧拥有更大的睡眠空间,同时并满足日常洗漱,收纳,等需求。
LIVING ROOM
客厅
客厅是一个敞开的空间,阳光透过超大开窗洒进室内,通透明净,
摒
弃繁复矫饰 ,空间以黑白+原木碰撞出极简式优雅。落地窗以无拘无束的形态将自然光景引入室内,尽情引入每一缕阳光,圆弧的巧妙运用,利落包裹立面,柔化了空间转角,亦赋予居所些许温情。
阳台打通纳入客厅使得空间视野更加通透,隐藏式收纳柜体的设置,将空间的功能性和审美结合的恰到好处;一侧放置巴塞罗那单椅,当阳光透过罗马帘照射到室内,倚坐在单椅上,享受美好居家惬意时光。
从过道看向客厅,灰色云朵沙发,极简茶几,浅色地毯,无过多色彩,任低饱和色调衬托起居生活的流动情感,任其演绎空间的舒适安逸。
KITCHEN AREA
餐厨区
客餐厅开放式设计,大面积白色从视觉角度再一次拉开了空间的广阔度,
提升区域的通透性与互动性,
同时减弱人与人交流中的干扰杂质。内嵌式大冰箱和烤箱的餐厅功能,让生活更具多元性。餐厅小型
极简餐桌椅,搭配浪漫温情的飞碟吊灯,将柔和沉静的氛围蔓延空间。
客
厅
与过道采用了木饰面+木地板外观形成一个框景,
采用了动静分离的理念,将生活区与休息区尽可能划分开
。卧室
房门与墙面的木饰面统一一体,视觉干净统一。
MASTER BEDROOM
主卧
主卧经由过道进入卧室,酝酿出理想的归属感,素雅天然木饰面,使得空间更加纯粹和宁静,让居者身心在此刻得以放松,赤脚踩在温润的木地板上,感受家的温度。木与白的配色舒适恬静,晕染柔和自然光线,给人岁月静好的感受。
卧室进入衣帽间采用格栅两扇移门,功能与美学的平衡,让空间没有阻碍,流畅通达。
卧室卫生间门口通道的设计,增加了卧室的收纳,并拥有一种包裹感和良好的隐私性,进一步加强了空间相互的流动感。
卫生间的设计,也延续了整体极简的基调。
从主卧步入洗手台右侧为马桶区域,再往前走便是镜柜衣帽间,
这样三个区域就巧妙联动了起来,形成了一个非常规形式的有趣套房。
浅色的墙砖和地面相似的瓷砖,玻璃元素带来轻盈与通透感。
SENIOR'S ROOM
长辈房
长辈房采用素色色调搭配柔和的面料床品,浸润出温和可亲的生活氛围,床底采用声控灯,更好的为了方便父母的居住。
地面使用的是温馨自然的浅色实木地板,悬空木色书桌和收纳柜,
无一不传递着温馨的氛围。
///
装修记录
DECORATION DIARY
///
对于设计这件事
不仅仅是停留在纸笔之间或概念之中
更多是从现实中感受设计带来的真真切切的乐趣与幸福感
〣 水电阶段 〣
〣 油漆阶段 〣
〣 定制主材 〣
〣 手机拍照的花絮 〣
客服
消息
收藏
下载
最近







































