查看完整案例

收藏

下载
点我获取专属装修报价
——
在关于家的众多诠释中,唯一离不开的关键词便是『温暖』,这个词并不是指视觉上的温暖,而是内核蕴藏的人文关怀。
生活在在瞬息千变万化的时代中,海量的信息总是会扰乱人的大脑,人们需要有这样一个空间,与自己的喜好与习惯完全契合,在了解业主客户需求和生活方式后,我们摒弃张扬的色彩和浮夸的造型,
整体风格以现代简约为主,质朴素雅的色调,给人一种心灵宁静的感觉。
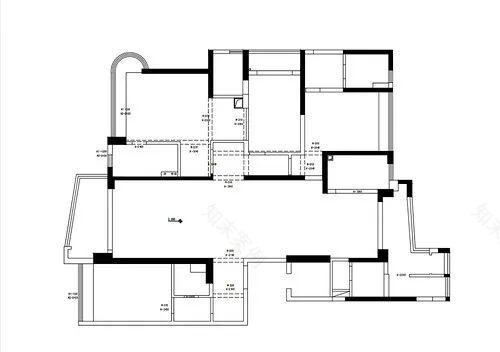
户型改造
# 设计亮点解析:
▷ 将阳台打通,与客厅连接,视觉呈现更加开阔;
▷ 客餐厅一体化设计,餐厅区域设置多种功能区,空间得到最大化利用;
▷ 调整厨房结构布局,丰富功能,提升使用舒适度。
案例品鉴
空间的延展性在打通的阳台后被无限放大,视线可以不受阻隔的到达落地窗外的任意远方,无限的外景视野成为生活的背景板,平凡的日子拥有了温暖闲适的自然滤镜。
客厅整体采用柔和的白色+暖色灯带,营造干净温暖的氛围,电视背景墙也是一面大白墙装饰,干净又耐看。
原始户型的餐厅空间不够宽敞流畅,户型优化过程中选择了敞开式。扩大空间功能的同时,客餐厅一体化的设计,亦更加便捷高效。
雾蓝色的饱和度会比较高,但是它带着张力十足的艺术性在餐厅就位,空间色彩会更有层次感。在活色生香的美食空间,不喧宾夺主却掷地有声的点缀,视觉效果立时便立体起来。
如果生命是一场旅行,睡觉就是让人暂且驻足休整,以便更有心情和体力去看更美的风景。
主卧是业主待的时间比较多的空间之一,在设计时除了考虑艺术感之外,实用性也是最主要的考量范围。浅色系的卧室配置,低饱和色的搭配,简约低调中让人感觉舒适和静谧,让人得到精神和身体的放松。
业主的小女儿还比较小,业主希望女儿的房间可以童真童趣一点,所以在我们采用米色打底,用藕粉色点缀,搭配一些海星、布偶等图案来营造出一个女生都向往的公主房。
业主的大女儿在读小学,为了和小女儿的房间可以有一个统一性,依然是那个白色+粉色的搭配,而大女儿的房间更加简洁,少了一些图案的布置,多了玩偶的收纳柜~
长辈房的设计会素雅一点,只在床头背景刷了一层浅灰色乳胶漆,不会显得太过压抑;利用墙面空间增加了线条的状好似,拉伸了空间的纵横感。
客服
消息
收藏
下载
最近















