查看完整案例

收藏

下载
Big White
Hangzhou . China
喜悦存在于存在之前,是所有创造的原力,你无法创造一栋建筑,除非你充满喜悦
路易斯·康
精装房的蜕变重生
Rebirth of hardbound houses
精装改造项目在当下已成为家装行业的热门议题,如何将千篇一律的精装房融入业主个人特质,同时满足其对舒适感、自由度、设计感以及审美的需求,就是本案要说的故事。
关于本案,设计师钱浙明说
道
:
”
我们没有从“当下流行”,“所谓看起来蛮有档次的风格”出发,对团队自己的设计潜力和空间的可塑性进行了深入的挖掘,努力去打造一个“有点意思”的空间,本案真正开始于“没想到是这个效果,但是挺好”。“
光影
变奏曲
Variations of Light and Shadow
原精装空间
Original hardbound space
△
效果图
Design sketch
△
实景光影呈现
Light and shadow rendering
△
充满雕塑感的进口灯具
Imported lamps full of sculpture
△
开放式客餐厅
Open guest restaurant
△
百叶窗的光影效果
Light and shadow effect of louver
△
可自由摆放的餐车
Dining car that can be placed freely
△
艺术涂料、岩板、金属边组成的背景线条自儿童房一路延伸至客厅,通过材质的层次与质感形成连贯的视觉呈现,在自然流动的格局中,形成整体空间背景的构建与融合。
无论是加深的慵懒沙发,还是进口灯饰和充满着自由美感的女性主义装饰画,亦或是满足阅读与使用等多功能需求的餐车,单品与家具的选择充分从生活的角度出发,在设计感以及舒适度的基础上,寻求审美层面上的更高要求,通过对未来生活场景的构造,进行更为纯粹以及人性化的艺术表达。
阳台景观区
Balcony landscape area
△
设计感十足的家具单品
A piece of furniture with full sense of design
△
日落黄昏时的客厅
The living room at sunset
△
将窗外景观纳入考量,进行室内家具的摆放。百叶窗作为开关,在光影的对流中,加强了室内与室外、人与自然之间的互动。电视背景墙的岩板与厨房岛台岩板形成呼应,藉由块面的线条感调和空间比例关系,舒适的体验与绝佳的视野建构起松弛的生活节奏,让居家的情绪得到彻底放松。
餐厨区的“美食天堂”
"Food Paradise" in the kitchen area
原精装空间
Original hardbound space
△
个性化吧台
Personalized bar counter
△
隐藏式暗门设计
Concealed concealed door
△
原餐厅空间改做吧台,将大理石墩子进行体块切割,吧台以一种更轻盈、更具设计感的姿态,实现功能性的延展与补充。隐藏式玻璃暗门方便自由开合,亦中亦西的状态既保障了空间的通透,又避免了油烟的干扰,以多样化的空间样态去承载生活的联系,在重构的格局中为居者带来可供选择的余地。
原精装空间
Original hardbound space
△
全黑色厨房实景
Black kitchen
△
宽阔的空间尺度
Wide spatial scale
△
黑岩石吧台
Black Rock Bar
△
去除一切无意义的杂质,黑色以不可撼动的时尚感贯穿厨房。设计师在极具当代性的厨房中建立起材质与人的关系,将黑岩石的时尚感与质感扩散开来,实现了一种持久的、现代化的整体美学创新。
在宽绰的空间尺度中进行功能细分,冰箱、蒸烤箱、消毒柜、储藏玻璃器皿与酒饮的玻璃柜足以满足一切关于烹饪饮食的功能化需求,至于全屋净水与软水、吧台上的升降插座等,则是在利落高级的表达之外,从隐性需求角度出发,探寻一种更为健康的、温馨的、便利的人文关怀。
原精装空间
Original hardbound space
△
效果图
Design sketch
△
Cassina餐桌
Cassina table
△
无处不在的弧形元素
Pervasive arc elements
△
融入且独立的餐厅空间
Integrated and independent restaurant space
△
走廊视角的餐厅
Restaurant from corridor perspective
△
画弧为界,细腻的岩板纹理和纯白的石膏板弧度构画出“结构之诗”。
硬装软装一体化的餐厅通过顶面的高低与造型进行空间的界分,在弧度造型的吊顶、家具与装饰品的融合中,区域感得以加深,过渡区域的镜子完成了功能性与装饰性的统一,动线利用与艺术张力相得益彰。
去背景化的设计帮助空间表现其本身的魅力,餐厅既融入了整体空间,又保持了自身的相对独立。
舒适无缚 静谧无垠
Comfortable and unrestrained, quiet and boundless
原精装空间
Original hardbound space
△
极简主卧
Minimal master bedroom
△
延续公共区域的原木与黑白色调,主卧将空间留给围绕睡眠产生的功能本身,衣帽间、卫生间以及床的空间形成流畅的生活动线,光影透过百叶帘自然地洒落在进口床具上,流动的光影带着极强的线条感与艺术张力,为居者带来细腻舒适的空间感受。
主卫
M
ast
er bath
△
梳妆台
D
resser
△
衣帽间
Cloakroom
△
改变卫生间入户门的位置,形成的U型衣帽间扩大了储藏的
体
量,材质的呼应强调了设计的整体性,通透的玻璃柜门打破材质的厚重感,轻盈的美学体验满足收纳和展示,仪式感应运而生。
推开与墙体融为一体的隐形门,便是全屋黑色岩板的主卫空间,一体化台盆设计让日常清扫更加便捷。作为清洁放松的空间,好用与设计感是卫生间设计的主要考量因素,从触摸龙头的感受、龙头出水的方式、台面的整洁度等细节出发,让方方面面的体验感都更加舒适。
鸟窝床与日夜帘
Bird's Nest Bed and Day Night Curtain
△
将主体空间的造型感交给床体,儿童房依旧延续了白墙与原木地板的经典搭配,带来沉浸式的舒适体验。极具包裹感的鸟窝床可以自由变换四角的造型,为孩子的睡眠带来贮满的安全感。日夜帘的选择保障了生活的隐私性,同时让白天或夜晚的光影氛围拥有更多选择。
书房
Study
△
从空间属性出发,书房大面积运用原木材质,任由温润蔓延至整个空间。
独立设计确保了办公或读书不受干扰,整面墙的书柜集收纳与展示与一体,在书香与木香的浸染中,奏响夜的第七章。
项目结构分析
原始结构图
Original structure diagram
△
/原始户型分析/
① 原精装户型中规中矩,缺少设计感。
② 动线不清晰,空间分割稍显粗糙
。
③ 各功能空间之间缺少深层次的互动
。
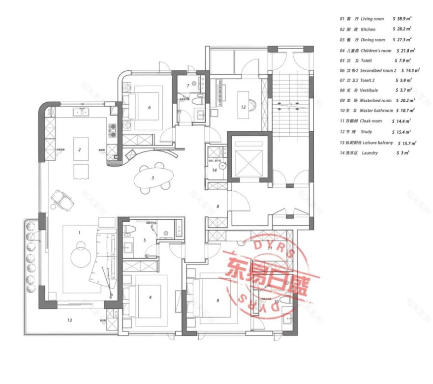
平面方案图
Picture of design scheme
△
爆炸分析图
Explosion analysis diagram
△
/设计方案调整/
① 确定统一的设计调性,运用线条、弧度等元素增强空间的设计感。
② 通过背景、材质等手法,在各个空间建构联结,深入挖掘材质、空间与人的关系。
③ 家具、单品的选择极具设计感与舒适度,视觉呈现更具美学气质,提升居者的使用感受。
项目基础信息
项目名称:都会森林
项目面积:190平
项目风格:现代风格
项目地点:中国.杭州
主案设计:钱浙明
设计团队:钱浙明. 武泽文. 蔡潇. 陈思炬. 李家俊.
项目摄影:翰墨视觉(小四)
项目预算:
2
45
W
项目工期:240天
灯光:圣鼎华光
厨房:
意德法家
整屋木作:
图森木作
岩板:
莱梅娜(Laminam)
地板:
得高进口地板
艺术涂料:
百色熊美国进口涂料
洁具:
高仪. 当代. 杜唯淋浴房
设备:
杭州合宜楼宇设备
软装:
Baxter. Porro. Lago(鸟窝床). Davide Groppi落地灯. Vitra书桌椅. zieta装饰镜. Cassina.
项目设计师
钱浙明 | 东易日盛主任设计师
从业经验:12年
所在设计部:东易日盛新城原创国际别墅设计中心
设计部地址:杭州市江干区宏程国际大厦
设计理念:“师法自然”,设计源于生活,从业主生活方式来演绎“风格”。
代表作品:
杭州:
江南里.
东方御府. 萧山府尚别墅. 青山湖别墅. 东方润园. 大华西溪风情.
绍兴:稷山庄园
.
融创越州府
.
迪荡湖湖一号
荣誉奖励
1. 2013年杭州市家庭装饰工程优秀奖。
2. 2014年杭州电视台《生活大参考》栏目特邀设计师。
3. 2015年受邀参加杭州电视66频道《家装第一线》等家装栏目。
4. 2016浙江省家庭装饰工程优秀奖。
5. 2016年“亚洲室内设计竞赛”设计优秀奖。
6. 2017年国际空间设计大奖“艾特奖”优秀奖。
7. 2019年“M+中国高端室内设计大赛”中“杭州城市赛区TOP14”“浙江省赛区TOP30”荣誉。
8. 2019年40 UNDER 40中国(杭州)杰出青年。
客服
消息
收藏
下载
最近






























































