查看完整案例

收藏

下载
点我获取专属装修报价
室内空间的使用功能,主张废弃繁琐的装饰,室内布置按功能区分的原则进行,家具布置与空间密切配合,色彩造型紧跟时尚潮流,以个性化简单化装修方式打造舒适家居。
「户型改造」
HOUSE MODIFICATION
-
💡
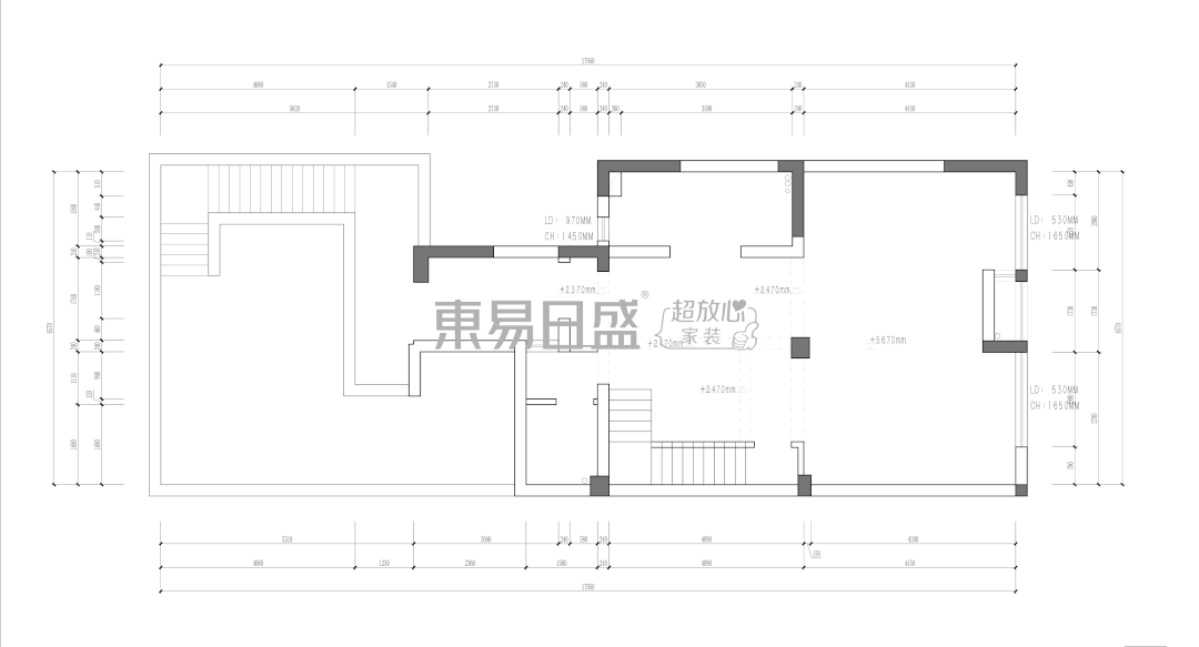
原始户型缺点:
① 原始楼梯设计踏步空间不舒服,位置不太合理
② 空间相对来说不够开阔敞亮,无法实现人与人之间的互动交流。
③ 餐厅与厨房位置相距甚远,动线不流畅
④ 空间配套不完善尺寸不够,无法实现更多的功能收纳结合。
💡
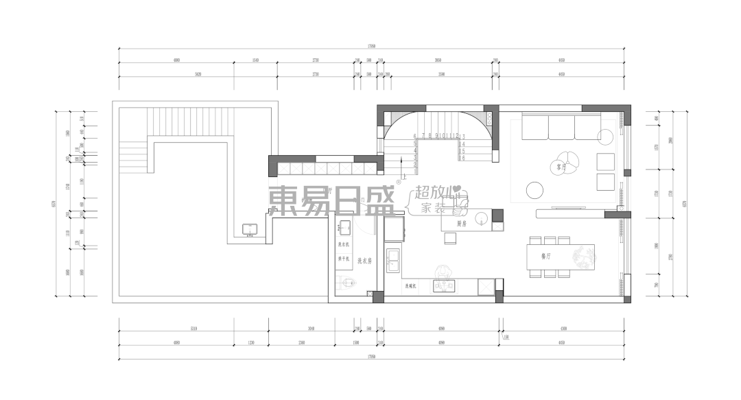
户型亮点设计:
① 进门右侧空间改造成洗衣房,最大化的利用了空间。
② 重新调整了楼梯与厨房的位置,优化了动线,形成开放、自由、交互的一体化格局。
③ 楼梯的空间进行了扩大,楼梯踏步更舒适。
④ 更改了二楼衣帽间的开口方向,动线更加顺畅。
「案例欣赏」
CASE APPRECIATION
-
-
1 -
[ 宁静的生活气息 ]
客 厅
/
空间以现代简约为设计手法,在展示空间现代感的同时也给人一种典雅的生活意境。
开阔式的空间布局纳入更多的自然的光线,令空间通透而明亮。
The space is designed with modern and simple techniques, which not only shows the modern sense of space but also gives people a kind of elegant life artistic conception. The open space layout brings in more natural light, making the space transparent and bright.
客厅背景在材质运用上采用石材、木饰面,来营造一种刚柔并济、简约不简单的视觉冲击感。客厅以质感奶咖色打底,皮质的沙发靠墙摆放,提供自在舒适的落座体验。
Living room background in the material use of stone and wood veneer combination, to create a rigid and flexible, simple not simple sense of visual impact. The living room is based on textured milk coffee, and the leather sofa is placed against the wall, providing a comfortable sitting experience.
-
2 -
[ 精致的用餐仪式感 ]
餐 厅
/
餐厅与客厅整体硬装保持一致的造型,家具也是以现代简约的设计,带来一种华丽精致的用餐仪式感。
Dining roo
m
and living room overall hard decoration to maintain consistent modeling, furniture is also modern and simple design, bringing a luxuriant and delicate sense of dining ceremony.
餐厅区域做挑空,搭配简约线条型吊灯,墙面是护墙板与大理石相结合,让整个空间层次丰富,大气明亮。
搭配软装挂画装饰品,为空间增添一景。
餐厅落地窗将景观带入室内,使外景成为室内的一部分。
The restaurant area is empty, with simple line chandelier, wall is the combination of wall panels and marble, so that the whole space is rich in levels, bright atmosphere. With soft decoration hanging paintings, add a scene for the space.
-
3 -
[流畅的操作体验 ]
厨 房
/
L型厨房设计分区明确,烹饪、操作、洗涤都有着各自独立的区域,同时动线流畅自然,让烹饪更加安全快捷。搭配岛台,操作起来很方便,一家人在中岛上还可以一起做烘焙、饺子等,有利于家人情感的交流。
L kitchen design partition is clear, cooking, operation, cathartic are having respective independent area, move line at the same time fluent and natural, let cooking more safe and fast.With the island, it is very easy to operate.
开放式厨房与餐厅相结合,空间的互动与交流增强。灰色石纹的地砖,简洁的棕色橱柜,宽敞的厨房空间,为主人提供了一个轻松自在的烹饪体验。
The open kitchen is combined with the dining room to enhance the interaction and communication of the space. Gray stone floor tiles, simple brown cabinets, and spacious kitchen space provide a relaxed cooking experience for the owner.
-
4 -
[ 舒适的休憩空间]
主 卧
/
卧室的设计整体从简、实用功能为主,天花吊平顶+无主灯的设计,简约不失设计感,床头背景墙以浅灰色软包与木饰面结合设计,丰富空间层次。面料和饰面的选择,让休息空间更添一份舒适与温馨。
The overall design of the bedroom is simple and practical. The flat ceiling hanging + no main lamp design is simple without losing the sense of design. The background wall of the head of the bed is designed with light gray soft bag and wood veneer to enrich the spatial level.
-
5 -
[ 房间的多功能性 ]
老人房
/
老人房用色沉稳朴质,米色柔和,灰色大气,勾勒舒适尊享的氛围,榻榻米+衣柜+书桌的组合设计,可以最大程度利用空间,丰富空间功能。现代简约形吊灯,烘托起温馨有爱的生活场景,每一个细节都源于设计师的温暖和用心。
The old man room is composed and simple in color, beige is downy, gray atmosphere, draw the outline of comfortable and noble atmosphere, tatami + wardrobe + desk combination design, can maximize the use of space, rich space function.
-
6 -
[ 理想的儿童乐园 ]
儿童房
/
二楼的次卧是儿童房,低饱和度的空间中嵌入莫兰迪色,不经意间打破了原本的单调与沉闷,空间凝聚出了一种岁月静好的美,使人体的感官愉悦缓缓被眼前的画面打开。靠窗的一体化的书桌与书柜,为儿童打造了轻松的学习氛围。
The second bedroom on the second floor is the children's room. Morandi color is embedded in the low-saturation space, which inadvertently breaks the original drab and depressing. The space condensed a kind of beauty with quiet years, making the sensual pleasure of human body slowly opened by the picture in front of us.
客服
消息
收藏
下载
最近





















