查看完整案例

收藏

下载
养老空间
设计
更重要的是呈现一种家
的氛围,通过技术和设计帮助老年人拥有理想的生活状态,呈现温柔治愈的家的感觉,构筑有温度的养老生活。
01.
设计背景
Design background
人口老龄化
已成为21世纪最重要的社会趋势之一,《世界人口展望:2019年修订版》中的数据显示,到2050年,全世界每6人中就有1人年龄在65岁(16%)以上,老年人口将超过4.3亿,占总人口的三分之一。截止到2018年末,我国最新的老年人口数据中65周岁及以上人口已占总人口的11.9%。随着老龄化日趋严重,针对老年人住宅的适老化设计非常重要。
02.
老人房改造案例展示
Design Case
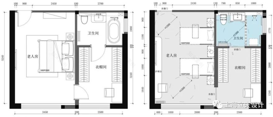
▲Plan @ 改造前
平面图
▲Plan @ 改造后
平面图
在老人房原始布局基础上,重新梳理空间尺度,保证老人日常生活及行动流畅。并结合老人的生活习惯及身体情况,合理布置运用适老化家具,优化空间动线,为现代的养老生活提供
安全、舒适、实用
的美好健康空间。
卧室是老年人生活和休息的主要场所,空间设计首先要考虑安全性和舒适度为主。一般情况下老年人的卧室功能需求不会太多,以休息为主,营造安静舒适的睡眠环境和足够大的活动空间。
老年人卧室走道要留出足够活动空间,方便拐杖支撑、轮椅转圈以及照顾护理等预留可能性,所以卧室家具应尽量少,以
简洁灵活、高效便捷
为主。
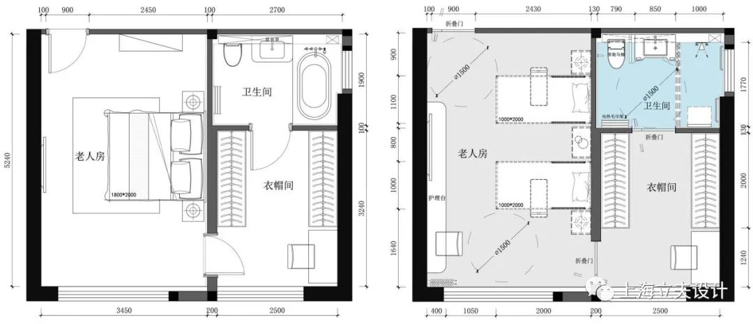
▲Plan @ 卧室
平面图
在老人房的卧室布局中,我们在空间的居中位置,设置
两张多功能护理床
,并分别搭配床头柜。这样就能避免与窗户直接贴合,也更好地
避免老人因作息时间不同或
起夜、翻身
等问题影响各自睡眠质量
。
床对面墙则设置长桌护理台,台面下方适当设置抽屉,以便轮椅的正常进入。室内的房门相应加大并改成
折叠门
,床两侧也预留出足够的空间尺度,
保证轮椅通行所需的尺寸
。
智能适老化
设备能有效地帮助我们实现居家养老生活的品质,给老人一个舒适的老年生活。
▲
智能护理床示意图
在适老化辅具设计上我们主要想分享下
智能升降护理床
,
它的一些功能可以让家人、护工在照顾老人的时候更加方便,避免长时间的弯腰,
同时也能为老人创造一个更适合他们的休息方式
。
▲
功能展示图
老年人的床头应设置报警器开关,警铃可设在子女房间与客厅,如子女不同住,可争取与小区保安系统相连。
老人一旦发生意外,只需轻轻按一下开关,即可及时发出求救信号
。
卧室灯光方面老年人和年轻人有所不同,老年人对照明度的需求要比年轻人高2-3倍;色温建议控制在2700K~3300K之间,
营造入睡前的放松情绪,提高老人睡眠的质量
。
▲
感应式小夜灯示意图
为保证老人起夜时的安全
,
设置相应的
感应式起夜灯
,
柔和的光源能有效避免光反差过大环境下对老人视觉的刺激。
▲
墙面壁灯示意图
床头、书桌等地方的局部光也是不可少的,作为辅助性光源提供不同场景活动需要,能有效满足局部光照需求。
自由伸缩调节的壁灯更方便老年人在日常生活中的使用照明
。
卫生间
是家庭生活中最经常发生危险的空间,老人摔倒、磕伤的事故都是卫浴空间的安全设计出现了纰漏,卫生间的适老化设计就是要为老人消除安全隐患,提升使用便捷,打造智能卫浴。
▲Plan @卫生间
平面图
在老人房的卫生间布局中,
我们以安全、舒适、方便为核心
。入口处设置折叠门并适当加大门宽,合理规划空间尺度,在有限空间内保证轮椅的正常通行,并使空间动线更加流畅。在马桶及淋浴房中分别设置相应的安全扶手及折叠座椅,并使用通长地漏,实现空间无高差。
更好的为老人日常生活提供安全保障和便利性
。
卫生间作为功能空间,空间有限而且设备密集,老人在如厕和洗浴时,容易发生跌倒和摔伤等事故,因此在设计时,
应重点考虑地面的无高差设计和材质的散水性以及防滑性
。
▲
干湿区无高差设计示意图
卫生间干湿区无高差设计
,
保证老人进出卫生间方便自如,即使是轮椅也可以畅通无阻。
选择长条形地漏,去除隐患挡水条。跟传统地漏相比,长条地漏集水面积大、下水快,安装在淋浴房门口,凭借其超强的下水速度,完全不需要挡水条的存在。
▲
SMC防水盘
SMC防水盘一体模压成型,表面有良好的散水性,表层经过处理,可以更好地阻止热量散发,同时耐磨防滑。
▲
隐
蔽式存水弯
选择
隐蔽式存水弯
,藏于墙后,为台盆下留出足够的容腿空间,
即便坐在轮椅上使用也极为舒适
。
▲
马桶区侧边
L型
+下翻扶手
▲
淋浴区扶手
在老人使用频率最高的马桶区及淋浴区加装扶手,
马桶区扶手方便老人如厕时借力起坐
,同时在马桶附近设置紧急呼叫器;沿淋浴区墙面设置扶手,
供老人在洗浴移动时抓握,以确保安全
。
▲
适老化一体台盆
除了加装扶手以外,根据老年人的身体状况及生活特性,对适老化台盆等部品进行相应的优化升级。
▲
适老化浴室柜
在老人房卫生间设置适老化浴室柜,让行动不便的老人也能轻松自如地完成洗漱动作。
▲
适老化浴室柜功能展示
▲
折叠门
当卫生间的开门位置较为特殊或者开门和内部使用产生冲突时,可以考虑使用折叠门,
可以最大化利用空间,也更方便老人的出入
。
▲
下压式门把手
▲
U型门把手
将老人房各类门把手改造为下压式把手或U型把手,
方便老人抓握施力
,并选用防滑、热惰性指标优良把手材质。
我们根据老年人的身体情况,还考虑到他们喜欢收纳的习惯,在衣帽间的适老化设计中以
便捷、实用、环保
为核心。
在满足老人日常收纳需求的同时,还让他们的生活更加方便、舒适
。
在衣柜设计中,我们选用推拉式组合柜形式。衣柜移门的设计,
既不占用空间,也更方便老人的日常开启,省力便捷
。
并在柜体下方相应高度设置抽屉,加大日常收纳的容量与便捷性。
在柜体内,我们设置了
下拉式伸缩挂衣杆
,
并在衣柜的转角处设置
可旋转的衣架杆
,这样老人平时取放衣物,更加轻松方便,也更好利用了柜内的储物空间。
柜内专门搭配了
升降缓冲挂衣杆和裤架
等五金收纳系统,老人用起来更舒心
。并在衣柜内安装了
“衣物护理精灵”
,打开后可以
灭菌、除湿、除螨,
进一步提高老人的
舒适感和安心感
。
考虑到老人日常身体不适时,需要子女或者护工的陪护。所以我们会在柜体设计中提前预留出可方便存放
便携折叠护理床
的相应空间位置,
以便拿取,也不妨碍老人的通行
。
设计回归生活,未来的养老空间设计需要打破人们心中的固有概念,不应只为“有所居“,而应从老年人心理和生理的基础出发,创造出最适合老年人的内外空间。当你老了,你希望生活在怎样的空间里呢?
客服
消息
收藏
下载
最近



































