查看完整案例

收藏

下载
| 关于 |
云漫设计
云漫设计创立于2020年,是一群对设计有追求有梦想的青年人,开创的一间”专注全案设计,为年轻人设计品质生活“的原创设计工作室,云漫认为每个案子都是独一无二的,拒绝传统模板与刻板设计,希望通过设计完成每一位业主对家的期待
| 与孩子共同成长 |
130㎡旧房改造 | 中国·上海
━
家,是每个孩子成长的摇篮,是每个孩子栖息的港湾。如何在满足孩子与大人的需求前提下,营造出舒适而又质感的空间氛围,是设计师对有娃家庭的首要考虑因素。本案围绕这幸福的三代同堂之家展开,屋主夫妻都是企业高管,有一位6岁的萌娃,因为夫妻俩工作繁忙,工作日都是爷爷奶奶照顾萌娃。在与设计师沟通时,屋主表示,希望这个家能给孩子带来舒适的成长环境,将主要活动区域都集中到公共空间,不仅需要有一家人互动沟通的区域,也要有学习工作的空间,能在此与孩子共同成长。
01
户型展示
HOUSE TYPE DISPLAY
原始户型
常规的三房结构,超大的阳台落地窗和三房朝南的卧室,儿童房尺度感偏小,北阳台利用率低,公卫尺度感偏小
户型改造
1. 为了增加整体的空间通透感,儿童房可以与客厅有更多的互动,我们拆除了儿童房的隔墙,采用木制移门进行隔断,在移门推开时,就能与客厅空间连为一体,使得整个客厅区域的活动空间都得到极大的扩充,空间感得到提升,同时也扩大儿童房的尺度感形成良好的交互。
2. 原本作为晾晒使用的北阳台被改造成为西厨水吧,并且在餐厅区域增设了操作岛台+餐桌的形式,另外还有闭式的中厨,即可有餐感一体的空间,也可以隔离中式烧菜的油烟问题,多功能且充裕的餐厨空间。
3. 公卫为了提升使用效率,设计为马桶间+淋浴+台盆区的三分离结构
4. 原阳台宽度比客厅的整体宽度更大,北阳台做为西厨之后南阳台承担了功能阳台与休闲阳台的重任,新风解决通风问题,阳台大落地玻璃把窗影最大化的映入室内,在客厅的视觉盲区位置解决洗烘的功能,设置隐藏式晾衣架
02
玄关
PORCH
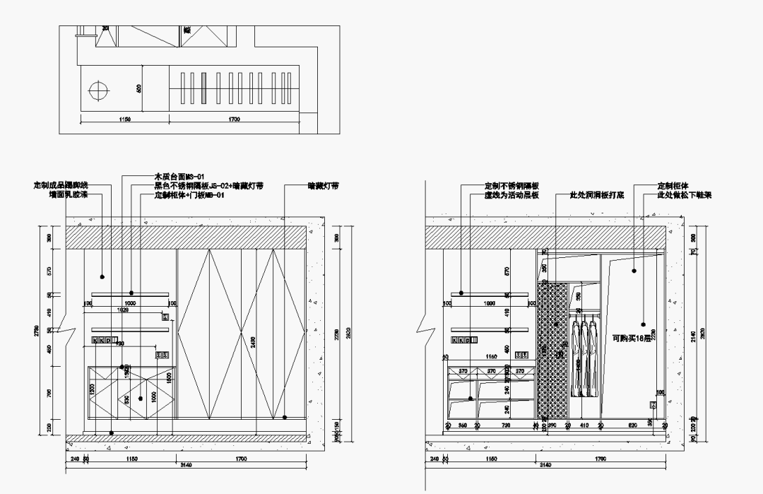
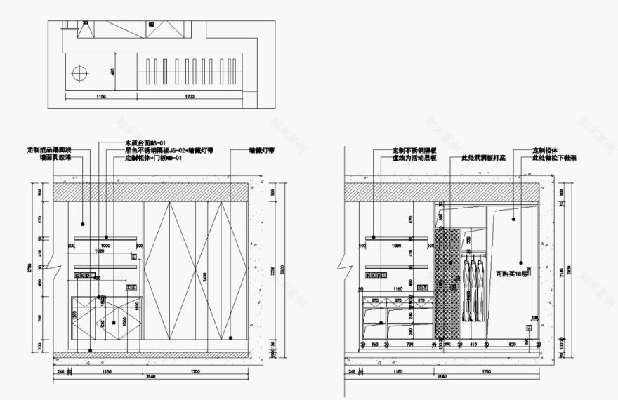
在入户玄关区域设计了600mm深度的鞋帽柜,无论是收纳冬天的大衣还是双层的鞋架都能毫无压力
长达2.9米的玄关墙,如果整面都设计成为通顶柜,虽然可以把收纳空间最大化利用,但是也会造成空间挤压,造成入户的不舒适感。因此我们把玄关柜分为1.7米的通顶柜+1.2米的矮柜组成,并且1.7米的通顶柜也分别由杂物柜、衣帽柜、鞋柜三部分组成,明确的功能性区分,避免了后续物品随意放置造成凌乱感。
为了营造柜体的轻盈感,玄关柜都采用了悬空处理,200mm的离地高度,无论是打扫还是日常鞋子的收纳都提供的便利。
03
客厅
LIVING ROOM
客厅采用的是合围式布局,抛弃传统以电视为中心的格局,不用茶几,采用组合式功能沙发,在客厅中间,打造出一个宽裕的亲子互动空间。
在与屋主夫妻沟通时,当时就明确提出家中不需要电视机,不过有大量的书籍需要收纳和展示,因此原始的电视背景墙被设计成书柜样式,不但解决了书籍收纳的需求,并且把书柜布置在客厅区域,也与亲子互动区形成了功能结合,同时在阳台吊顶处设计了隐藏投影幕布,实现家庭影院兼书墙自由。
整体书墙设计为可开合式,4扇移门2副轨道,实现4扇门都可移动,使用无死角,中间移门移开实现半开放,展示出来的开放格可展示收藏及常用书籍,封闭门内可分类收纳家中杂物,整体的视觉了黑色格栅与白色柜体形成强烈对比感,形成视觉冲击的同时满足实用的需求而部分的悬空不会让整体凸出的柜子产成压抑感。
为了满足办公和学习的需求,我们在阳台区域定制了办公桌,桌面从阳台墙面中延申出来,靠墙的内侧则设计为储物柜的形式,解决办公区域的收纳需求。
客厅空间大面积的木饰面,与窗外的景色,映衬出自然舒适感,在室内中的软装色彩应用,我们主要也采用了素色+淡绿进行搭配,搭配千年木 绿植,打造出自然禅意的人文艺术空间。
舒适慵懒的毛毛虫沙发搭配原木质感的边几,望着窗外的绿意葛优躺一天,外界的喧嚣在此刻得到沉静。
推开与墙面相同材质的隐形移门之后,出现的萌娃的秘密空间,移门完全打开后,就与客厅空间连为一体,不但空间变得更通透,并且形成了空间的互动,使得趣味性大大增加。
在这个空间里大宝将度过小学的时光 ,希望能给他创造一个童真轻松的空间,未来也有二宝的规划,我们为他选配了可爱童趣的高低床
04
餐厅
DINING ROOM
为了增加餐厅的实用功能,设计成为岛台+餐桌的形式,岛台和餐桌总长为3米,满足不同操作形态下不同的高度,且相互成就增加延伸感,原木材质的餐桌和黑色的岩板岛台,与室内的材质相互呼应。
温润自然的实木悬浮桌,酷感硬朗的线条灯光,平衡了这个空间的阴与阳,硬与柔的平衡美感
餐厅的吊灯和壁灯都采用了长条的样式,横向拉长视觉空间,空间的绿植是点睛之笔,一抹绿提升空间的禅意
05
厨房
kitchen
厨房以灰黑色作为主色调,突出了空间的质感,U型厨房的布局,也提供了最舒适的中厨操作动线。
餐厅的实木餐厅与客厅的木质感形成连贯的视觉,整体空间硬朗的线条与木质感让整体空间极简又温润,这正是业主所期待的理想住所
06
卫生间
TOILET
公卫设计了分离式卫生间,把洗漱区与淋浴房规划为一起,马桶单独设计了一个独立空间,解决早高峰的同时共用的情况。
把使用频率最高的马桶间进行独立设计,这样不但使得卫生间可用性大大增加,而且独立的马桶间能保持干燥,避免了细菌和异味的产生。
07
主卧
MASTER BEDROOM
主卧室的空间保持舒适的宁静感,悬浮顶与磁吸灯的设计避免躺在床上灯光直射眼睛,对称小吊灯的设计为阅读带来更柔和的光感。
为了保证空间有足够的收纳,在床侧和床尾分别设计了通顶的衣柜, 考虑到梳妆台的需求,床尾的采用了衣柜+悬空梳妆台的组合,这样的形式,即解决必需的使用功能而不影响过道的闭塞感
床头照明采用了两盏花苞吊灯,圆球的造型与床头柜的曲线相对称,柔和的光线与软包床体组合在一起,使得主卧温馨而惬意。
08
老人房
RCHAIC ROOM
项目地点丨
中国上海·浦东
项目面积丨
130㎡
项目小区丨
爱建园
设计团队丨
云漫全案设计
延伸阅读
━
220㎡平层江景房,去繁从简的舒适空间 | 亚町设计
自然私宅,天然底色的温暖治愈 | 拾一设计
小编插话
━
如您需要设计
联盟好课
▽
━
内容策划 / PRESENT
撰文 Writer:云漫设计 排版 Editor:小九
图片版权 Copyright :云漫设计
合作/投稿联系
客服
消息
收藏
下载
最近





























