查看完整案例

收藏

下载
在此次设计实践中,我们以“流动的艺术容器”为核心概念,打破传统别墅的空间桎梏,将现代美学与生活温度深度融合,旨在营造兼具雅致格调与舒适体验的居住场域,让空间成为承载生活、滋养心灵的美学载体。
In this design practice, we embraced the core concept of "a vessel of flowing art" to break away from the traditional constraints of villa spaces. By deeply integrating modern aesthetics with the warmth of daily life, we aimed to create a residential environment that harmonizes elegant style with comfortable living. Ultimately, the space becomes an aesthetic vessel that not only accommodates life but also nurtures the soul.
设计以“开放联动”为脉络重塑空间秩序:挑高客厅作为核心场域,通过弧形二层界面与垂落的“繁星”艺术吊灯,营造出强烈的纵深感与视觉焦点,让空间如“艺术盒”般充满张力。
The design reshapes the spatial order with "openness and interconnection" as its core principle. The double-height living room, serving as the central domain, creates a powerful sense of depth and a striking visual focal point through its curved second-level interface and a cascading "starry sky" art chandelier. This composition renders the space as a dynamic "art box," brimming with tension and artistic expression.
餐厨区与客厅自然衔接,开放式布局消弭功能边界,使烹饪、用餐与休闲交流形成有机互动。
The kitchen and dining area seamlessly connect with the living room, with the open layout dissolving traditional functional boundaries to create an organic flow between cooking, dining, and leisure activities.
楼梯以 “线性雕塑” 的姿态介入,玻璃护栏与灯光踏步的组合,既保障通透感,又成为连接上下层的艺术纽带,让空间层次在行走中持续变化。
The staircase intervenes as a "linear sculpture," where the combination of glass railings and illuminated treads ensures visual transparency while forming an artistic link connecting the two levels. This design allows the spatial layers to continuously unfold and transform as one moves through it.
曲线元素是空间的“柔化剂”,客厅弧形垭口、二层圆弧挑台,消解直线的硬朗感,赋予空间如自然肌理般的流动舒展。
Curved elements serve as "softening agents" throughout the space. The arched doorway in the living room and the semicircular cantilevered platform on the second level dissolve the rigidity of straight lines, endowing the space with a fluid, expansive quality reminiscent of natural textures.
材质选择上,以浅木色、暖灰色为基底,搭配金属收边、长虹玻璃、大理石等材质,在温润与冷冽、通透与厚重间形成质感碰撞。
In terms of material selection, a base palette of light wood tones and warm grays is complemented by metal trims, fluted glass, and marble. This combination creates a deliberate dialogue between contrasting textures—warmth and coolness, transparency and solidity—enhancing the spatial experience through tactile diversity.
入户玻璃柜展陈精致感,卧室蓝色肌理柜成为艺术视觉焦点,每一种材质都为空间注入独特叙事。
The entryway's glass cabinet showcases refined elegance, while the blue textured wardrobe in the bedroom emerges as an artistic focal point—each material contributes its own unique narrative to the space.
灯光设计以“层次氛围”为核心:嵌入式筒灯提供基础照明,线性灯带勾勒柜体、楼梯轮廓,艺术吊灯则化身 “光之雕塑”。自然光引入亦经巧思,客厅大窗配柔纱帘,让光线变得朦胧柔和。
The lighting design centers on "layered ambiance": recessed downlights provide foundational illumination, linear LED strips delineate the contours of cabinetry and staircases, while the artistic chandelier transforms into a "sculpture of light."The introduction of natural light is also thoughtfully crafted. Large windows in the living room, paired with sheer curtains, transform the sunlight into a soft, diffused glow.
餐厨区高窗引入室外绿意,实现室内外景观渗透,营造 “居于自然,隐于都市” 的静谧感。
High windows in the kitchen and dining area frame the outdoor greenery, seamlessly blending the interior and exterior landscapes to create a serene atmosphere of "living in nature while secluded in the city."
功能布局兼顾“实用性与艺术性”:餐厨区定制柜体整合收纳与展示,隐藏式细节让空间更显整洁。
The functional layout balances "practicality and artistry": custom cabinetry in the kitchen and dining area integrates storage and display, while concealed details contribute to a clean, uncluttered aesthetic.
卧室以低饱和色调营造休憩氛围,弧形门洞与艺术摆件搭配,使睡眠空间成为心灵栖所。
The bedroom employs a low-saturation color palette to cultivate a restful atmosphere, where arched doorways and curated art objects come together to transform the sleeping space into a true sanctuary for the soul.
公共区域的艺术家具,则将“生活艺术化”理念落地,让每一处角落都充满可品味的细节。
The artistic furniture in the common areas brings the concept of "living as art" to life, ensuring every corner is filled with thoughtfully curated details to be appreciated.
最终,“国宝红瞰”别墅的设计,是对 “现代人居美学” 的探索 ,于理性功能布局中注入感性艺术表达,让别墅既承载日常烟火,又成为可沉浸、可品味的美学容器。
Ultimately, the design of the "National Treasure Red View" villa represents an exploration of "aesthetic living for the modern era." It infuses rational functional layouts with emotive artistic expression, creating a residence that not only accommodates the warmth of daily life but also serves as an immersive vessel for aesthetic appreciation.
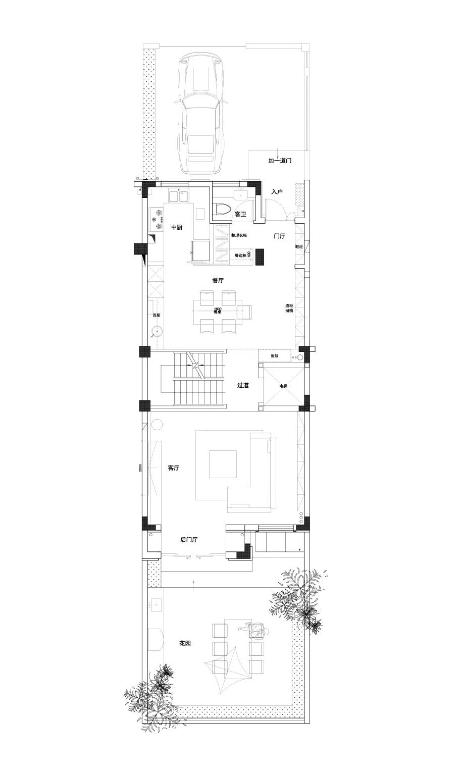
▽ 一层平面图
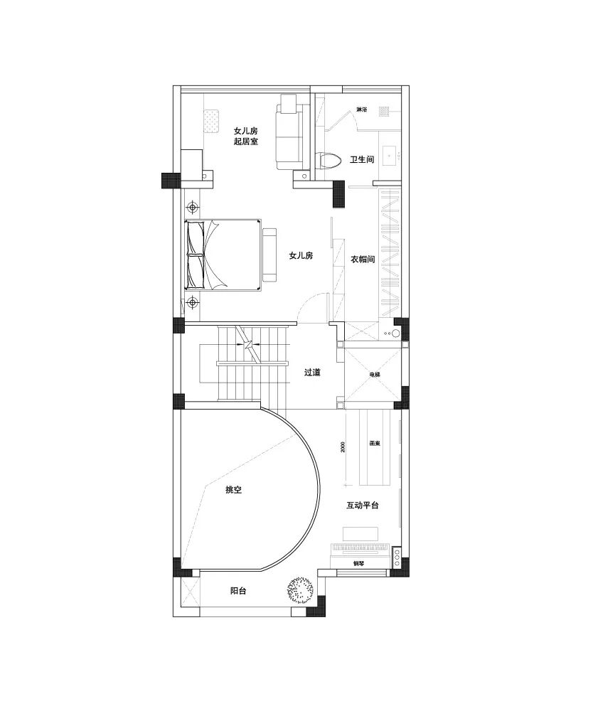
▽ 二层平面图
项目信息/Project Information
作品名称:国宝红瞰别墅
项目地址:河南洛阳
项目面积:360㎡
设计单位:GDG煦石设计
摄 影:如初空间摄影
设计团队/Design Team
煦石是一群安安静静埋头做设计,用心施工落地的小团队。他们耐得住寂寞、经得住诱惑、无比珍视口碑。无论是几个平米的小店,还是一千平的别墅,或是上万平的商业。他们都一样用心。真正为客户思考,为客户的客户思考。从不以拿奖作为设计的出发点(当然也拿过很多奖),获奖只是项目完美落地后的副产品。让每一个商业客户能长期稳定的经营,让住宅客户住的幸福舒心,才是他们的初心。
“Aesthetics.
Creation.
Innovation.
Keep going, and drinking,and designing...”
客服
消息
收藏
下载
最近

























