查看完整案例

收藏

下载
每一个不曾起舞的日子,都是对生命的辜负。
—— 尼 采
本案位于上海市嘉定区,建筑设计上最大的特色是每家都拥有超级大的空中露台和整面的落地玻璃窗,颇有点第五代住宅的意味。虽然原始结构不够整体,有些细碎,空间没有被最大化利用,且室内顶面的梁也较多,但通过改造后,这些都算不上bug。毕竟可以实现三面落地窗、开阔的大露台、双客厅的户型少之又少。遇到这样先天“资质出众”的房子,对设计师来说也是可遇不可求的幸事。
经过几次接触后,业主和设计师对房子的内部改造达成一致,并高度认可了我们的设计理念。确定了双客厅的设计思路,尽量打开原有结构中的非承重墙体,使室内空间得到大幅扩容。将竖向的楼梯改为横向,被截断的客餐厅实现了南北的贯通。
项目名称|Project Name:《 光影之境 》
项目地址|Location:上海 · 嘉定区
面 积|area:300㎡
设计机构|Design Agency:简狄设计事务所
原始结构图
|
The original figure
F1
F2
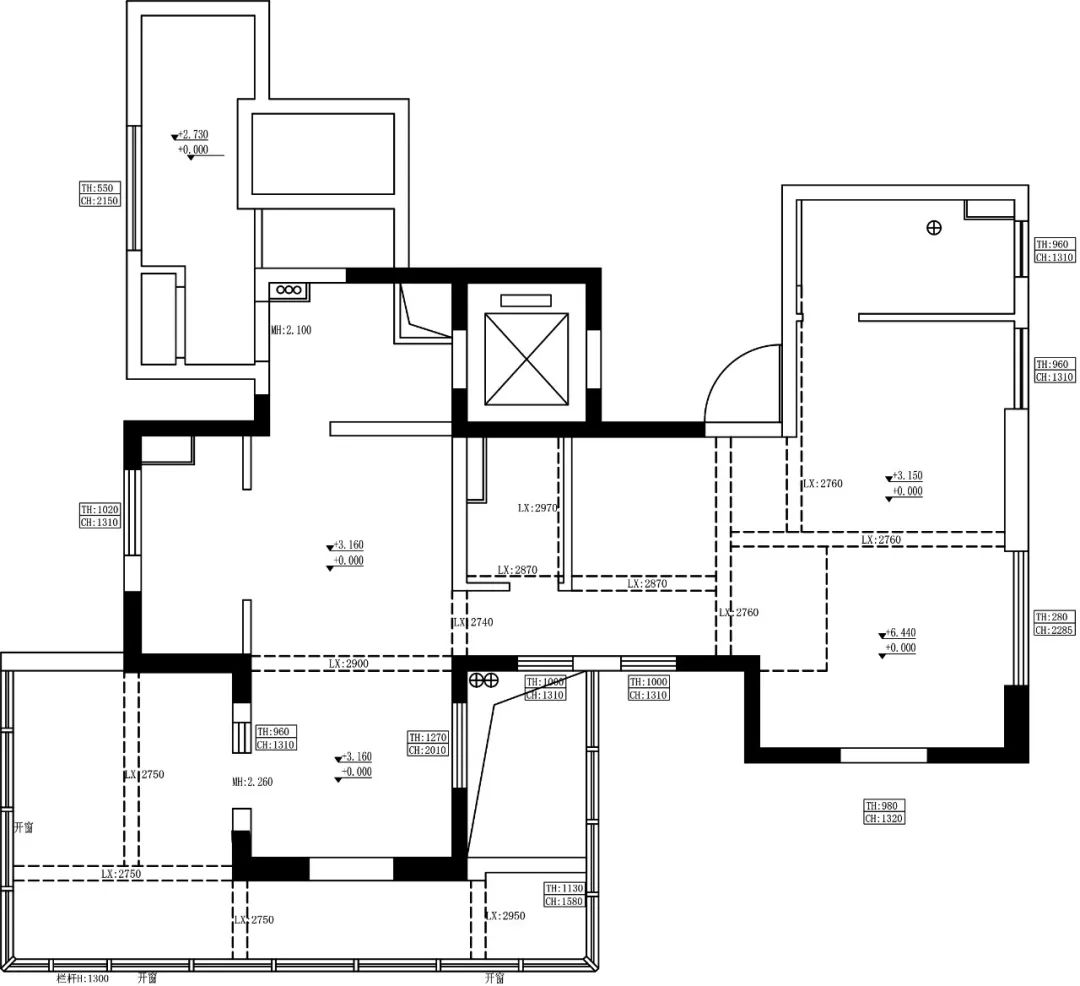
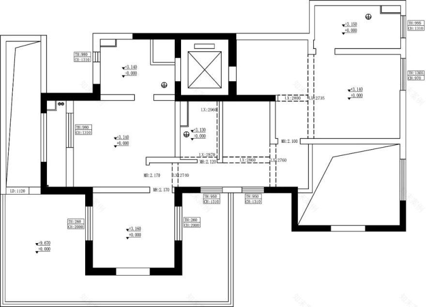
平面布置图
|
Floor plan
F1
F2
改造思路
① 将竖向的楼梯走向改为横向,原本被截断的客餐厅实现南北贯通。
② 拆除一层餐厅区非承重墙体,实现了三面落地窗的通透格局。
③
一层北边空间延伸后,拓展了中西厨的面积。
④
利用无法拆除的L型承重结构,设计成展示柜,形成以餐桌和展示柜为中心的自由环游动线。
⑤ 将原有一层的挑空区全部浇平后,二层原本紧凑的主卧空间大幅增加,形成功能齐备大主卧套间;原本狭小的主卫更是占据了一间卧室的空间,升级成为可以容纳大浴缸、双台盆、三分离格局的主卫。
入户即是通透的大会客厅,最大的设计心机在于背景墙的处理:
设计师将处于一个平面上的进户门、电视墙、客房门设计为完整统一的木饰面背景,顶面与立面之间大块面的完美衔接,消化了不同材质、形状造成的细碎错乱之感。
原本竖梯截断了南边两个大空间,改为横梯后南北空间。
豁然开朗的同时, 楼梯间的纵向空间也进一步放大,让整个楼梯间形成局部挑空,观赏性和互动感更为加强。
The entrance is the transparent assembly living room. The biggest design trick lies in the treatment of the background wall: the designer designs the entrance door, TV wall and guest room door on a plane as a complete and unified wood veneer background, and the perfect connection between the top surface and the facade, digesting the sense of fragmentation and disorder caused by different materials and shapes. Originally, the vertical ladder cut off the two large spaces in the south. After it was changed to a horizontal ladder, the North-South space suddenly opened up. At the same time, the vertical space of the staircase was further enlarged, so that the whole staircase formed a local void, and the sense of appreciation and interaction were strengthened.
利用无法拆除的L型承重结构,设计成展示柜,形成以餐桌和展示柜为中心的自由环游动线。一面是纯净的蓝天,一面是百叶帘过滤出的曼妙光影长廊,体验与天空一窗之隔的空灵与轻盈。
Using the L-shaped bearing structure that cannot be removed, the display cabinet is designed to form a free traveling line centered on the dining table and display cabinet. One side is the pure blue sky, and the other is the graceful light and shadow corridor filtered by the blinds, so as to experience the ethereal and lightness separated from the sky.
休闲客厅完全不同于正式会客厅,纯白的主色调包容下,是摩登的色彩碰撞。
这里是属于屋主的心灵港湾,是属于闺蜜之间的秘密花园,是杯觥交错的欢乐时光。
The leisure living room is completely different from the formal reception hall. Under the inclusion of the main color of pure white, it is a modern color collision. This is the harbor of the owner's soul, the secret garden between friends, and a happy time of drinking and drinking.
餐厅位于一层的中心位置,动线自由便捷。无论是去两个客厅、中西厨还是卫生间……都不用绕路。既是充满仪式感的正餐厅,又是动线汇聚的中心枢纽。酒柜和餐边柜形成组合柜,高级灰的柜门和黑色玻璃结合,尽显绅士般的格调和质感。
The restaurant is located in the center of the first floor, and the moving line is free and convenient. Whether it's going to the two living rooms, Chinese and Western kitchens or bathrooms... There's no need to detour. It is not only a formal restaurant full of ceremony, but also a central hub for moving lines. The wine cabinet and the side cabinet form a combined cabinet, and the high-grade gray cabinet door is combined with black glass to show the gentlemanly style and texture.
西厨位于一层的北边,同样是整面的落地窗,向外的视野非常开阔,向内可穿透餐厅直达最南面的会客厅。和餐厅一样,照明光源采用暗藏轨道的磁吸灯,可任意调整照射角度,体现出光源的多变性。
The western kitchen is located in the north of the first floor. It is also a floor to ceiling window on the whole surface. The outward view is very wide. It can penetrate the restaurant and directly reach the reception hall in the southernmost direction. Like the restaurant, the lighting source adopts the magnetic suction lamp with hidden track, and the irradiation angle can be adjusted arbitrarily, reflecting the variability of the light source.
这可能是设计师从业以来设计的最为通透的中厨,别人家的中厨仅是一扇窗,这里却是奢侈的一整面的落地窗。烹饪同时鸟瞰城市的繁华,仰望云端的日月星辰,灶台上升华出最高级的烟火气。
This may be the most transparent Chinese kitchen designed by designers. The Chinese kitchen of others is only a window, but here is a luxury floor to ceiling window. At the same time, cooking overlooks the prosperity of the city, looks up at the sun, moon and stars in the clouds, and the stove rises, showing the most advanced fireworks.
主卧是最为贴近屋主内心的私密空间,玄关给予安全感,半透的木格栅让空间不被完全分隔。睡眠空间的大小适宜,正好符合屋主内心的安全尺度。正对床头预留了白墙,便于投影。角落是一面内嵌书架,后期会放置小书桌或者单椅+茶几,打造开放式阅读办公区。进入式衣帽间是标配,超大的主卫足足占据了一间卧室的空间,双台盆+浴缸的配置,加上独立马桶间和淋浴间,实现了星级酒店的三分离格局。
The master bedroom is the private space closest to the owner's heart. The porch gives a sense of security, and the semi transparent wooden grid makes the space not completely separated. The size of the house is just right for the safety of sleep. A white wall is reserved at the head of the bed for projection. A bookshelf is embedded in the corner, and a small desk or single chair + coffee table will be placed later to create an} open reading office area. The entry cloakroom is standard. The super large master bathroom fully occupies the space of one bedroom. The configuration of double basin + bathtub, plus independent toilet and shower, realizes the three separation pattern of star hotels.
二层还设计了两间卧室,分别为客房和儿童房,两间卧室共享露台的无敌采光。儿童房为了安全考虑将落地窗封闭。客房则可以通过落地玻璃门直接去往露台。
Two bedrooms are also designed on the second floor, which are guest rooms and children's rooms. The two bedrooms share the invincible daylighting of the terrace. The children's room is closed with French windows for safety. The guest room can directly} go to the terrace through the floor glass door.
楼梯设计是全屋的核心,同时也是连接上下两层空间的功能和颜值担当。大理石、木材、玻璃和金属材质被完美的结合,相得益彰。起始层设计为整块的大理石地台,第二级为面积较小的大理石叠层,从第三级开始为木质踏板。为了让楼梯视觉上更加轻盈通透,整体采用钢结构、镂空的踏板加玻璃扶手的设计,辅以氛围灯光的烘托,打造出晶莹剔透的动感效果。
The stair design is the core of the whole house, as well as the function and appearance of connecting the upper and lower floors. Marble, wood, glass and metal materials are perfectly combined to complement each other. The starting layer is designed as a whole marble platform, the second level is a small marble stack, and the third level is a wooden pedal. In order to make the stairs more light and transparent visually, the overall design adopts steel structure, hollow pedal and glass handrail, supplemented by ambient lighting to create a crystal clear dynamic effect.
- end -
简狄设计 · 荣誉奖项
2019-2020年度
国际环艺创新设计别墅豪宅空间类金奖
2019-2020年度
中国建筑装饰行业十大最具影响力设计机构
2019.中国年度设计机构
2019.中国年度设计青年
2018.中国
年设计团队
2017.中国年度设计人物奖章
2019.年度上海室内装饰行业诚信企业
中国年度优秀设计师奖
(6人次)
中国年度新锐设计师奖(2人次)
上海市十大优秀青年室内设计师 奖
(2人次)
上海城乡建设与交通系统青年岗位能手 奖
上海环境艺术与陈设艺术人物 奖
美国IDA国际设计师大赛(室内组)铜奖
国际空间设计大奖—艾特奖
2010. 大金室内设计大赛-上海地区
(别墅组)
铜奖
2014年 金堂奖全国设计大赛优秀奖
2015. 大师杯全国设计大赛(别墅组)金奖
2015. 大金室内设计大赛-
全国
赛区
(别墅组)
铜奖
2017. 设想幸福设计大赛 银奖
2017. 艾舍奖优秀作品奖
2017. 上海设计周创意生活设计金蝴蝶奖
2017. 中国室内设计百强设计师 奖
2018.大金室内设计大赛-全国赛区
(公寓组)银
奖
2018. 中国建筑装饰行业原创设计师
2018. 中国建筑装饰金鹰设计大赛住宅空间 金奖
等国内外50多项设计大奖
/ 往期热门 实景案例/
感谢所有支持JAYDEN的朋友
客服
消息
收藏
下载
最近



















































































