查看完整案例

收藏

下载
“做有故事的空间,每一个产品,终会在场景中产生落点。而科技,是提供极致消费体验的超级引擎。”
- 瑞德设计,智沃商业与建筑空间
Commercial Interior & Architecture
一 个 设 问
— Rhetoric Question —
从缔造令用户「一见钟情」的颜值
再到让客户「终身眷恋」的内核
一个能够成为行业范本的商业空间
设计需要多久
『
七天
』
今天,小R以方太水厨电终端
2.0
创新设计为例,带你解构瑞德设计智沃商业与建筑空间(以下简称“智沃”)如何用7天时间,
设计出如水般具备超强可塑性的体验空间。
案 例 细 节
— Details of Case —
方太水厨电终端2.0创新设计
产 品 线:
方太水槽洗碗机
方太燃气热水器
设计元素:
通过不同的「水
」
元素,将水厨电的系统性体现出来
设计逻辑:
通过构筑与「人
」
的四层关系,开启家电体验空间4.0时代
设 计 思 路
— Design Ideas —
于厨房,最能见生活
于厨房,最能见及生活的模样。智沃准确抓取方太和
用户
对未来理想厨房的期待,从科技潮流、生态系统、生活场景、品牌故事四大维度,
诠释空间与“人”的四层关系
,构筑瞬间击中消费者梦境的生活场景。
第一层:改变潮水的方向
科技潮流
“设计是商业问题最优雅的解决方案。”- 吴展
“情景”+“科技”是体现产品和空间专业性的强有力表达
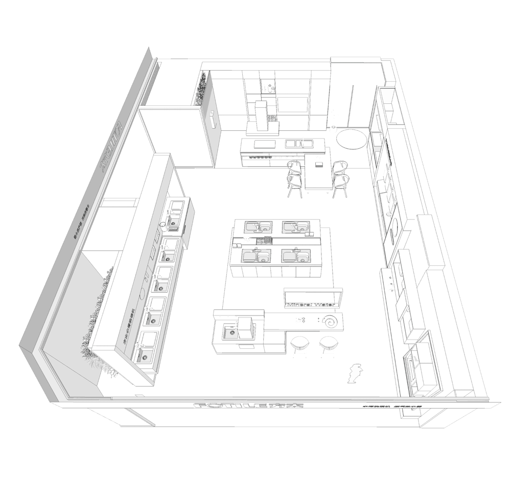
。以方太水厨电新终端为例,加入了更多的科技化元素,不同的产品线都是不同的产品体验。
方太水槽洗碗机:透明屏+实物
透明屏会演示餐盘及果蔬两种不同的洗净方式。产品其他卖点则通过大面积的立面实物具象化展示。
方太燃气热水器:磁化装置精致化及功能模拟演示
本草纲目的书籍展示,结合零部件单体展示。全方位展示燃气热水器的专业性。
第二层:两人、三餐、四季
生活方式
我们特地在终端中打造了一处小景——别墅级海景厨房一角。通过转角落地窗与户外海景的虚实结合,使整个空间显得更加宽敞明亮,更保留消费者对美好厨房的想象空间。在这一步一景的空间里,所有的方太产品都一一呈现,
这就是智沃为方太带来的全系统解决方案。
第三层:方太,因爱而生
品牌共振
“自己设计的空间在线下被完美得呈现出来,这对我来说是莫大的惊喜。”- 冯琪
和方太品牌密切合作的十余载,瑞德设计欣赏它低调但极致追求品质的作风,更是对其想要传递给消费者美好健康的生活主张表示认可。气质相同才能相吸,在此次合作中,智沃以极高的效率和还原度,完成终端的升级设计,
成就又一人气体验空间样本。
第四层:水乃万物之源
设计系统
亲肤之泉 —— 热水器
纯净之源 —— 水槽洗碗机
水厨电终端布置以“水”贯穿,通过不同的水元素,结合产品特征,将产品调性发挥极致,
并将水厨电的系统性体现出来。
在行业中,智沃也以强大的设计系统,重新定义商业体验空间,开启家电体验空间4.0时代。
关于智沃商业空间与建筑
聚焦消费体验研究
『
产品+空间
』
杭州智沃建筑设计有限公司是瑞德设计旗下三大核心品牌之一,是国内 “场景体验设计”的先驱团 队,是以“科技驱动商业创新”为核心的商业空间设计与商业建筑设计的资深服务机构。
( 智沃团队核心设计师)
智沃的专业化服务,聚焦3C智能、时尚运动、家用电器、能源汽车、高速公路服务区等焦点行业,提供品牌零售体验门店、高交互企业展厅、创新办公空间等全方位的空间解决方案。整合了策略、设计、研 发、实施、管理等全系统的设计服务链。
在智沃,有来自多领域的60多位顶尖设计师与研究员,用组建联合创新团队的方法,深入客户组织内部,为客户提供最高效的协同设计创新服务。为保证每个商业项目的成功,我们启动了“联
合创新”模式。为项目设置合理的工作流,分解成不同的阶段及完成目标,为每个阶段,配置最有 效的核心创新资源(包括设计团队),最终确保商业到达。
瑞德设计的故事
—
To Be Continued
—
杭州瑞德设计股份有限公司
杭州市滨江工业园区长江路365号
邮编:310052
传真:0571-28051720
E-mail:rd@rddesign.cc
- 扫码关注 共振未来 -
客服
消息
收藏
下载
最近



















