查看完整案例

收藏

下载
红、黄、蓝。三原色在传统绘画(即非数字媒体的平面材质)上是没有办法通过调色的方式调出来的。在绘画中调色即是我们通过两种或两种以上的颜色相加而得到新的颜色。而我们一般说的三原色即是红、黄、蓝,这三种纯正的颜色是属于原生颜色,在理论上这三种颜色之间的不同比例组合,再加上明度因素可以得到其它所有的颜色,但在理论本身上是无法调出纯正的颜色的。
项目名称:三原色
项目地址:旭日上城二期
项目风格:北欧
项目面积:95平
摄影:初心
本案的业主是三口之家,有一个刚会走路的小公主,一家人对未来的家充满期待。设计之初的定位就是年轻多元化的风格,以白色作为底色,用温暖的原木来中和白色的冰冷感,增加空间的温暖色,大面积地板的运用让空间的的暖调子进一步得到提升,让整个空间更有温度。这套案子色彩运用的比较丰富一些,以红色,蓝色,黄色为主,这三个颜色刚好是色彩的三原色。
。
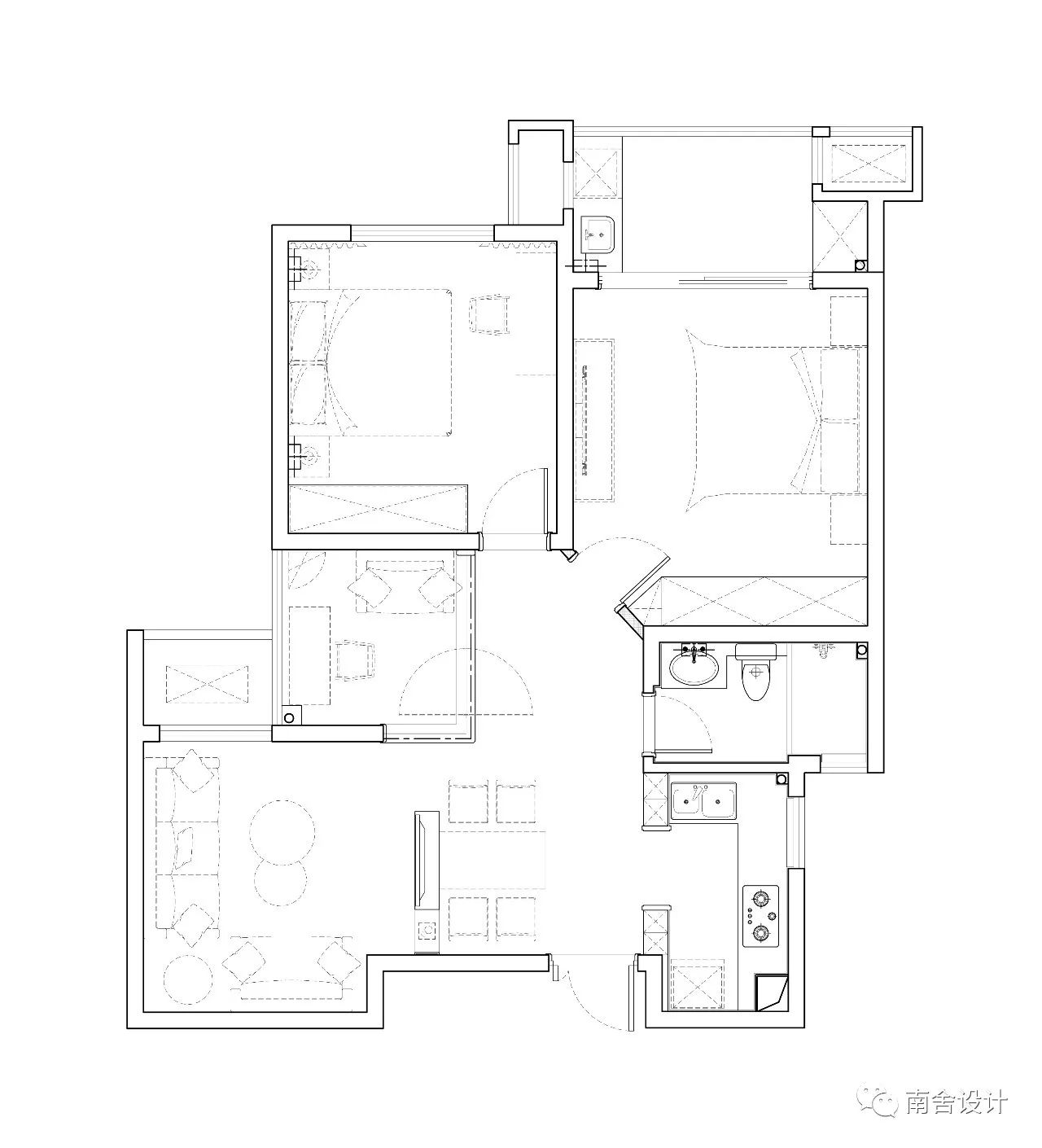
原始平面图
平面布置图
空间布局上我们调整的比较大,原来的客厅部分被改成了主卧室,餐厅旁边的小房间则打开做成了客厅,小房间窗户不是面向外面的,窗户面对一个天井,所以光线不够强。业主一家人平时白天不在家,一般也就晚上回家,所以不太介意客厅稍微暗一点。调整后的空间客厅与餐厅连通,加上赠送的小阳台打开做了玻璃隔断,整个空间通透感很强。
主卧室的门有些对着进户门,我们大胆的做了斜面设计,主卧室的门设计成了斜面开启,门背后的柜子则设计了一个斜面的平开门小柜子。
主卧室看向餐厅,透过书房玻璃隔断能看到客餐厅之间的电视柜。
餐厅与小房间墙体拆除后,有一根比较低的大梁,比较难处理,我们设计了灯带来美化这根大梁。
厨房两侧墙体拆除做成了鞋柜,厨房门则做成了顶轨道的单向移门。
厨房看向餐厅
书房顶面与抬高部分设计了两条灯带,线光源的运用让灯光层次更丰富,空间更时尚。
餐厅红色的灯罩,蓝色椅子坐面,黄色的花。
客厅看向餐厅
客厅电视墙与餐桌背景墙合二为一,电视柜暖色调木饰面与冷色调大理石,冷暖搭配,电视嵌入式设计,电视安装好之后与木饰面刚好保持一个平面。
拍摄时,电视正播着小公主最爱的小猪佩奇。
温暖的点光源增添空间层次感。
温暖的姜黄色能让人心情愉悦。
黄色的抱枕与黄色的沙发毯。
茶几局部
主卧室一面蓝色的主背景墙,蓝黄花纹的窗帘,搭配温柔的粉白色吊灯,顶面的羽毛吊灯亮起来的时候特别的温柔。
蓝色墙面,黄色抱枕,蓝黄相间的窗帘,粉白的吊灯,色彩丰富却不凌乱。
原木色的衣柜移门与原木色家具,木色地板搭配起来,床头的蓝色也不再冷了。
床头一角
厨房原木色地柜搭配白色吊柜,红色的花砖与红色的厨具。
玻璃书房内,原木的大书桌,温柔的灯光下男主人坐在这里工作,女主人带着孩子在客厅看电视,空间既融合又独立。
灰色调为主的卫生间,原木的台盆柜很好的呼应了主题。
客厅全景----设计师手机拍摄
透过电视柜的花看客厅----设计师手机拍摄
拍摄当天的花花草草----设计师手机拍摄
期待您的咨询
地址:浦东大厦2604
客服
消息
收藏
下载
最近

























