查看完整案例

收藏

下载
◆
品味设计之美,感悟精致人生
VOGLASS VILLA DC 尚层别墅装饰 !
◆
自然多彩的东南亚风格,在这个300㎡的别墅里,碰撞出触动人心的美丽。看到设计图的第一感觉,有种岁月静好的触动。清新怡人并且带着温厚与优雅,难怪有人称东南亚风格是“绚丽的自然主义”,这个形容恰到好处。
◎
本案为业主一家三代同住,业主及母亲,还有业主弟弟一家。业主一家更喜欢绿意盎然的东南亚风格,置身于这个家中,好像站在芭蕉叶下看着树叶摆动,家中摆放着绿植花卉,让一家人贴近自然。
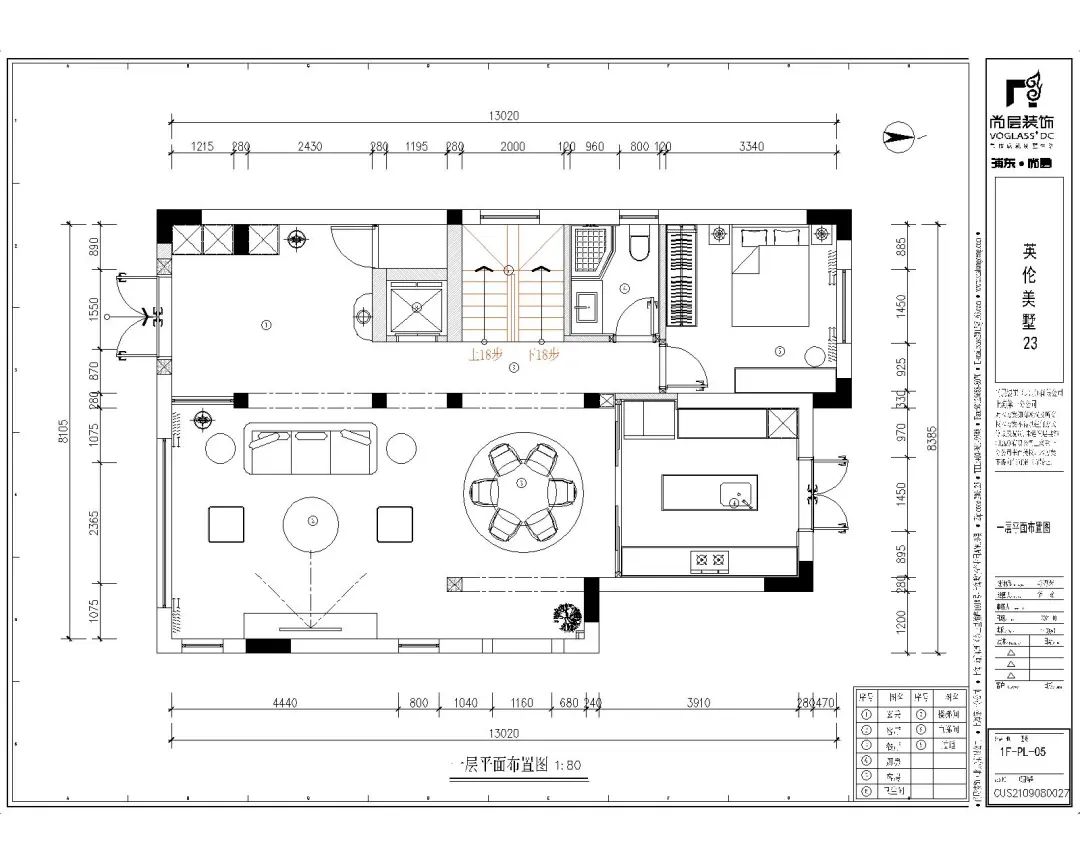
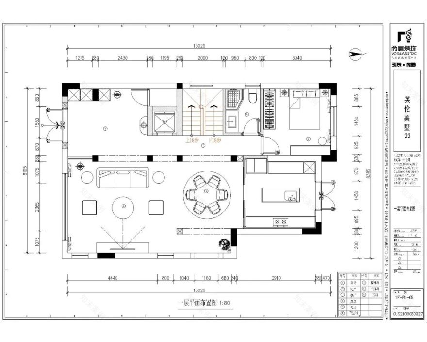
(一层平面布置图)
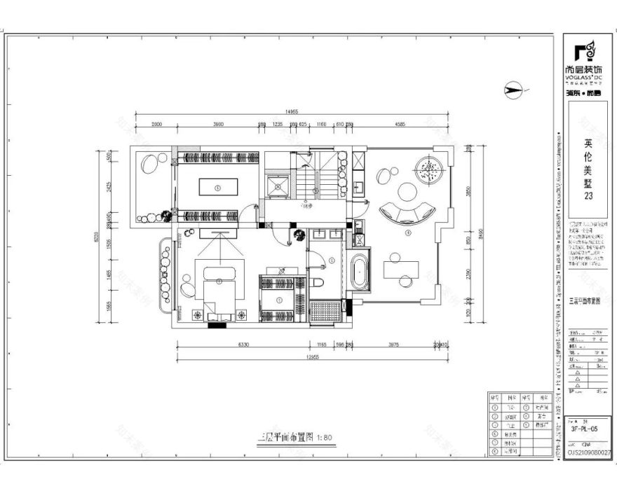
(二层平面布置图)
(三层平面布置图)
(负一层平面布置图)
本案木质元素融合了大自然的奔放,本身偏爱静谧与自然气息的业主一家,对这种动静完美的结合,简直是毫无抵抗力。那种自然的奔放不但没有打破原本的温馨舒适气氛,反而给家的温馨增添了一份朝气和惬意的异国风情。
01
-
客厅
正如一位作家曾说的,
“惜物、惜缘,这本是一种温柔真切的情分。让心中相悦的优美物品包围身边,以此观照到内心,本身也是一种熏染。”
本案客厅空间是清新、怡人、温厚、优雅的,自然原木色结合简约清爽的空间布局,奠定了空间度假般轻松自在的基调。
温暖的落日黄墙壁,像是沐浴着黄昏的暖阳,柔柔的晚风轻拂脸颊,不染喧嚣,心归自然,领悟源于生活的美好。
采用大量木质家具以及吊顶装饰,舍弃常规的电视功能而是换成壁炉,使得一家人一起相聚聊天的场景十分温馨。并且使用拱形门和异域风情的壁灯、挂饰让空间充满东南亚气息,搭配青翠欲滴的绿植,最幸福的是事,莫过于有着最单纯温馨的邻里人家。
02
-
餐厅
餐厅选择了木质圆桌,旁边的落地移门让整个空间拥有良好的采光,形状各异的组合吊灯以及高大的绿植盆栽为空间做点缀,活跃了空间气氛。色彩以柔和、优雅为主,
实木的餐桌椅,室内室外的绿植,露珠浸润的蔬果沁着泥土的芬芳,聆听自然之音下的曼妙时光,给人置身度假的轻松舒适感。
03
-
主卧
每天,拉开窗帘,就能看到满眼田园山色,放着舒缓的音乐,享受清晨的惬意。
根据客户的喜好选用了热带气息的背景墙纸,床上的幔纱又体现了业主柔软浪漫的一面。卧室的窗户整体加宽,为房间提供了更好的视野和采光。
让业主可以慵懒,可以精致,可以随性,可以酣畅。出则繁华,入则宁静,就像隐藏在喧嚣闹市的隐者,安静而与世无争。
04
-
主卫
主卫为女业主独立使用,整个空间的亮点为中间上两踏的浴缸,让沐浴的过程充满仪式感。浴缸外侧为业主个人的办公区域,所以采用了落地窗以及木格栅的设计。拼花的小瓷砖和洗漱镜背后的木栅也为空间增添了异域风情。
05
-
书房
书房采用阳光房的设计,窗外就是花园美景,在自然中题诗作画,充满了诗意的野趣。从清晨的第一缕阳光洒进来,到阳光明媚的午后,再到傍晚夕阳的余晖,房间都格外明亮,光线柔和不刺眼。
一杯茶,一本书,一片阳光,一个下午,伴随着时光流逝的不是无聊和寂寞,而是一种充实的温暖和放松、舒适的生活格调。
06
-
客卧
次卧为业主弟弟夫妻二人使用,
当东南亚风遇上了简约的新中式设计,犹如向世人缓缓展开一副浓墨淡彩、意蕴悠长的美好画卷。
这一方天地,或清新或雅致,或大气或低调。蕴含着无数灵气与温馨。暖色系的砖给人带来奢华的感觉,双台盆与一字型淋浴房的设计,体现了大气的感觉,背景转角的装饰巧妙地延续了空间,使业主洗漱时也又更大的视觉空间。
07
-
地下室
地下室为娱乐区域,闲来无事读读诗书、一家人一起看个电影,明亮的绿色植物为这个空间注入活力,不盲目跟风时尚,注重细节的表现。
休闲的午后,邀请家人或朋友一同共进下午茶,食物的美味与甜腻的花香飘散入鼻,在这清新自然的空间里享受惬意时光。
设计了直接投放到墙上的投影,墙面做了隐形门而背后是储物间,巧妙地节约了空间,并将储物空间隐藏起来,使得整个空间更利索整洁。
设计师为业主打造了一个洋溢着热情,简约却不简单的家,契合业主一家的生活习惯与爱好,让业主在外经历繁华之后,回到家能感受到温馨自然的愉悦,体会到原生、原态的纯粹幸福。
希望本案能给大家一些装修灵感!
业
主
说
The owner said
「
认识设计师
」
陈海荣
尚层装饰(北京)有限公司上海第一分公司
第九设计事务所 主创设计师
代表作品
白金汉宫、绿城玫瑰园、西郊大公馆、江湾翰林别墅、圣塔路斯别墅、两河流域别墅、长泰东郊御园、圣得恒业别墅
获奖荣誉
从业18年 中国国家注册高级室内设计师
中国建筑学设计分会会员
2016年作品筑巢优秀奖
2018年“红创杯”优秀作品奖
设计理念
设计遗憾的艺术,而我追求完美 所以我永不停止追求的步伐。
尚层优选
,专注别墅定制整装服务,提供整装设计、配套选材、专属施工、无忧售后的别墅整装服务,致力于让高端客户轻松享受高品质家居生活。
—End—
编辑 |小小茹
图片 |图片来源尚层别墅装饰
0元
获取报价
客服
消息
收藏
下载
最近


























